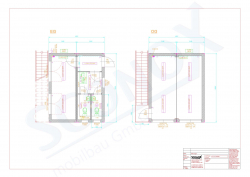
20OPPG 0004 - Doppelgeschossige Containeranlage, ca. 60m², mit Sozialbereich

20OPPG 0004 - Doppelgeschossige Containeranlage, ca. 60m², mit Sozialbereich

sconox mobilbau GmbH
Muster-Nr.: 20OPPG 0004
Preis auf Anfrage
bitte Angebot anfragen


Produktbeschreibung

TECHNISCHE BAUBESCHREIBUNG

 1 Stck. Mobilraum-Kombination, Maße:

 6.058 x 4.891 x 5.820 mm IH 2.500 mm

bestehend aus:

 2 Stck. Mobilraum-Elementen, Maße je CTR:

 6.058 x 2.438 x 2.840 mm IH 2.500 mm

 2 Stck. Mobilraum-Elementen, Maße je CTR:

 6.058 x 2.438 x 2.980 mm IH 2.500 mm

gemäß Beschreibung und Zeichnung ohne Gabelstaplertaschen

Rahmen

Unter Fachaufsicht verschweißte Stahlkonstruktion aus Hohl- und Walzprofilen, grundiert, Lackierung mit Farbe auf Polyurethan Basis, in einem Farbton der Palette RAL classic Ihrer Wahl lackiert* , 8 Stck. Containerecken. Ausführung laut prüffähiger Statik und bei entsprechend vorbereiteter Gründung zweifach stapelbar.

*(außer die beiden RAL Töne 9006/9007, diese gegen Aufpreis und unter Einschränkungen –Leucht- oder Signalfarben sind nicht möglich.)

Bodenaufbau

Blindboden: 0,5 mm verzinktes Profilblech zu Bodenquerträgern aufgenietet

Dämmung: Mineralwolle, Brandverhalten gem. DIN EN 13501-1, Baustoffklasse A1 - nichtbrennbar

Dampfsperre: 0,2 mm Polyäthylenfolie

Bodenplatte: 22 mm Spanplatte V100, Brandverhalten gem. DIN EN 13501-1, Klasse D-S2, auf Profilstahlträgern verschraubt, Stöße gespachtelt und geschliffen, von unten mit U-Profil unterlegt

Bodenbelag: 2,0mm PVC Tarkett „Standard plus“, Brandklasse Bfl-s1 nach DIN EN 13501-1, in Bahnen verlegt und vollflächig verklebt, Nähte verschweißt, Farbe grau marmoriert,

Wandabschluss mit 60 mm Hartkernsockelleisten, weiß

In WC´s - PVC als Wanne verlegt - ca. 70…100mm an der Wand hochgezogen

Verkehrslast des Bodens: 2.500 N/m²

... Erhöhung auf Wunsch möglich… Ausführung und Preise auf Anfrage. Lastangaben sind zu verstehen als Nutzlasten im auf dem Fundament aufgestellten Zustand (d.h. nicht am Kranhaken), flächig und ohne Einzellastfall.

Wandaufbau

Profilblech: 0,55 mm verzinktes Profilblech, lackiert in Farbton wie Rahmen oder gegen Mehrpreis abweichend in einem Farbton der Palette RAL classic Ihrer Wahl lackiert*, 10 mm Sickentiefe, genietet auf verzinkten U-Profil-Ständerwerk aus verz. Stahl in Stärke gem. Wärmedämmung, Ständerwerk verschraubt zur Stahlrahmenkonstruktion

Dämmung: Mineralwolle, Brandverhalten gem. DIN EN 13501-1, Baustoffklasse A1 - nichtbrennbar

Dampfsperre: 0,2 mm Polyäthylenfolie

*(außer die beiden RAL Töne 9006/9007, diese gegen Aufpreis und unter Einschränkungen –Leucht- oder Signalfarben sind nicht möglich.)

Zwangsbe- oder Entlüftungen in den Außenwänden mit außen liegendem Kiemenblech und innen liegendem Kunststoffgitter mit Insektenschutz. Zwischen Außenblech und Gitter PVC Rohr NW 100 mm als Leibung zur der Isolierung.

Ausführung der Wärmedämmung für GEG 2020**

(Stand Oktober 20 - Nachfolgend Referenzwerte, bei näherer Konkretisierung und auf Anfrage ist ein individueller Energieausweis möglich. Erst dabei wird die Gesamtentsprechung des Gebäudes geprüft und bestätigt.)

EG:

Boden 200 mm Mineralwolle, U=0,185 W/m²K

Außenwände 200 mm Mineralwolle, U=0,199 W/m²K

Zwischenwände 60 mm Mineralwolle, U=0,698 W/m²K

Dach 80 mm Mineralwolle, U=0,491 W/m²K

OG:

Boden 80 mm Mineralwolle, U=0,472 W/m²K

Außenwände 200 mm Mineralwolle, U=0,199 W/m²K

Zwischenwände 60 mm Mineralwolle, U=0,698 W/m²K

Dach 220 mm Mineralwolle, U=0,167 W/m²K

**Hinweis: „Ausführung der Wärmedämmung für GEG 2020“ bedeutet, dass die wärmeübertragende opake Hüllfläche des Gebäudes so sein gedämmt wird, dass deren mittlerer Transmissionswärmeverlust unter den in der EnEV geforderten Maximalwerten liegt. Damit ist die Erfüllung der EnEV bei Gebäuden mit einer Nutzfläche von unter 50m² (EnEV §8) oder bei Anschluss an eine vorhandene Heizanlage (EnEV §9) stets gewährleistet. In den allermeisten Fällen werden die Gesamtanforderungen der EnEV auch bei Gebäuden >50m² Nutzfläche erfüllt. Hier ist jedoch nicht die Wärmedämmung allein, sondern der Primärenergieverbrauch die entscheidende Kenngröße. Weiterhin sollen lt. Gesetzgeber erneuerbare Energien verwendet werden (EEWärmeG). Somit werden Faktoren wie die Anlagentechnik des Gebäudes (wie Heizung, Lüftung etc.) und dessen Ausrichtung einbezogen. Der Energieausweis wird in aller Regel erst nach Abschluss der Planungen erstellt. Erst mit diesem Dokument können wir die vollständige Entsprechung von EnEV und EEWärmeG bescheinigen. Wenn z.B. eine ungünstige Ausrichtung vorliegt (z.B. große Fensterflächenanteile – insbesondere auf der Nordseite) oder z.B. falls die Erzeugung von Wärme auf Basis fossiler Brennstoffe (Öl, Gas) mit einer neuen Heiztherme geplant ist, kann bei Gebäuden >50m² Nutzfläche im Rahmen der weiteren Konkretisierung geprüft werden, ob sich eine EnEV / EEWärmeG-Entsprechung einstellt oder ggfls. zusätzlich und gegen Mehrkosten der verstärkte Einsatz erneuerbarer Energien als weitere Auflage zu erfüllen ist.

Der Einsatz erneuerbarer Energien klingt zunächst kostspielig, kann aber beispielsweise schon mit unseren günstigen Wärmepumpengeräten (dezentrale Klima-Split-Geräte mit Heizfunktion), einer Trinkwasserwärmepumpe statt E-Boiler oder mit einer optionalen Lüftungsanlage mit Wärmerückgewinnung erfolgen. Bitte sprechen Sie uns bei Fragen an: Wir sind erfahren und geübt darin, dieses komplexe Thema im Sinne unserer Kunden zu lösen.

Dachaufbau

Profilblech: 0,75 mm Profilblech verzinkt, nicht lackiert, Sickentiefe 40 mm, belüftet, aufgelegt und befestigt auf speziell gekanteten Dachquerträgern, die mit der Rahmenkonstruktion verschraubt sind.

Dämmung: Mineralwolle, Brandverhalten gem. DIN EN 13501-1, Baustoffklasse A1 – nichtbrennbar

Dampfsperre: 0,2 mm Polyäthylenfolie

Dachentwässerung erfolgt je Containermodul über vier PVC-Fallrohre (NW 60 mm Außendurchmesser 63mm), die in den Ecksäulen nicht sichtbar verlegt sind. Diese sind an einer Kastenrinne angeschlossen welche in den beiden stirnseitigen Dachrahmen der Container integriert ist. Anschluss an Kanalnetz kundenseitig.

Schneelast*: 1,25 kN/m², Dach zu Revisionszwecken begehbar
(*Standard-Schneelast. Je nach Aufstellort ist bauseitig zu prüfen, ob ggfls. höhere Schneelasten zu gewährleisten sind. Das Dach für höhere Schneelasten auszulegen ist gegen Mehrpreis möglich.

Innenverkleidung
(ohne Feuerschutzausführung)

Decke: 10 mm beidseitig melaminharzbeschichtete Spanplatte V20, weiß, Schutzklasse E1, Brandverhalten gem. DIN EN 13501-1: D-S2, an Profilstahlträgern genietet, Nietköpfe mit farblich passenden Kunststoffkappen abgedeckt, alle Stoß- und Eckverbindungen mit speziellen Kunststoffleisten versehen

Wände: 10 mm beidseitig melaminharzbeschichtete Spanplatte V20, weiß, Schutzklasse E1, Brandverhalten gem. DIN EN 13501-1: D-S2, an Stahlständerwerk genietet, Nietköpfe mit farblich passenden Kunststoffkappen abgedeckt, alle Stoß- und Eckverbindungen mit speziellen Kunststoffleisten versehen

Innentrennwände mit Wärmedämmung


 

AUSSTATTUNG:

Außentür:

2Stck. MZ-Mehrzwecktür 875/2000 mm, aus verzinktem Stahlblech, Isolierfüllung, glatte Ausführung, Spezial-Eckzarge mit 4-seitiger Dichtung, Türblattstärke 40 mm,

standardmäßig innen wie außen im Farbton der Außenwände lackiert, Beschlag,

mit PZ-Schloss und 3 Schlüsseln, incl. Türanschlag aus Gummi

Innentür:

2Stck. Holzinnentür 875/2000 mm, Stahlumfassungszarge, weiß, Türblatt mit Wabeneinlage,

Oberfläche mit PVC Folie beschichtet oder lackiert, Kst.- Drückergarnitur und Beschlag,

BB-Schloss und 1 Schlüssel

2Stck. Holzinnentür 625/2000 mm, Stahlumfassungszarge, weiß, Türblatt mit Wabeneinlage,

Oberfläche mit PVC Folie beschichtet oder lackiert, Kst.- Drückergarnitur und Beschlag,

BB-Schloss und 1 Schlüssel

Fenster:

2Stck. Kunststoff-Fenster weiß, 1800/1200 mm, 2-flügelig, isolierverglast, beide Flügel

mit Dreh/Kippbeschlag, incl. Kunststoffrollladen, Gurtrollern a. P., k-Wert 1,1W/m²K

1Stck. Kunststoff-Fenster weiß, 900/1200 mm, 1-flügelig, isolierverglast,

Dreh/Kippbeschlag, incl. Kunststoffrollladen, Gurtrollern a. P., k-Wert 1,1W/m²K

2Stck. Kunststoff-Fenster weiß, 600/400 mm, isolierverglast, mit Kippbeschlag, äußere Scheibe mit Ornamentverglasung, ohne Rollladen, k-Wert 1,1W/m²K

2Stck. Kunststoff-Schaufenster weiß, 1900/2200 mm, 4-teilig, oben D/K-D/K, unten FIX-FIX, isolierverglast, VSG von außen, ohne Rollladen, k-Wert 1,1W/m²K

Fensterbrüstungshöhe: Standard-Fenster 850 mm OKFF
Sanitärfenster 1.800 mm (Griff auf ca. 2.200mm OKFF),
Schaufenster 0 mm OKFF

Die Fenster erhalten außen eine Fensterbank.

Elektro-Installation nach VDE 0100, 400/230 V,

incl. Geschossverteilungen mit Sicherungsautomaten,Deckel, FI - Schutzschalter, Elektroplan

Kabeleinführung bauseits durch Boden , (bauseitiger Festanschluss, keine hässlichen Außenstecker, Verschließen und Abdichten der Bodenöffnung bauseits), vertikaler Kabelkanal bis zum Verteilerkasten Kabelführung von Container zu Container im Kabelkanal unter Decke.

2Stck. Leuchte MODUS LLX, 1x18W LED mit Raster BAP

6Stck. Leuchte MODUS LLX, 2x22W LED mit Raster BAP

2Stck. LUNA 100+ LED, incl. 7W

5Stck. Lichtschalter, weiß

2Stck. Wechselschalter, weiß

6Stck. Steckdose 230 V, weiß, + 300mm OKFF

2Stck. Steckdose 230 V, weiß, feuchtraumgeschützt, ca. 1400 mm OKFF

1Stck. Steckdose für elektrische Heizung, extra abgesichert, weiß

2Stck. Steckdose für Frostwächter, weiß

2Stck. Steckdose für Boiler, extra abgesichert, feuchtraumgeschützt

2Stck. Kleinheizung 0,5kW, mit Stufenschalter als Frostwächter

1Stck. Elektro-Heizkonvektor 1 kW, mit stufenlosem Temperaturwähler und Thermostat

2Stck. Untertischgerät 5l - 2 kW, stufenlos von ca. 35 - 85 °C einstellbare Temperatur

1Stck. Inverter-Splitklimagerät mit Wärmepumpenfunktion zum effizienten Heizen mit erneuerbarer Energie (Umgebungswärme) – besteht aus 1 Außengerät und 1 Innengerät, als Wandgerät mit IR – Fernbedienung, Typ: Fujitsu ASYG07LLCC-/ AOYG07LLCC (oder gleichwertig), ohne Kondensatpumpe –> Kondenswasser wird mit Gefälle durch Regenablauf abgeführt

ASYG07LLCC/

AOYG07LLCC

 

Nennwerte lt. Datenblatt Fujitsu  Änderungen / Irrtum vorbehalten

Davon aus Stromnetz

(Rest aus Außenluft)

Nennleistung Kühlen

kW

2,0 (0,9 – 2,8 geregelt)

ø ~ 0,426 kW

Nennleistung Heizen

kW

2,7 (0,9 - 3,6 geregelt)

ø ~ 0,620 kW

EER Kühlen

W/W

4,26

EEK ø: A++

COP Heizen

W/W

4,35

EEK ø: A+

1Stck. Inverter-Splitklimagerät mit Wärmepumpenfunktion zum effizienten Heizen mit erneuerbarer Energie (Umgebungswärme) – besteht aus 1 Außengerät und 1 Innengerät, als Wandgerät mit IR – Fernbedienung, Typ: Fujitsu ASYG12LLCC-/ AOYG12LLC (oder gleichwertig), ohne Kondensatpumpe –> Kondenswasser wird mit Gefälle durch Regenablauf abgeführt

ASYG12LLCC/

AOYG12LLCC

 

Nennwerte lt. Datenblatt Fujitsu Änderungen / Irrtum vorbehalten

Davon aus Stromnetz

(Rest aus Außenluft)

Nennleistung Kühlen

kW

3,4 (0,9 - 3,8 geregelt)

ø ~ 1,080 kW

Nennleistung Heizen

kW

4,0 (0,9 – 5,0 geregelt)

ø ~ 1,130 kW

EER Kühlen

W/W

3,15

EEK ø: A++

COP Heizen

W/W

3,54

EEK ø: A

Miniküche bestehend aus:

1Stck. Unterschrank mit integriertem Kühlschrank 127 Liter, Nirosta - Spüle mit Ablage und eingebautem elektrischen Doppelkochfeld, Maß: 1000x600x900 mm

1Stck. Hängeschrank 1000x600x300 mm, 2 Türen, mit Zwischenboden, weiß

1Stck. Doppelsteckdose 2x 230 V, ca. 1.100 mm OKFF

1Stck. Doppelsteckdose 230V für Küche, extra abgesichert

1Stck. Steckdose für Boiler, extra abgesichert, feuchtraumgeschützt

1Stck. Untertischgerät 5 l - 2 kW, stufenlos von ca. 35 - 85 °C einstellbare Temperatur

Sanitärausstattung:

2Stck. Porzellan-Tiefspül-Toilette, stehend, Farbe sanitärweiß, Kst .- WC-Brille mit Deckel, a.P. Spülkasten, Kst.-Papierhalter und Kst.-Mantelhaken

2Stck. Porzellan-Handwaschbecken, Farbe sanitärweiß, mit Zweihandmischbatterie für Kalt-/Warmwasser, Geruchverschluss, incl. Kristallglas-Spiegel, Kst. Ablage, Kst.-Handtuchhaken

1Stck. Abwasserentlüftung durch Außenwand

1Stck. Zu- 3/4'' und Abwasser Ø 100 mm, durch Boden

Alle Rohrleitungen werden hinter Vorwandinstallation verlegt
Abflussleitungen: HT-Rohr grau, ohne Anstrich
Zuflussleitungen: Kupfer-Rohr, ohne Anstrich, isoliert

4,5lfm Installationswand, ca. 1.300mm hoch, als Verkleidung der Rohrleitungen innerhalb der Sanitärinstallation., Wand als Ablagemöglichkeit geeignet

2lfm Installationswand, raumhoch, als Verkleidung der Rohrleitungen innerhalb der Sanitärinstallation

Sonstiges:

1Stck. Stahlaußentreppe, einarmig, mit Podest aus Gitterost, beide Außenseite mit Vierkantrohr-Geländer und Vierkantrohrhandlauf, alle Stahlteile verzinkt. Treppenbreite 1.130 mm