
Art.Nr.: 2142091
TECHNISCHE BAUBESCHREIBUNG
Raumzellen fabrikneu
|
MOBILRAUM-KOMBINATION, Maße: |
24.025 x 14.584 x 8.680 mm IH 2.500 mm |
|
BESTEHEND AUS: |
|
|
16 Stck. Mobilraum-Elementen, Maße: |
6.058 x 2.990 x 2.900 mm IH 2.500 mm |
|
4 Stck. Mobilraum-Elementen, Maße: |
6.058 x 2.438 x 2.900 mm IH 2.500 mm |
|
16 Stck. Mobilraum-Elementen, Maße: |
6.058 x 2.990 x 2.820 mm IH 2.500 mm |
|
4 Stck. Mobilraum-Elementen, Maße: |
6.058 x 2.438 x 2.820 mm IH 2.500 mm |
|
16 Stck. Mobilraum-Elementen, Maße: |
6.058 x 2.990 x 2.960 mm IH 2.500 mm |
|
4 Stck. Mobilraum-Elementen, Maße: |
6.058 x 2.438 x 2.960 mm IH 2.500 mm |
gemäß Beschreibung und Zeichnung - ohne Gabelstaplertaschen
Rahmen
Unter Fachaufsicht verschweißte Stahlkonstruktion aus Hohl- und Walzprofilen, grundiert, Lackierung mit Farbe auf Polyurethan Basis, RAL classic nach Wunsch (außer den RAL Tönen 9006/9007, diese gegen Aufpreis - keine Leucht- oder Signalfarben), 8 Stck. Containerecken. Ausführung laut prüffähiger Statik zweifach stapelbar
Bodenaufbau
Blindboden: 0,5 mm verzinktes Profilblech zu Bodenquerträgern aufgenietet
Isolierung: Mineralwolle, Brandschutzverhalten gem. DIN EN 13501-1, Brandschutzklasse A1
Dampfsperre: 0,2 mm Polyäthylenfolie
Bodenplatte: 22 mm zementgebundene Spanplatte, auf Profilstahlträgern verschraubt, Stöße gespachtelt und geschliffen, von unten mit U-Profil unterlegt
Bodenbelag: 2 mm PVC Tarkett® Standard Plus , in Bahnen verlegt und vollflächig verklebt, Nähte und Kopplungsstellen verschweißt, Farbe grau marmoriert, Wandabschluss mit ca. 60 mm Hartkernsockelleisten, weiß
In Sanitärbereichen - 2 mm PVC Grabo JSK, R10, in Bahnen verlegt und vollflächig verklebt, Nähte verschweißt, Farbe grau marmoriert, in Wanne hochgezogen
Kopplungsstellen zwischen den Modulen Bodenbelag überlappt und verschweißt statt Metall-Deckblechen auf den Kopplungen (Metall-Deckbleche sind auf Kundenwunsch preisneutral möglich)
Verkehrslast des Bodens: 2.500 N/m2
... Erhöhung auf Wunsch möglich… Ausführung und Preise auf Anfrage
Wandaufbau
Profilblech: 0,55 mm verzinktes Profilblech im RAL Ton wie Rahmen lackiert, 10 mm Sickentiefe, auf verz. U-Profil-Stahl-Wandgerippe, das zur Stahlrahmenkonstruktion verschraubt ist, genietet, Stärke entsprechend der Isolierung
Isolierung: Mineralwolle, Brandschutzverhalten gem. DIN EN 13501-1, Brandschutzklasse A1
Dampfsperre: 0,2 mm Polyäthylenfolie
Zwangsbe- oder Entlüftungen in den Außenwänden mit außenliegendem Kiemenblech und innenliegendem Kunststoffgitter mit Insektenschutz. Zwischen Außenblech und Gitter PVC Rohr NW 100mm zum Schutz der Isolierung.
Isolierung der Gebäude-Außenhülle gem. EnEV2014
(Isolierung der Außenhülle gem. EnEV2014 bei adäquater Heiztechnik, kältebrückenoptimiert, nachfolgend rechnerische Werte, bei näherer Konkretisierung und auf Anfrage ist eine angepasster Energieausweis möglich)
Boden EG 200 mm Mineralwolle, k=0,165 W/m²K
Außenwände EG 200 mm Mineralwolle, k=0,168 W/m²K
Decke EG 80mm Mineralwolle (Zwischendecke)
Boden 1OG 80mm Mineralwolle (Zwischendecke)
Außenwände 1OG 200 mm Mineralwolle, k=0,168 W/m²K
Decke 1OG 80mm Mineralwolle (Zwischendecke)
Boden 2OG 80mm Mineralwolle (Zwischendecke)
Außenwände 2OG 200 mm Mineralwolle, k=0,168 W/m²K
Dach 2. OG 220 mm Mineralwolle, k=0,153 W/m²K
Dachaufbau
Profilblech: 0,75 mm verzinktes Profilblech, Sickentiefe 40 mm, belüftet, Lagerung aufgelegt und befestigt auf speziell gekanteten Dachprofilen, die bündig mit der Rahmenkonstruktion verschraubt werden
Isolierung. Mineralwolle, Brandschutzverhalten gem. DIN EN 13501-1, Brandschutzklasse A1
Dampfsperre: 0,2 mm Polyäthylenfolie
Sekundär Dach über dem Containerdach:
Tragende Unterkonstruktion aus Stahlprofilen oder aus Kantholz. Dacheindeckung aus verzinktem Trapezblech. Die Dachentwässerung erfolgt über vorgehängte halbrunde Regenrinne sowie Regenfallrohre, verzinkte Ausführung. Verlegung der Regenfallrohre bis Oberkante Fundament. Anschlus an das Entsorgungsnetz ist bauseits zu erbringen
Schneelast: 1.250N/qm
Innenverkleidung
Decke: 10 mm beidseitig melaminharzbeschichtete Spanplatte, formaldehydfrei, weiß, auf Profilstahlträgern genietet mit Blindnieten, Nietköpfe mit farblich passenden Kunststoffkappen abgedeckt, alle Stoß- und Eckverbindungen mit speziellen Kunststoffleisten versehen (F-Null)
Flure - 1x18mm KNAUF RED Platten verspachtelt, verschliffen mit Dispersionsfarbe gestrichen (F30)
Treppenhaus, Heizraum - 2x20mm KNAUF Fireboard Platten verspachtelt, verschliffen, Glasfaser-Tapete, mit Dispersionsfarbe gestrichen (F90)
Wände: 10 mm beidseitig melaminharzbeschichtete Spanplatte, weiß, formaldehydfrei, Schutzklasse E1, Nietköpfe mit farblich passenden Kunststoffkappen abgedeckt, alle Stoß- und Eckverbindungen mit speziellen Kunststoffleisten versehen (F-Null)
Flure - 2x12,5mm KNAUF RED Platten verspachtelt, verschliffen,
Glasfaser-Tapete, mit Dispersionsfarbe gestrichen (F30)
Treppenhaus, Heizraum - 2x20mm KNAUF Fireboard Platten verspachtelt, verschliffen, Glasfaser-Tapete, mit Dispersionsfarbe gestrichen (F90)
Ob und inwieweit die behördlichen Brandschutzauflagen damit erfüllt werden, kann von uns nicht beurteilt werden und sollte im Rahmen eines extern zu erstellenden Brandschutzkonzeptes geprüft werden.
AUSSTATTUNG:
Außentür:
6 Stck. MZ-Mehrzwecktür 1000/2000 mm, aus feuerverzinktem Stahlblech, Isolierfüllung, mit Glasausschnitt - 2/3VSG, Spezial-Eckzarge mit 4-seitiger Dichtung, Türblattstärke 40 mm, standardmäßig im Containerfarbton lackiert, Sicherheitsbeschlag, PZ-Schloß und 3 Schlüssel, incl. Türanschlag aus Gummi
Innentür:
37 Stck. ZK Stahltür 875/2000 mm, verzinkt, isoliert, glatte Ausführung, Spezial-Eckzarge mit 3-seitiger Dichtung, Türblattstärke 40 mm, weiß lackiert, Beschlag, PZ-Schloß und 3 Schlüssel, incl. Türanschlag
1 Stck. ZK Stahltür 1000/2000 mm, verzinkt, isoliert, glatte Ausführung, Spezial-Eckzarge mit 3-seitiger Dichtung, Türblattstärke 40 mm, weiß lackiert, Beschlag, PZ-Schloß und 3 Schlüssel, incl. Türanschlag
4 Stck. Holzinnentür 750/2000 mm, Stahlumfassungsarge, weiß, Türblatt mit Wabeneinlage,
Oberfläche lackiert, Kst.- Drückergarnitur und Beschlag, BB-Schloß und 1 Schlüssel
3 Stck. Rauchschutzstahltür, T30 RS, 1 flgl., 1000/2000 mm, verzinkt, isoliert, glatte Ausführung, Gummidichtung, im Containerfarbton lackiert, PZ-Schloß und 3 Schlüsseln, Obertürschließer
Fenster:
37 Stck. Kunststoff-Fenster weiß, 1800/1200 mm, 2-flügelig, isolierverglast, mit Dreh/Kippbeschlag, incl. Kunststoffrollladen (gedämmt), Gurtrollern a. P., k-Wert 1,1W/m²K
12 Stck. Kunststoff-Fenster weiß, 600/600 mm, isolierverglast, mit Kippbeschlag, äußere Scheibe mit Ornamentverglasung, ohne Rollladen, k-Wert 1,1W/ m²K
3 Stck. Kunststoff-Schaufenster weiß, 1500/2000 mm, 2-flügelig, isolierverglast, FIX - FIX,
ohne Rollo, k-Wert 1,1W/ m²K
Die Fenster erhalten außen eine Fensterbank
Fensterbrüstungshöhe:
Sanitärausstattung:
14 Stck. Porzellan-Tiefspül-Toilette, stehend, Farbe sanitärweiß, Kst .- WC-Brille mit Deckel, Spülkasten, Papierhalter und Mantelhaken
14 Stck. WC-Kabine mit Holzinnentür ca. 665/1800 mm, weiß, mit Wabeneinlage, Oberfläche mit PVC Folie beschichtet, Schloss mit Frei/Besetzt-Beschlag, mit Boden- und Deckenfreiheit, Trennwand aus kunststoffbeschichteten Spanplatten mit Stahlrahmen, weiß lackiert
4 Stck. Porzellanurinal mit Geruchverschluss und Spüler
4 Stck. Schamwand
4 Stck. Nirosta - Waschrinne, 2Platz, mit Mischbatterie (Kalt-/Warmwasser)
8 Stck. Porzellan-Handwaschbecken, Farbe sanitärweiß, mit Zweihandmischbatterie für Kalt-/Warmwasser, Geruchverschluss, incl. Kristallglas-Spiegel, Kst. Ablage, Handtuchhaken
12 Stck. Kst. - Duschkabine 800/800 mm, mit Stand- und Schlauchbrause, Zweihandmischbatterie und Duschvorhang
11 Stck. Gully (Bodenablauf) mit Geruchsverschluss (ohne Gefälle), nicht an die Abfluss-Leitung angeschlossen
3 Stck. Abwasserentlüftung durch Außenwand
2 Stck. Vorbereitung für Miniküche (Ab- Zuwasser)
4 Stck. Zu- 3/4'' und Abwasser Ø 50 mm, durch Boden (Küchen, Waschen)
Alle Rohrleitungen werden hinter Installationswand verlegt
Abflussleitungen: HT-Rohr grau, ohne Anstrich
Zuflussleitungen: Kupfer-Rohr, ohne Anstrich, ohne Isolierung
6 Stck. Zu- 3/4'' und Abwasser Ø 100 mm, durch Boden (Sanitär)
Alle Rohrleitungen werden hinter Installationswand verlegt
Abflussleitungen: HT-Rohr grau, ohne Anstrich
Zuflussleitungen: Kupfer-Rohr, ohne Anstrich, ohne Isolierung
8 Stck. Ventil 1/2"
1 Stck. Revisionsöffnung 300 x 300 mm im Containerboden, Herausnehmbare Abdeckung
27 lfm Installationswand, als Verkleidung der Rohrleitungen innerhalb der Sanitärinstallation. Wand als Ablagemöglichkeit geeignet
Elektro-Installation nach VDE 0100, 400/230 V,
incl. Unterverteilung mit Sicherungsautomaten, FI - Schutzschalter 0,03 A.
Kabeleinführung bauseits durch Boden vertikaler Kabelkanal bis Verteilerkasten
Kabelführung von Container zu Container im Kabelkanal unter Decke. (keine anfälligen Außenstecker)
10 Stck. Langfeldleuchte 2x36W mit Wanne
4 Stck. Langfeldleuchte 2x36W mit Wanne, feuchtraumgeschützt
27 Stck. Langfeldleuchte 1x58W mit Wanne
76 Stck. Leuchte 2x58W mit Parabolraster, hochglänzend, BAP
38 Stck. Rauchmelder, ARGUS 9V
12 Stck. Notleuchte
31 Stck. Lichtschalter, weiß
21 Stck. Wechselschalter, weiß
8 Stck. Serienschalter, weiß, feuchtraumgeschützt
10 Stck. Steckdose 230 V, weiß
16 Stck. Steckdose 230 V, weiß, + 1200mm OKFF
33 Stck. Steckdose 2x230 V, weiß
8 Stck. Steckdose 230 V, weiß, feuchtraumgeschützt, ca. 1400 mm OKFF
2 Stck. Doppelsteckdose 2x 230 V, ca. 1.100 mm OKFF
2 Stck. Doppelsteckdose für Küche, extra abgesichert
2 Stck. Steckdose für Boiler, extra abgesichert, feuchtraumgeschützt
2 Stck. El. Boiler Stiebel Eltron SHO 600 AC, 6-12 kW / 230 V, Masse 1685/950/ 1 150 mm, 600L, 160 kg, 35 - 85 °C, Sicherungsthermostat, Frostsicherung
8 Stck. Wandventilator, Fabr. Maico, AWB 100, 90 m³/h, 13W, Wandöffnung ca. DN 100, gesteuert über Schalter
Sonstiges:
2 Stck. Innentreppe mit Stahlkonstruktion, weiß lackiert, zweiarmig, Podest mit PVC-Bodenbelag belegt, eine Seite mit Geländer und Handlauf, Stufe mit PVC belegt, Treppe komplett im Container eingebaut.
54 Stck. Warmwasserheizkörper mit Cu-Rohrnetz, Rohrleitungen werden auf Wand montiert, abgedeckt, d.h. mit Kst.-Kanal … Therme bauseits oder bei Konkretisierung gg. Mehrpreis
1 Stck. Elektrischer Schaltplan
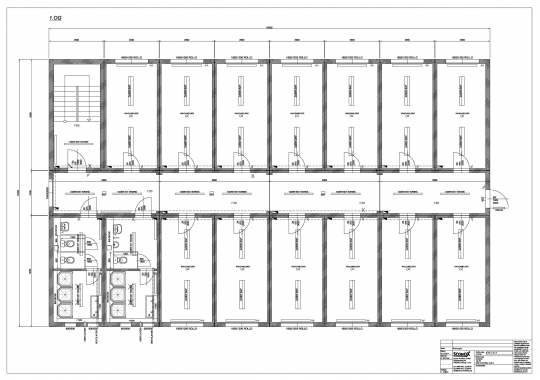
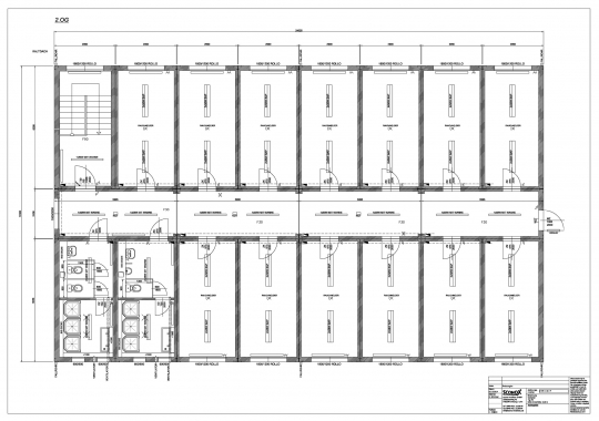
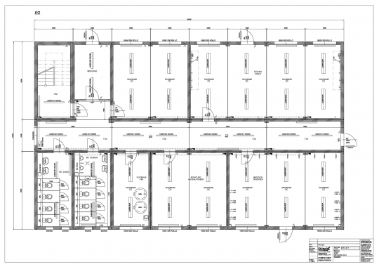
1 Stck. Plansatz: Grundriss, Ansichten, schematische Schnittzeichnung, Fundamentvorschlag