
Art.Nr.: 2141823X
TECHNISCHE BAUBESCHREIBUNG
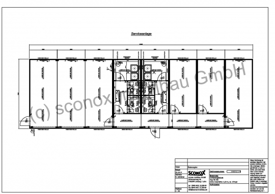
Serviceanlage:
|
1 Stck. Mobilraum-Kombination, Maße: |
7.500 x 24.025 x 2.820 mm I.H. 2.500 mm
|
bestehend aus:
|
8 Stck. Mobilraum-Elementen, Maße je CTR: |
7.500 x 2.990 x 2.820 mm I.H. 2.500 mm
|
gemäß Beschreibung und Zeichnung - ohne Gabelstaplertaschen
Rahmen
Unter Fachaufsicht verschweißte Stahlkonstruktion aus Hohl- und Walzprofilen, grundiert, Lackierung mit Farbe auf Polyurethan Basis,in einem Standard- RAL Ton Ihrer Wahl lackiert (außer den RAL Tönen 9006/9007, diese gegen Aufpreis)
8 Stck. Containerecken. Ausführung laut prüffähiger Statik zweifach stapelbar
Bodenaufbau
Blindboden: 0,5 mm verzinktes Profilblech zu Bodenquerträgern aufgenietet
Isolierung: Mineralwolle, Brandschutzverhalten gem. DIN EN 13501-1, Brandschutzklasse A1
Dampfsperre: 0,2 mm Polyäthylenfolie
Bodenplatte: 22 mm Spanplatte V 100, auf Profilstahlträgern verschraubt, Stöße gespachtelt und geschliffen, von unten mit U-Profil unterlegt
Sanitärbereiche: 22 mm zementgebundene Spanplatte
Bodenbelag: 2 mm PVC Tarkett Standard, in Bahnen verlegt und vollflächig verklebt, Nähte verschweißt, Farbe grau marmoriert, Wandabschluss mit ca. 60 mm Hartkernsockelleisten, weiß
Sanitärbereiche: 2 mm PVC Grabo JSK, rutschhemmend R 10, in Bahnen verlegt und vollflächig verklebt, Nähte verschweißt, Farbe grau marmoriert, als Wanne verlegt
Verkehrslast des Bodens: 2.500 N/m²
... Erhöhung auf Wunsch möglich… Ausführung und Preise auf Anfrage
Wandaufbau
Profilblech: 0,55 mm verzinktes Profilblech im RAL Ton Ihrer Wahl lackiert, RAL nach Wunsch
10 mm Sickentiefe, auf verz. U-Profil-Stahl-Wandgerippe, das zur Stahlrahmenkonstruktion verschraubt ist, genietet, Stärke entsprechend der Isolierung
Isolierung: Mineralwolle, Brandschutzverhalten gem. DIN EN 13501-1, Brandschutzklasse A1
Dampfsperre: 0,2 mm Polyäthylenfolie
Zwangsbe- oder Entlüftungen in den Außenwänden mit außen liegendem Kiemenblech und innen liegendem Kunststoffgitter mit Insektenschutz. Zwischen Außenblech und Gitter PVC Rohr NW 100 mm zum Schutz der Isolierung.
Isolierung
Boden 80 mm Mineralwolle, k = 0,632 W/m²K
Außenwände 60 mm Mineralwolle, k = 0,667 W/m²K
Zwischenwände 60 mm Mineralwolle, k = 0,667 W/m²K
Dach 80 mm Mineralwolle, k = 0,522 W/m²K
Innentrennwände isoliert
Dachaufbau
Profilblech: 0,75 mm verzinktes Profilblech, Sickentiefe 40 mm, belüftet, Lagerung aufgelegt und befestigt auf speziell gekanteten Dachprofilen, die bündig mit der Rahmenkonstruktion verschraubt werden
Isolierung. Mineralwolle, Brandschutzverhalten gem. DIN EN 13501-1, Brandschutzklasse A1
Dampfsperre: 0,2 mm Polyäthylenfolie
Dachentwässerung erfolgt über vier in den Eckstielen untergebrachte PVC- Fallrohre NW 60 mm,
die auf einen in den oberen Containerkästen eingebrachten Rohrstutzen aufgebracht sind.
Dachbelastung: 1 250 N/m²
Innenverkleidung
Decke: 10 mm beidseitig melaminharzbeschichtete Spanplatte, formaldehydfrei, weiß, auf Profilstahlträgern genietet mit Blindnieten, Nietköpfe mit farblich passenden Kunststoffkappen abgedeckt, alle Stoß- und Eckverbindungen mit speziellen Kunststoffleisten versehen
Wände: 10 mm beidseitig melaminharzbeschichtete Spanplatte, weiß, formaldehydfrei, Schutzklasse E1, Nietköpfe mit farblich passenden Kunststoffkappen abgedeckt, alle Stoß- und Eckverbindungen mit speziellen Kunststoffleisten versehen
AUSSTATTUNG Serviceanlage:
Außentür:
2 Stck. MZ-Mehrzwecktür 1000/2000 mm, aus feuerverzinktem Stahlblech, Isolierfüllung, glatte Ausführung, Spezial-Eckzarge mit 4-seitiger Dichtung, Türblattstärke 40 mm, standardmäßig im Containerfarbton lackiert, Sicherheitsbeschlag, PZ-Schloss und
3 Schlüssel, incl. Türanschlag aus Gummi
Innentür:
8 Stck. Holzinnentür 875/2000 mm, Stahlumfassungszarge, weiß, Türblatt mit Wabeneinlage,
Oberfläche mit PVC Folie beschichtet oder lackiert, Kst.- Drückergarnitur und Beschlag,
BB-Schloss und 1 Schlüssel
4 Stck. Holzinnentür (zur WC-Zelle) 625/2000 mm, weiß, mit Wabenmittellage, Oberfläche mit PVC Folie beschichtet oder lackiert, Kst.- Drückergarnitur und Beschlag, Schloss mit Frei/Besetzt-Beschlag
Fenster:
13 Stck. Kunststoff-Fenster weiß, 1800/1200 mm, 2-flügelig, isolierverglast, mit Dreh/Kippbeschlag, incl. Kunststoffrollladen, Gurtroller auf Putz, k-Wert 1,1W/m²K
2 Stck. Kunststoff-Fenster 900/400 mm, 1-flügelig, weiß, isolierverglast, mit Kippbeschlag, äußere Scheibe mit Ornamentverglasung, k-Wert 1,1W/m²K, ohne Rollladen
Fensterbrüstungshöhe: 850 mm OKFF, Sanitärfenster 1.800 mm OKFF
Die Fenster erhalten außen eine Fensterbank, Rollladenkästen zusätzlich wärmegedämmt
Vorbereitung für bauseitige Miniküche:
1 Stck. Steckdose für Boiler, extra abgesichert, feuchtraumgeschützt IP44
1 Stck. Doppelsteckdose 2 x 230 V, ca. 1.100 mm OKFF
1 Stck. Doppelsteckdose für Küche, extra abgesichert
1 Stck. Zu- 3/4'' und Abwasseranschluss Ø 50 mm
Alle Rohrleitungen werden sichtbar auf Wand verlegt
Abflussleitungen: HT-Rohr grau, ohne Anstrich
Zuflussleitungen: Kupfer-Rohr, ohne Anstrich, ohne Isolierung
Sanitärausstattung:
4 Stck. Porzellan-Tiefspül-Toilette, stehend, Farbe sanitärweiß, Kst .- WC-Brille mit Deckel, Spülkasten, Papierhalter und Mantelhaken
4 Stck. Porzellan-Handwaschbecken, Farbe sanitärweiß, mit Zweihandmischbatterie
für Kalt-/Warmwasser, Geruchverschluss, incl. Kristallglas-Spiegel, Kst. Ablage, Handtuchhaken
4 Stck. Kunststoff - Duschkabine 800/800 mm, mit Stand- und Schlauchbrause, Zweihandmischbatterie und Duschvorhang
2 Stck. Gully (Bodenablauf) mit Geruchsverschluss (ohne Gefälle), nicht an die Abfluss-Leitung angeschlossen
2 Stck. Abwasserentlüftung durch Außenwand
2 Stck. Zu- 3/4'' und Abwasser Ø 100 mm, durch Boden
Alle Rohrleitungen werden verdeckt hinter Installationswand verlegt
Abflussleitungen: HT-Rohr grau, ohne Anstrich
Zuflussleitungen: Kupfer-Rohr, ohne Anstrich, ohne Isolierung
2 Stck. Revisionsöffnung im Containerboden, incl. herausnehmbarer Abdeckung
6 lfm Installationswand, als Verkleidung der Rohrleitungen innerhalb der Sanitärinstallation.
Wand als Ablagemöglichkeit geeignet
Elektro-Installation nach VDE 0100, 400/230 V,
incl. Unterverteilung mit Sicherungsautomaten, FI - Schutzschalter 0,03 A.
Medien- und Kabeleinführung bauseits durch Boden, vertikaler Kabelkanal bis zum Verteilerkasten. Kabelführung von Container zu Container im Kabelkanal unter Decke.
22 Stck. Langfeldleuchte 1 x 36 W mit Wanne
2 Stck. Langfeldleuchte 1 x 36 W mit Wanne, feuchtraumgeschützt IP65
4 Stck. Rundleuchte 60 W
5 Stck. Lichtschalter, weiß
5 Stck. Wechselschalter, weiß
6 Stck. Serienschalter, weiß, feuchtraumgeschützt
12 Stck. Steckdose 230 V, weiß
6 Stck. Steckdose für Frostwächter, weiß
6 Stck. Steckdose für el. Heizung, extra abgesichert, weiß
2 Stck. Steckdose für el. Heizung, extra abgesichert, weiß, feuchtraumgeschützt IP44
4 Stck. Steckdose 230 V, weiß, feuchtraumgeschützt IP44, ca. 1400 mm OKFF
6 Stck. Kleinheizung 0,5 kW, mit Stufenschalter als Frostwächter
6 Stck. El. Heizkonvektor 2 kW, mit stufenlosem Temperaturwähler und Thermostat
2 Stck. El. Heizkonvektor 2 kW, mit stufenlosem Temperaturwähler und Thermostat,
feuchtraumgeschützt
2 Stck. El. Boiler AEG, EWH Basis 200, AC, 2-4 kW / 230 V, Maße 1570/550/690 mm, 200 l,
70 kg, 35 - 85 °C, Sicherungsthermostat, Frostsicherung
6 Stck. Wandventilator, Fabr. Maico, AWB 100, 90 m³/h, 13W, Wandöffnung ca. DN 100,
gesteuert über Schalter
1 Stck. Elektroplan