
Art.Nr.: 2182044-2
TECHNISCHE BAUBESCHREIBUNG
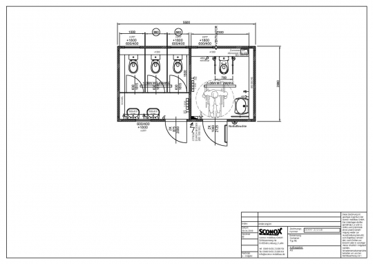
1 Stck. Mobilraum-Elemente, Maße je CTR: |
5.500 x 2.990 x 2.840 mm IH 2.500 mm
|
gemäß Beschreibung und Zeichnung - ohne Gabelstaplertaschen
Rahmen
Unter Fachaufsicht verschweißte Stahlkonstruktion aus Hohl- und Walzprofilen, grundiert, Lackierung mit Farbe auf Polyurethan Basis, in einem Farbton der Palette RAL classic Ihrer Wahl lackiert* , 8 Stck. Containerecken. Ausführung laut prüffähiger Statik und bei entsprechend vorbereiteter Gründung zweifach stapelbar.
*(außer die beiden RAL Töne 9006/9007, diese gegen Aufpreis und unter Einschränkungen -Leucht- oder Signalfarben sind nicht möglich.)
Bodenaufbau
Blindboden: 0,5 mm verzinktes Profilblech zu Bodenquerträgern aufgenietet
Dämmung: Mineralwolle, Brandverhalten gem. DIN EN 13501-1, Baustoffklasse A1 - nichtbrennbar
Dampfsperre: 0,2 mm Polyäthylenfolie
Bodenplatte: 22 mm Spanplatte V100, Brandverhalten gem. DIN EN 13501-1, Klasse D-S2, auf Profilstahlträgern verschraubt, Stöße gespachtelt und geschliffen, von unten mit U-Profil unterlegt
Bodenbelag: 2 mm PVC Grabo JSK, Brandklasse Cfl-s1 nach DIN EN 13501-1, B1 nach DIN 4102, rutschhemmend R 10, in Bahnen verlegt und vollflächig verklebt, Nähte verschweißt,
Farbe grau marmoriert, PVC als Wanne verlegt - ca. 70…100mm an der Wand hochgezogen.
Verkehrslast des Bodens: 2.500 N/m²
... Erhöhung auf Wunsch möglich… Ausführung und Preise auf Anfrage. Lastangaben sind zu verstehen als Nutzlasten im auf dem Fundament aufgestellten Zustand (d.h. nicht am Kranhaken), flächig und ohne Einzellastfall.
Wandaufbau
Profilblech: 0,55 mm verzinktes Profilblech, lackiert in Farbton wie Rahmen oder gegen Mehrpreis abweichend in einem Farbton der Palette RAL classic Ihrer Wahl lackiert*, 10 mm Sickentiefe, genietet auf verzinkten U-Profil-Ständerwerk aus verz. Stahl in Stärke gem. Wärmedämmung, Ständerwerk verschraubt zur Stahlrahmenkonstruktion
Dämmung: Mineralwolle, Brandverhalten gem. DIN EN 13501-1, Baustoffklasse A1 - nichtbrennbar
Dampfsperre: 0,2 mm Polyäthylenfolie
*(außer die beiden RAL Töne 9006/9007, diese gegen Aufpreis und unter Einschränkungen -Leucht- oder Signalfarben sind nicht möglich.)
Zwangsbe- oder Entlüftungen in den Außenwänden mit außen liegendem Kiemenblech und innen liegendem Kunststoffgitter mit Insektenschutz. Zwischen Außenblech und Gitter PVC Rohr NW 100 mm als Leibung zur der Isolierung.
Basis-Wärmedämmung (entspricht nicht EnEV 2014. Erfüllung gegen Mehrpreis möglich.)
Boden 80 mm Mineralwolle, k= 0,472 W/m²K
Außenwände 60 mm Mineralwolle, k= 0,698 W/m²K
Zwischenwände 60 mm Mineralwolle, k= 0,698 W/m²K
Dach 80 mm Mineralwolle, k= 0,491 W/m²K
Dachaufbau
Profilblech: 0,75 mm Profilblech verzinkt, nicht lackiert, Sickentiefe 40 mm, belüftet, aufgelegt und befestigt auf speziell gekanteten Dachquerträgern, die mit der Rahmenkonstruktion verschraubt sind.
Dämmung: Mineralwolle, Brandverhalten gem. DIN EN 13501-1, Baustoffklasse A1 - nichtbrennbar
Dampfsperre: 0,2 mm Polyäthylenfolie
Dachentwässerung erfolgt je Containermodul über vier PVC-Fallrohre (NW 60 mm Außendurchmesser 63mm), die in den Ecksäulen nicht sichtbar verlegt sind. Diese sind an einer Kastenrinne angeschlossen welche in den beiden stirnseitigen Dachrahmen der Container integriert ist. Anschluss an Kanalnetz kundenseitig.
Schneelast*: 1,25 kN/m², Dach zu Revisionszwecken begehbar
(*Standard-Schneelast. Je nach Aufstellort ist bauseitig zu prüfen, ob ggfls. höhere Schneelasten zu gewährleisten sind. Das Dach für höhere Schneelasten auszulegen ist gegen Mehrpreis möglich.
Innenverkleidung
(ohne Feuerschutzausführung)
Decke: 10 mm beidseitig melaminharzbeschichtete Spanplatte V20, weiß, Schutzklasse E1, Brandverhalten gem. DIN EN 13501-1: D-S2, an Profilstahlträgern genietet, Nietköpfe mit farblich passenden Kunststoffkappen abgedeckt, alle Stoß- und Eckverbindungen mit speziellen Kunststoffleisten versehen
Wände: 10 mm beidseitig melaminharzbeschichtete Spanplatte V20, weiß, Schutzklasse E1, Brandverhalten gem. DIN EN 13501-1: D-S2, an Stahlständerwerk genietet, Nietköpfe mit farblich passenden Kunststoffkappen abgedeckt, alle Stoß- und Eckverbindungen mit speziellen Kunststoffleisten versehen
Innentrennwände mit Wärmedämmung
AUSSTATTUNG
Außentür:
1Stck. ZK Stahltür 875/2000 mm, verzinkt, isoliert, glatte Ausführung, Spezial-Eckzarge mit 3seitiger Dichtung, Türblattstärke 40 mm, standardmäßig innen wie außen im Farbton der Außenwände lackiert, Beschlag, mit PZ-Schloss und 3 Schlüsseln, incl. Türanschlag
1Stck. ZK Stahltür 1000/2125 mm, verzinkt, isoliert, glatte Ausführung, Spezial-Eckzarge mit 3seitiger Dichtung, Türblattstärke 40 mm, standardmäßig innen wie außen im Farbton der Außenwände lackiert, Beschlag, mit PZ-Schloss und 3 Schlüsseln, incl. Türanschlag, incl. Zusatztürgriff
Fenster:
4Stck. Kunststoff-Fenster weiß, 600/400 mm, isolierverglast, mit Kippbeschlag, äußere Scheibe mit Ornamentverglasung, ohne Rollladen, k-Wert 1,1W/m²K
Fensterbrüstungshöhe: Sanitärfenster 1.800 mm (Griff auf ca. 2.200mm OKFF),
Die Fenster erhalten außen eine Fensterbank.
Elektro-Installation nach VDE 0100, 400/230 V,
incl. Unterverteilung mit Sicherungsautomaten,Deckel, FI - Schutzschalter 0,03 A, Elektroplan
Kabeleinführung bauseits durch Boden , (bauseitiger Festanschluss, keine hässlichen Außenstecker, Verschließen und Abdichten der Bodenöffnung bauseits), vertikaler Kabelkanal bis zum Verteilerkasten
2Stck. Langfeldleuchte 1x36W mit Wanne
1Stck. Lichtschalter, weiß
1Stck. Serienschalter, weiß, feuchtraumgeschützt
1Stck. Alarmschalter mit Alarmleuchte für Behinderten-Bereich, Schalter direkt beim WC
montiert, die Alarmleuchte ist über der Ausgangstür außenseitig montiert
3Stck. Steckdose 230 V, weiß, feuchtraumgeschützt, ca. 1400 mm OKFF
2Stck. Steckdose für elektrische Heizung, extra abgesichert, weiß
3Stck. Steckdose für Boiler, extra abgesichert, feuchtraumgeschützt
2Stck. Elektro-Heizkonvektor 1 kW, mit stufenlosem Temperaturwähler und Thermostat
3Stck. Untertischgerät 5l - 2 kW, stufenlos von ca. 35 - 85 °C einstellbare Temperatur
1Stck. Wandventilator, Fabr. Maico, AWB 100, 90 m³/h, 13W, Wandöffnung ca. DN 100, gesteuert über Schalter
Sanitärausstattung:
3Stck. Porzellan-Tiefspül-Toilette, stehend, Farbe sanitärweiß, Kst .- WC-Brille mit Deckel, a.P. Spülkasten, Kst.-Papierhalter und Kst.-Mantelhaken
3Stck. WC-Kabine mit Holzinnentür ca. 630/1815 mm, weiß, mit Wabeneinlage, Oberfläche mit PVC Folie beschichtet, Schloss mit Frei/Besetzt-Beschlag, mit Boden- und Deckenfreiheit, Trennwand aus kunststoffbeschichteten Spanplatten mit Stahlrahmen, weiß lackiert
2Stck. Porzellan-Handwaschbecken, Farbe sanitärweiß, mit Zweihandmischbatterie für Kalt-/Warmwasser, Geruchverschluss, incl. Kristallglas-Spiegel, Kst. Ablage, Kst.-Handtuchhaken
1Stck. Porzellan-Tiefspül-Toilette für Behinderte, stehend, Farbe sanitärweiß, Kst .- WC-Brille mit Deckel, Spülkasten, Papierhalter und Mantelhaken
1Stck. Porzellan-Handwaschbeckenfür Behinderte, Farbe sanitärweiß, mit Hebelmischbatterie für Kalt-/Warmwasser,Geruchverschluss, incl. Kristallglas-Klappspiegel, Kst. Ablage, Handtuchhaken
1Stck. Stützklappgriff für Toilette
1Stck. Stützklappgriff für Toilette, mit Papierhalter
1Stck. Stützfestgriff für Handwaschbecken
1Stck. Abwasserentlüftung durch Außenwand
1Stck. Zu- 3/4'' und Abwasser Ø 100 mm, durch Boden
Alle Rohrleitungen werden hinter Vorwandinstallation verlegt
Abflussleitungen: HT-Rohr grau, ohne Anstrich
Zuflussleitungen: Kupfer-Rohr, ohne Anstrich, isoliert
8,5lfm Installationswand, ca. 1.300mm hoch, als Verkleidung der Rohrleitungen innerhalb der Sanitärinstallation., Wand als Ablagemöglichkeit geeignet
3lfm Installationswand, raumhoch, als Verkleidung der Rohrleitungen innerhalb der
Sanitärinstallation