
Art.Nr.: 2182403
TECHNISCHE BAUBESCHREIBUNG
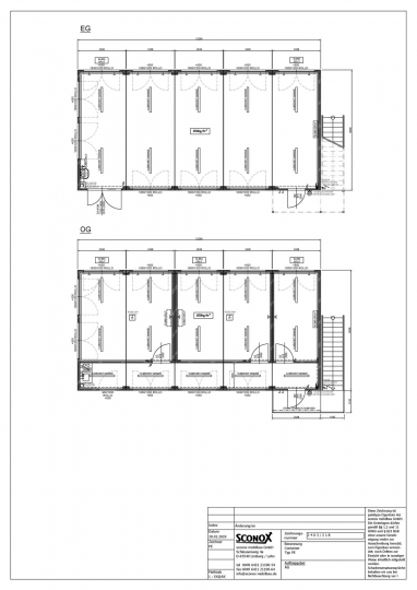
1 Stck. Mobilraum-Kombination, Maße: |
6.058 x 12.250 x 5.680 mm IH 2.500 mm |
bestehend aus:
10 Stck. Mobilraum-Elementen, Maße je CTR: |
6.058 x 2.438 x 2.840 mm IH 2.500 mm
|
gemäß Beschreibung und Zeichnung - ohne Gabelstaplertaschen
Rahmen
Unter Fachaufsicht verschweißte Stahlkonstruktion aus Hohl- und Walzprofilen, grundiert, Lackierung mit Farbe auf Polyurethan Basis, in einem Farbton der Palette RAL classic Ihrer Wahl lackiert* , 8 Stck. Containerecken. Ausführung laut prüffähiger Statik und bei entsprechend vorbereiteter Gründung zweifach stapelbar.
*(außer die beiden RAL Töne 9006/9007, diese gegen Aufpreis und unter Einschränkungen -Leucht- oder Signalfarben sind nicht möglich.)
Bodenaufbau
Blindboden: 0,5 mm verzinktes Profilblech zu Bodenquerträgern aufgenietet
Dämmung: Mineralwolle, Brandverhalten gem. DIN EN 13501-1, Baustoffklasse A1 - nichtbrennbar
Dampfsperre: 0,2 mm Polyäthylenfolie
Bodenplatte: 22 mm zementgebundene Spanplatte, wasserresistent, Brandverhalten gem. DIN EN 13501-1, Klasse A2-S1, auf Profilstahlträgern verschraubt, Stöße gespachtelt und geschliffen, von unten mit U-Profil unterlegt
Bodenbelag: 2,0mm PVC Tarkett „Standard plus", Brandklasse Bfl-s1 nach DIN EN 13501-1, in Bahnen verlegt und vollflächig verklebt, Nähte verschweißt, Farbe grau marmoriert, Wandabschluss mit 60 mm Hartkernsockelleisten, weiß
Verkehrslast des Bodens: 5.000 N/m²
... Erhöhung auf Wunsch möglich…
Wandaufbau
Profilblech: 0,55 mm verzinktes Profilblech, lackiert in Farbton wie Rahmen oder gegen Mehrpreis abweichend in einem Farbton der Palette RAL classic Ihrer Wahl lackiert*, 10 mm Sickentiefe, genietet auf verzinkten U-Profil-Ständerwerk aus verz. Stahl in Stärke gem. Wärmedämmung, Ständerwerk verschraubt zur Stahlrahmenkonstruktion
Dämmung: Mineralwolle, Brandverhalten gem. DIN EN 13501-1, Baustoffklasse A1 - nichtbrennbar
Dampfsperre: 0,2 mm Polyäthylenfolie
*(außer die beiden RAL Töne 9006/9007, diese gegen Aufpreis und unter Einschränkungen -Leucht- oder Signalfarben sind nicht möglich.)
Zwangsbe- oder Entlüftungen in den Außenwänden mit außen liegendem Kiemenblech und innen liegendem Kunststoffgitter mit Insektenschutz. Zwischen Außenblech und Gitter PVC Rohr NW 100 mm als Leibung zur der Isolierung.
Ausführung der Wärmedämmung für EnEV2014
Boden 200 mm Mineralwolle, U=0,165 W/m²K
Außenwände 200 mm Mineralwolle, U=0,168 W/m²K
Zwischenwände 60 mm Mineralwolle, U=0,574 W/m²K
Dach 220 mm Mineralwolle, U=0,153 W/m²K
Dachaufbau
Profilblech: 0,75 mm Profilblech verzinkt, nicht lackiert, Sickentiefe 40 mm, belüftet, aufgelegt und befestigt auf speziell gekanteten Dachquerträgern, die mit der Rahmenkonstruktion verschraubt sind.
Dämmung: Mineralwolle, Brandverhalten gem. DIN EN 13501-1, Baustoffklasse A1 - nichtbrennbar
Dampfsperre: 0,2 mm Polyäthylenfolie
Dachentwässerung erfolgt je Containermodul über vier PVC-Fallrohre (NW 60 mm Außendurchmesser 63mm), die in den Ecksäulen nicht sichtbar verlegt sind. Diese sind an einer Kastenrinne angeschlossen welche in den beiden stirnseitigen Dachrahmen der Container integriert ist. Anschluss an Kanalnetz kundenseitig.
Schneelast*: 1,25 kN/m², Dach zu Revisionszwecken begehbar
(*Standard-Schneelast. Je nach Aufstellort ist bauseitig zu prüfen, ob ggfls. höhere Schneelasten zu gewährleisten sind. Das Dach für höhere Schneelasten auszulegen ist gegen Mehrpreis möglich.
Innenverkleidung
(ohne Feuerschutzausführung)
Decke: 10 mm beidseitig melaminharzbeschichtete Spanplatte V20, weiß, Schutzklasse E1, Brandverhalten gem. DIN EN 13501-1: D-S2, an Profilstahlträgern genietet, Nietköpfe mit farblich passenden Kunststoffkappen abgedeckt, alle Stoß- und Eckverbindungen mit speziellen Kunststoffleisten versehen
Wände: 10 mm beidseitig melaminharzbeschichtete Spanplatte V20, weiß, Schutzklasse E1, Brandverhalten gem. DIN EN 13501-1: D-S2, an Stahlständerwerk genietet, Nietköpfe mit farblich passenden Kunststoffkappen abgedeckt, alle Stoß- und Eckverbindungen mit speziellen Kunststoffleisten versehen
Innentrennwände mit Wärmedämmung
AUSSTATTUNG:
Außentür:
2Stck. MZ-Mehrzwecktür 875/2000 mm, aus verzinktem Stahlblech, Isolierfüllung, glatte Ausführung, Spezial-Eckzarge mit 4-seitiger Dichtung, Türblattstärke 40 mm, standardmäßig innen wie außen im Farbton der Außenwände lackiert, Beschlag, mit PZ-Schloss und 3 Schlüsseln,
incl. Türanschlag aus Gummi
1Stck. ZK/KOM Stahltür 1700/2075 mm, 2-flügelig, mit einem Gehflügel mit PZ-Schloss und 3 Schlüsseln, beidseitig Drücker und einem Standflügel mit Treibriegel, verzinkt, isoliert, glatte Ausführung,
Spezial-Eckzarge mit 3-seitiger Dichtung, Türblattstärke 40 mm, standardmäßig innen
wie außen im Farbton der Außenwände lackiert, incl. Türanschlag
Innentür:
3Stck. Holzinnentür 875/2000 mm, Stahlumfassungszarge, weiß, Türblatt mit Wabeneinlage, Oberfläche mit PVC Folie beschichtet oder lackiert, Kst.- Drückergarnitur und Beschlag, BB-Schloss und 1 Schlüssel
Fenster:
20Stck. Kunststoff-Fenster weiß, 1800/1200 mm, 2-flügelig, isolierverglast, beide Flügel mit Dreh/Kippbeschlag, incl. Kunststoffrollladen, Gurtrollern a. P., k-Wert 1,1W/m²K
1Stck. Kunststoff-Fenster weiß, 900/1200 mm, 1-flügelig, isolierverglast,
Dreh/Kippbeschlag, incl. Kunststoffrollladen, Gurtrollern a. P., k-Wert 1,1W/m²K
Fensterbrüstungshöhe: Standard-Fenster 850 mm OKFF
Die Fenster erhalten außen eine Fensterbank.
Elektro-Installation nach VDE 0100, 400/230 V,
incl. Geschossverteilungen mit Sicherungsautomaten, Deckel, FI - Schutzschalter, Elektroplan
Kabeleinführung bauseits durch Boden , (bauseitiger Festanschluss, keine hässlichen Außenstecker, Verschließen und Abdichten der Bodenöffnung bauseits), vertikaler Kabelkanal bis zum Verteilerkasten Kabelführung von Container zu Container im Kabelkanal unter Decke.
15Stck. Langfeldleuchte 1x36W mit Wanne
2Stck. Außenleuchte mit Bewegungsmelder
3Stck. Lichtschalter, weiß
4Stck. Wechselschalter, weiß
20Stck. Steckdose 230 V, weiß
5Stck. Steckdose 2x230 V, weiß
24Stck. Steckdose 230V, im Bodentank eingebaut
4Stck. Außensteckdose 230V, feuchtraumgeschützt
1Stck. Steckdose 230 V, weiß, feuchtraumgeschützt, ca. 1400 mm OKFF
1Stck. Steckdose für Boiler, extra abgesichert, feuchtraumgeschützt
1Stck. Untertischgerät 5l - 2 kW, stufenlos von ca. 35 - 85 °C einstellbare Temperatur
60lfm Fensterbrüstungskanal 170/65mm, weiß, für Daten- und Stromleitungen, mit separaten Deckenabschnitten für Einbaudosen, mit Trennleiste
2Stck. Bodentank LeGrand
1Stck. Inverter-Splitklimagerät mit Wärmepumpenfunktion zum effizienten Heizen mit erneuerbarer Energie (Umgebungswärme) - besteht aus 1 Außengerät und 1 Innengerät, als Wandgerät mit IR - Fernbedienung, Typ: Fujitsu ASYG07LLCC-/ AOYG07LLCC, ohne Kondensatpumpe -> Kondenswasser wird mit Gefälle durch Regenablauf abgeführt
|
ASYG07LLCC/ AOYG07LLCC |
Nennwerte lt. Datenblatt Fujitsu Änderungen / Irrtum vorbehalten |
Davon aus Stromnetz (Rest aus Außenluft) |
|
|
Nennleistung Kühlen |
kW |
2,0 (0,9 - 2,8 geregelt) |
ø ~ 0,426 kW |
|
Nennleistung Heizen |
kW |
2,7 (0,9 - 3,6 geregelt) |
ø ~ 0,620 kW |
|
EER Kühlen |
W/W |
4,26 |
EEK ø: A++ |
|
COP Heizen |
W/W |
4,35 |
EEK ø: A+ |
2Stck. Inverter-Splitklimagerät mit Wärmepumpenfunktion zum effizienten Heizen mit erneuerbarer Energie (Umgebungswärme) - besteht aus 1 Außengerät und 1 Innengerät, als Wandgerät mit IR - Fernbedienung, Typ: Fujitsu ASYG09LLCC-/ AOYG09LLCC, ohne Kondensatpumpe -> Kondenswasser wird mit Gefälle durch Regenablauf abgeführt
|
ASYG09LLCC / AOYG09LLCC |
Nennwerte lt. Datenblatt Fujitsu Änderungen / Irrtum vorbehalten |
Davon aus Stromnetz (Rest aus Außenluft) |
|
|
Nennleistung Kühlen |
kW |
2,5 (0,9 - 3,0 geregelt) |
ø ~ 0,730 kW |
|
Nennleistung Heizen |
kW |
3,0 (0,9 - 3,8 geregelt) |
ø ~ 0,740 kW |
|
EER Kühlen |
W/W |
3,42 |
EEK ø: A++ |
|
COP Heizen |
W/W |
4,05 |
EEK ø: A+ |
2Stck. Inverter-Splitklimagerät mit Wärmepumpenfunktion zum effizienten Heizen mit erneuerbarer Energie (Umgebungswärme) - besteht aus 1 Außengerät und 1 Innengerät, als Wandgerät mit IR - Fernbedienung, Typ: Fujitsu ASYG14LMCA-/ AOYG14LMCA, ohne Kondensatpumpe -> Kondenswasser wird mit Gefälle durch Regenablauf abgeführt
|
ASYG14LMCA/ AOYG14LMCA |
Nennwerte lt. Datenblatt Fujitsu Änderungen / Irrtum vorbehalten |
Davon aus Stromnetz (Rest aus Außenluft) |
|
|
Nennleistung Kühlen |
kW |
4,0 (0,9 - 4,4 geregelt) |
ø ~ 1,135 kW |
|
Nennleistung Heizen |
kW |
5,0 (0,9 - 6,0 geregelt) |
ø ~ 1,365 kW |
|
EER Kühlen |
W/W |
3,52 |
EEK ø: A++ |
|
COP Heizen |
W/W |
3,66 |
EEK ø: A+ |
Miniküche bestehend aus:
1Stck. Unterschrank mit integriertem Kühlschrank 127 Liter, Nirosta - Spüle mit Ablage und eingebautem elektrischen Doppelkochfeld, Maß: 1000x600x900 mm
1Stck. Doppelsteckdose 2x 230 V, ca. 1.100 mm OKFF
1Stck. Doppelsteckdose 230V für Küche, extra abgesichert
1Stck. Steckdose für Boiler, extra abgesichert, feuchtraumgeschützt
1Stck. Untertischgerät 5 l - 2 kW, stufenlos von ca. 35 - 85 °C einstellbare Temperatur
Sanitärausstattung:
1Stck. Porzellan-Handwaschbecken, Farbe sanitärweiß, mit Zweihandmischbatterie für Kalt-/Warmwasser, Geruchverschluss, incl. Kristallglas-Spiegel, Kst. Ablage, Kst.-Handtuchhaken
1Stck. Zu- 3/4'' und Abwasser Ø 50 mm, durch Boden
Alle Rohrleitungen werden auf Wand verlegt
Abflussleitungen: HT-Rohr grau, ohne Anstrich
Zuflussleitungen: Kupfer-Rohr, ohne Anstrich, ohne Isolierung
Sonstiges:
1Stck. Vordach als Dachrahmenverlängerung ca. 2.438 Breit, Auskragung 1.000mm,
Untersicht Trapezblech, lackiert in Farbton der Fassade, Entwässerung in die Rinne CT
1Stck. Stahlaußentreppe, einarmig, mit Podest aus Gitterost, beide Außenseiten mit Vierkantrohr-Geländer und Vierkantrohrhandlauf, alle Stahlteile verzinkt. Treppenbreite 1.130 mm (laut Zeichnung)