
Art.Nr.: 2182526_Var. 1
TECHNISCHE BAUBESCHREIBUNG
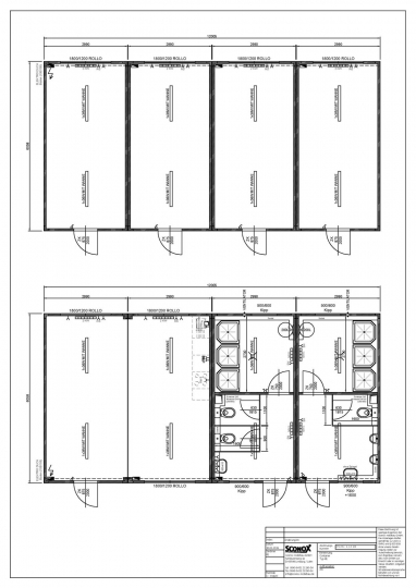
2 Stck. Mobilraum-Kombination, Maße: |
6.058 x 12.005 x 2.840 mm IH 2.500 mm |
bestehend aus:
4 Stck. Mobilraum-Elementen, Maße je CTR:Einzel-Container ohne WC |
6.058 x 2.990 x 2.840 mm IH 2.500 mm
|
4 Stck. Mobilraum-Elementen, Maße je CTR:Aufenthalt + Sanitär (Dusche / WC) |
6.058 x 2.990 x 2.840 mm IH 2.500 mm
|
gemäß Beschreibung und Zeichnung - ohne Gabelstaplertaschen
Rahmen
Unter Fachaufsicht verschweißte Stahlkonstruktion aus Hohl- und Walzprofilen, grundiert, Lackierung mit Farbe auf Polyurethan Basis, in einem Farbton der Palette RAL classic Ihrer Wahl lackiert* , 8 Stck. Containerecken. Ausführung laut prüffähiger Statik und bei entsprechend vorbereiteter Gründung zweifach stapelbar.
*(außer die beiden RAL Töne 9006/9007, diese gegen Aufpreis und unter Einschränkungen -Leucht- oder Signalfarben sind nicht möglich.)
Bodenaufbau
Blindboden: 0,5 mm verzinktes Profilblech zu Bodenquerträgern aufgenietet
Dämmung: Mineralwolle, Brandverhalten gem. DIN EN 13501-1, Baustoffklasse A1 - nichtbrennbar
Dampfsperre: 0,2 mm Polyäthylenfolie
Bodenplatte: 22 mm Spanplatte V100, Brandverhalten gem. DIN EN 13501-1, Klasse D-S2, auf Profilstahlträgern verschraubt, Stöße gespachtelt und geschliffen, von unten mit U-Profil unterlegt
in Duschcontainer - 22 mm zementgebundene Spanplatte, wasserresistent, Brandverhalten gem. DIN EN 13501-1, Klasse A2-S1, auf Profilstahlträgern verschraubt, Stöße gespachtelt und geschliffen, von unten mit U-Profil unterlegt
Bodenbelag: 2,0mm PVC Tarkett „Standard plus", Brandklasse Bfl-s1 nach DIN EN 13501-1, in Bahnen verlegt und vollflächig verklebt, Nähte verschweißt, Farbe grau marmoriert, Wandabschluss mit 60 mm Hartkernsockelleisten, weiß
in Duschcontainer - 2 mm PVC Grabo JSK, Brandklasse Cfl-s1 nach DIN EN 13501-1, B1 nach DIN
4102, rutschhemmend R 10, in Bahnen verlegt und vollflächig verklebt, Nähte
verschweißt, Farbe grau marmoriert, PVC als Wanne verlegt - ca. 70…100mm an der
Wand hochgezogen
Verkehrslast des Bodens: 2.500 N/m²
... Erhöhung auf Wunsch möglich…
Wandaufbau
Profilblech: 0,55 mm verzinktes Profilblech, lackiert in Farbton wie Rahmen oder gegen Mehrpreis abweichend in einem Farbton der Palette RAL classic Ihrer Wahl lackiert*, 10 mm Sickentiefe, genietet auf verzinkten U-Profil-Ständerwerk aus verz. Stahl in Stärke gem. Wärmedämmung, Ständerwerk verschraubt zur Stahlrahmenkonstruktion
Dämmung: Mineralwolle, Brandverhalten gem. DIN EN 13501-1, Baustoffklasse A1 - nichtbrennbar
Dampfsperre: 0,2 mm Polyäthylenfolie
*(außer die beiden RAL Töne 9006/9007, diese gegen Aufpreis und unter Einschränkungen -Leucht- oder Signalfarben sind nicht möglich.)
Zwangsbe- oder Entlüftungen in den Außenwänden mit außen liegendem Kiemenblech und innen liegendem Kunststoffgitter mit Insektenschutz. Zwischen Außenblech und Gitter PVC Rohr NW 100 mm als Leibung zur der Isolierung.
Basis-Wärmedämmung (entspricht nicht EnEV 2014. Erfüllung gegen Mehrpreis möglich.)
Boden 80 mm Mineralwolle, k= 0,472 W/m²K
Außenwände 60 mm Mineralwolle, k= 0,698 W/m²K
Zwischenwände 60 mm Mineralwolle, k= 0,698 W/m²K
Dach 80 mm Mineralwolle, k= 0,491 W/m²K
Dachaufbau
Profilblech: 0,75 mm Profilblech verzinkt, nicht lackiert, Sickentiefe 40 mm, belüftet, aufgelegt und befestigt auf speziell gekanteten Dachquerträgern, die mit der Rahmenkonstruktion verschraubt sind.
Dämmung: Mineralwolle, Brandverhalten gem. DIN EN 13501-1, Baustoffklasse A1 - nichtbrennbar
Dampfsperre: 0,2 mm Polyäthylenfolie
Dachentwässerung erfolgt je Containermodul über vier PVC-Fallrohre (NW 60 mm Außendurchmesser 63mm), die in den Ecksäulen nicht sichtbar verlegt sind. Diese sind an einer Kastenrinne angeschlossen welche in den beiden stirnseitigen Dachrahmen der Container integriert ist. Anschluss an Kanalnetz kundenseitig.
Schneelast*: 1,25 kN/m², Dach zu Revisionszwecken begehbar
(*Standard-Schneelast. Je nach Aufstellort ist bauseitig zu prüfen, ob ggfls. höhere Schneelasten zu gewährleisten sind. Das Dach für höhere Schneelasten auszulegen ist gegen Mehrpreis möglich.
Innenverkleidung
(ohne Feuerschutzausführung)
Decke: 10 mm beidseitig melaminharzbeschichtete Spanplatte V20, weiß, Schutzklasse E1, Brandverhalten gem. DIN EN 13501-1: D-S2, an Profilstahlträgern genietet, Nietköpfe mit farblich passenden Kunststoffkappen abgedeckt, alle Stoß- und Eckverbindungen mit speziellen Kunststoffleisten versehen
Wände: 10 mm beidseitig melaminharzbeschichtete Spanplatte V20, weiß, Schutzklasse E1, Brandverhalten gem. DIN EN 13501-1: D-S2, an Stahlständerwerk genietet, Nietköpfe mit farblich passenden Kunststoffkappen abgedeckt, alle Stoß- und Eckverbindungen mit speziellen Kunststoffleisten versehen
Innentrennwände mit Wärmedämmung
AUSSTATTUNG - Einzel-Container:
Außentür:
4Stck. ZK Stahltür 875/2000 mm, verzinkt, isoliert, glatte Ausführung, Spezial-Eckzarge mit 3seitiger Dichtung, Türblattstärke 40 mm, standardmäßig innen wie außen im Farbton der Außenwände lackiert, Beschlag, mit PZ-Schloss und 3 Schlüsseln, incl. Türanschlag
Fenster:
4Stck. Kunststoff-Fenster weiß, 1800/1200 mm, 2-flügelig, isolierverglast, beide Flügel mit Dreh/Kippbeschlag, incl. Kunststoffrollladen, Gurtrollern a. P., k-Wert 1,1W/m²K
Fensterbrüstungshöhe: Standard-Fenster 850 mm OKFF
Die Fenster erhalten außen eine Fensterbank.
Elektro-Installation nach VDE 0100, 400/230 V,
incl. Unterverteilung mit Sicherungsautomaten,Deckel, FI - Schutzschalter 0,03 A, Elektroplan
Kabeleinführung bauseits durch Boden , (bauseitiger Festanschluss, keine hässlichen Außenstecker, Verschließen und Abdichten der Bodenöffnung bauseits), vertikaler Kabelkanal bis zum Verteilerkasten Kabelführung von Container zu Container im Kabelkanal unter Decke.
8Stck. Langfeldleuchte 1x36W mit Wanne
4Stck. Lichtschalter, weiß
8Stck. Steckdose 230 V, weiß
4Stck. Steckdose für elektrische Heizung, extra abgesichert, weiß
4Stck. Elektro-Heizkonvektor 2 kW, mit stufenlosem Temperaturwähler und Thermostat
AUSSTATTUNG - Aufenthalt + Sanitär:
Außentür:
3Stck. ZK Stahltür 875/2000 mm, verzinkt, isoliert, glatte Ausführung, Spezial-Eckzarge mit 3seitiger Dichtung, Türblattstärke 40 mm, standardmäßig innen wie außen im Farbton der Außenwände lackiert, Beschlag, mit PZ-Schloss und 3 Schlüsseln, incl. Türanschlag
Innentür:
2Stck. ZK Stahltür 750/2000 mm, verzinkt, Tür und Zarge weiß lackiert, glatte Ausführung, isoliert, Spezial-Eckzarge mit 3seitiger Dichtung, Türblattstärke 40 mm,
Beschlag mit PZ-Schloss und 3 Schlüsseln, incl. Türanschlag
Fenster:
3Stck. Kunststoff-Fenster weiß, 1800/1200 mm, 2-flügelig, isolierverglast, beide Flügel mit Dreh/Kippbeschlag, incl. Kunststoffrollladen, Gurtrollern a. P., k-Wert 1,1W/m²K
4Stck. Kunststoff-Fenster weiß, 900/600 mm, isolierverglast, mit Kippbeschlag,
ohne Rollladen, k-Wert 1,1W/m²K
Fensterbrüstungshöhe: Standard-Fenster 850 mm OKFF
Sanitärfenster 1.600 mm (Griff auf ca. 2.200mm OKFF)
Die Fenster erhalten außen eine Fensterbank.
Elektro-Installation nach VDE 0100, 400/230 V,
incl. Unterverteilung mit Sicherungsautomaten,Deckel, FI - Schutzschalter 0,03 A, Elektroplan
Kabeleinführung bauseits durch Boden , (bauseitiger Festanschluss, keine hässlichen Außenstecker, Verschließen und Abdichten der Bodenöffnung bauseits), vertikaler Kabelkanal bis zum Verteilerkasten Kabelführung von Container zu Container im Kabelkanal unter Decke.
6Stck. Langfeldleuchte 1x36W mit Wanne
2Stck. Langfeldleuchte 1x36W mit Wanne, feuchtraumgeschützt
3Stck. Lichtschalter, weiß
2Stck. Serienschalter, weiß, feuchtraumgeschützt
4Stck. Steckdose 230 V, weiß
2Stck. Steckdose 230 V, weiß, feuchtraumgeschützt, ca. 1400 mm OKFF
6Stck. Steckdose für elektrische Heizung, extra abgesichert, weiß
4Stck. Elektro-Heizkonvektor 1 kW, mit stufenlosem Temperaturwähler und Thermostat
2Stck. Elektro-Heizkonvektor 2 kW, mit stufenlosem Temperaturwähler und Thermostat
2Stck. Elektro-Boiler AEG, EWH Basis 200, 200l, AC, 2-4 kW / 230 V, Maße 1570/550/690 mm, 200L, 70 kg, 35 - 85 °C, Sicherungsthermostat, Frostsicherung
2Stck. Wandventilator, Fabr. Maico, AWB 100, 90 m³/h, 13W, Wandöffnung ca. DN 100, gesteuert über Schalter
Vorbereitung für Miniküche (ohne Küchenmöbel, ohne Boiler) bestehend aus:
1Stck. Doppelsteckdose 2x 230 V, ca. 1.100 mm OKFF
1Stck. Doppelsteckdose 230V für Küche, extra abgesichert
1Stck. Steckdose für Boiler, extra abgesichert, feuchtraumgeschützt
1Stck. Herdanschlussdose u.P. 400V, 16A, MERTEN 520427
1Stck. Zu- 3/4'' und Abwasser Ø 50 mm , durch Boden
Alle Rohrleitungen werden auf Wand verlegt
Abflussleitungen: HT-Rohr grau, ohne Anstrich
Zuflussleitungen: Kupfer-Rohr, ohne Anstrich, ohne Isolierung
Sanitärausstattung:
3Stck. Porzellan-Tiefspül-Toilette, stehend, Farbe sanitärweiß, Kst .- WC-Brille mit Deckel, a.P. Spülkasten, Kst.-Papierhalter und Kst.-Mantelhaken
3Stck. WC-Kabine mit Holzinnentür ca. 630/1815 mm, weiß, mit Wabeneinlage, Oberfläche mit PVC Folie beschichtet, Schloss mit Frei/Besetzt-Beschlag, mit Boden- und Deckenfreiheit, Trennwand aus kunststoffbeschichteten Spanplatten mit Stahlrahmen, weiß lackiert
2Stck. Porzellanurinal mit Geruchverschluss und a.P. Spüler
1Stck. Standard-Schamwand weiß, aus Spanverbundplatte mit kunststoffbeschichteter Oberfläche und Stahlrahmen aus Rundrohr
2Stck. Porzellan-Handwaschbecken, Farbe sanitärweiß, mit Zweihandmischbatterie für Kalt-/Warmwasser, Geruchverschluss, incl. Kristallglas-Spiegel (eine davon ohne Spiegel),
Kst. Ablage, Kst.-Handtuchhaken
6Stck. Kunststoff-Duschkabine 800/800 mm, mit Stand- und Schlauchbrause, Einhandmischbatterie und Duschvorhang
2Stck. Gully (Notablauf) mit Geruchsverschluss (ohne Gefälle), nicht an die Abfluss-Leitung angeschlossen
2Stck. Abwasserentlüftung durch Außenwand
2Stck. Zu- 3/4'' und Abwasser Ø 100 mm, durch Boden
Alle Rohrleitungen werden hinter Sockelkanal verlegt
Abflussleitungen: HT-Rohr grau, ohne Anstrich
Zuflussleitungen: Kupfer-Rohr, ohne Anstrich, ohne Isolierung