
Art.Nr.: 20OPPG 0361
|
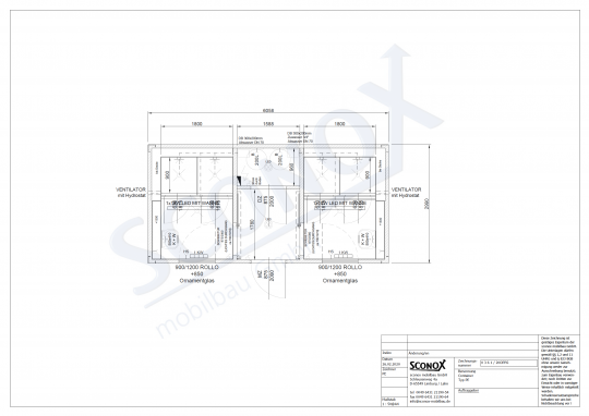
1 Stck. Mobilraum-Elemente, Maße je CTR: |
6.058 x 2.990 x 2.880 mm IH 2.500 mm |
gemäß Beschreibung und Zeichnung – ohne Gabelstaplertaschen
Unter Fachaufsicht verschweißte Stahlkonstruktion aus Hohl- und Walzprofilen, grundiert, Lackierung mit Farbe auf Polyurethan Basis, in einem Farbton der Palette RAL classic Ihrer Wahl lackiert* , 8 Stck. Containerecken. Ausführung laut prüffähiger Statik und bei entsprechend vorbereiteter Gründung zweifach stapelbar.
*(außer die beiden RAL Töne 9006/9007, diese gegen Aufpreis und unter Einschränkungen –Leucht- oder Signalfarben sind nicht möglich.)
Blindboden: 0,5 mm verzinktes Profilblech zu Bodenquerträgern aufgenietet
Dämmung: Mineralwolle, Brandverhalten gem. DIN EN 13501-1, Baustoffklasse A1 - nichtbrennbar
Dampfsperre: 0,2 mm Polyäthylenfolie
Bodenplatte: 22 mm zementgebundene Spanplatte , wasserresistent, Brandverhalten gem. DIN EN 13501-1, Klasse A2-S1, auf Profilstahlträgern verschraubt, Stöße gespachtelt und geschliffen,
von unten mit U-Profil unterlegt
Bodenbelag: Bodenfliesen 200 x 200 mm, Fabr. LASSELSBERGER/RAKO „Taurus“, grau,
Fugenfarbe grau, rutschhemmend R10/A
Verkehrslast des Bodens: 5.000 N/m²
... Erhöhung auf Wunsch möglich… Ausführung und Preise auf Anfrage. Lastangaben sind zu verstehen als Nutzlasten im auf dem Fundament aufgestellten Zustand (d.h. nicht am Kranhaken), flächig und ohne Einzellastfall.
Profilblech: 0,55 mm verzinktes Profilblech, lackiert in Farbton wie Rahmen oder gegen Mehrpreis abweichend in einem Farbton der Palette RAL classic Ihrer Wahl lackiert*, 10 mm Sickentiefe, genietet auf verzinkten U-Profil-Ständerwerk aus verz. Stahl in Stärke gem. Wärmedämmung, Ständerwerk verschraubt zur Stahlrahmenkonstruktion
Dämmung: Mineralwolle, Brandverhalten gem. DIN EN 13501-1, Baustoffklasse A1 - nichtbrennbar
Dampfsperre: 0,2 mm Polyäthylenfolie
*(außer die beiden RAL Töne 9006/9007, diese gegen Aufpreis und unter Einschränkungen –Leucht- oder Signalfarben sind nicht möglich.)
Zwangsbe- oder Entlüftungen in den Außenwänden mit außen liegendem Kiemenblech und innen liegendem Kunststoffgitter mit Insektenschutz. Zwischen Außenblech und Gitter PVC Rohr NW 100 mm als Leibung zur der Isolierung.
(entspricht nicht EnEV 2014. Erfüllung gegen Mehrpreis möglich.)
Boden 160 mm Mineralwolle, k= 0, W/m²K
Außenwände 60 mm Mineralwolle, k= 0,698 W/m²K
Dach 80 mm Mineralwolle, k= 0,491 W/m²K
Profilblech: 0,75 mm Profilblech verzinkt, nicht lackiert, Sickentiefe 40 mm, belüftet, aufgelegt und befestigt auf speziell gekanteten Dachquerträgern, die mit der Rahmenkonstruktion verschraubt sind.
Dämmung: Mineralwolle, Brandverhalten gem. DIN EN 13501-1, Baustoffklasse A1 – nichtbrennbar
Dampfsperre: 0,2 mm Polyäthylenfolie
Dachentwässerung erfolgt je Containermodul über vier PVC-Fallrohre (NW 60 mm Außendurchmesser 63mm), die in den Ecksäulen nicht sichtbar verlegt sind. Diese sind an einer Kastenrinne angeschlossen welche in den beiden stirnseitigen Dachrahmen der Container integriert ist. Anschluss an Kanalnetz kundenseitig.
Schneelast*: 1,25 kN/m², Dach zu Revisionszwecken begehbar
(*Standard-Schneelast. Je nach Aufstellort ist bauseitig zu prüfen, ob ggfls. höhere Schneelasten zu gewährleisten sind. Das Dach für höhere Schneelasten auszulegen ist gegen Mehrpreis möglich.
Innenverkleidung
(ohne Feuerschutzausführung)
Decke: 12,5 mm GKB-i Platten verspachtelt, verschliffen und 2x deckend
mit Dispersionsfarbe / Latexfarbe gestrichen
Wände: Wandfliesen 200x200 mm - raumhoch, weißes Dekor, Fugenfarbe weiß, Wandfliesen in einem hochelastischen Kleberbett im Dünnbettverfahren auf den imprägnierten Gipskartonplatten 2x 12,5mm GKBi, die vorher mit Tiefengrund behandelt worden sind, verlegt. Wandabschluss mit Silicon abgedichtet
offenen Duschen - Wandfliesen 200x200 mm - raumhoch,
Rako COLOR ONE, Farbe weiß (matt oder glänzend, nach Wunsch), Fugenfarbe weiss,
in einem hochelastischen Kleberbett im Dünnbettverfahren auf den,Fermacell H2O Platten, die vorher mit Hydroisolation MAPEI behandelt worden sind, verlegt. Wandabschluss mit Silicon abgedichtet
Innentrennwände mit Wärmedämmung
1Stck. MZ-Mehrzwecktür 875/2000 mm, aus verzinktem Stahlblech, Isolierfüllung, glatte Ausführung, Spezial-Eckzarge mit 4-seitiger Dichtung, Türblattstärke 40 mm,
standardmäßig innen wie außen im Farbton der Außenwände lackiert, Beschlag,
mit PZ-Schloss und 3 Schlüsseln, incl. Türanschlag aus Gummi
1Stck. Holzinnentür 875/2000 mm, Stahlumfassungszarge, weiß, Türblatt mit Wabeneinlage,
Oberfläche mit PVC Folie beschichtet oder lackiert, Kst.- Drückergarnitur und Beschlag,
BB-Schloss und 1 Schlüssel
2Stck. Schiebetür 875/2000 mm, weiß, Türblatt mit Hohlfüllung, mit sichtbare Leitschiene,
Oberfläche mit HPL Platte, mit PZ-Schloss und 3 Schlüsseln
2Stck. Kunststoff-Fenster weiß, 900/1200 mm, 1-flügelig, isolierverglast,
Dreh/Kippbeschlag, äußere Scheibe mit Ornamentverglasung,
incl. Kunststoffrollladen, Gurtrollern a. P., k-Wert 1,1W/m²K
Fensterbrüstungshöhe: Standard-Fenster 850 mm OKFF
Die Fenster erhalten außen eine Fensterbank.
Elektro-Installation nach VDE 0100, 400/230 V,
incl. Unterverteilung mit Sicherungsautomaten, Deckel, FI - Schutzschalter 0,03 A, Elektroplan
Kabeleinführung bauseits durch Boden , (bauseitiger Festanschluss, keine hässlichen Außenstecker, Verschließen und Abdichten der Bodenöffnung bauseits), vertikaler Kabelkanal bis zum Verteilerkasten
2Stck. VM 136 LED 1x18W mit Deckel
2Stck. LUNA 100+ LED, incl. 7W
2Stck. Lichtschalter, weiß
2Stck. Lichtschalter, weiß, feuchtraumgeschützt
2Stck. Steckdose 230 V, weiß, feuchtraumgeschützt, ca. 1400 mm OKFF
2Stck. Steckdose für elektrische Heizung, extra abgesichert, weiß
2Stck. Elektro-Heizkonvektor 1 kW, mit stufenlosem Temperaturwähler und Thermostat
2Stck. Elektro-Boiler AEG, EWH Basis 200, 200l, AC, 2-4 kW / 230 V, Maße 1570/550/690 mm, 200L, 70 kg, 35 - 85 °C, Sicherungsthermostat, Frostsicherung
2Stck. Wandventilator, Fabr. Maico, AWB 100, 90 m³/h, 13W, Wandöffnung ca. DN 100,
gesteuert über Hygrostat
4Stck. Kabine aus HPL Platte, Abschlüsse mit Alu-Profilen, Alu-füße,
Höhe 2000 mm, incl. 150 mm Bodenfreiheit, weiß,
Schloss mit Frei/Besetzt-Beschlag, Fabr. Böhme oder gleichwertig
4Stck. Reihen-Wanddusche (offen),
mit Zweihandmischbatterie und Duschkopf
2Stck. Porzellan-Handwaschbecken, Farbe sanitärweiß, mit Zweihandmischbatterie für Kalt-/Warmwasser, Geruchverschluss, incl. Kristallglas-Spiegel, Kst. Ablage, Kst.-Handtuchhaken
6Stck. Gully (Bodenablauf) mit Geruchsverschluss, Anschluss an Abfluss-Leitung bauseits, Gullys untereinander verbunden und zu Revisionsöffnung geführt. (Anschluss an Kanal kundenseitig)
1Stck. Abwasserentlüftung durch Außenwand
1Stck. Zu- 3/4'' durch Boden
2Stck. Abwasser Ø 70 mm, durch Boden
Alle Rohrleitungen werden hinter Vorwandinstallation verlegt
Abflussleitungen: HT-Rohr grau, ohne Anstrich
Zuflussleitungen: Kupfer-Rohr, ohne Anstrich, isoliert
4lfm Installationswand, ca. 1.300mm hoch, als Verkleidung der Rohrleitungen innerhalb der Sanitärinstallation., Wand als Ablagemöglichkeit geeignet
6lfm Installationswand, raumhoch, als Verkleidung der Rohrleitungen innerhalb der Sanitärinstallation