
Art.Nr.: 2122030
TECHNISCHE BAUBESCHREIBUNG
|
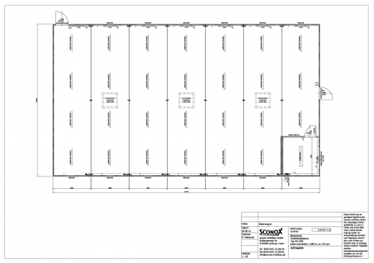
1 Stck. Mobilraum-Kombination, Maße: |
12.000 x 21.020 x 3.400 mm IH 3.095 mm
|
bestehend aus:
|
7 Stck. Mobilraum-Elementen, Maße je CTR: |
12.000 x 2.990 x 3.400 mm IH 3.095 mm
|
gemäß Beschreibung und Zeichnung - ohne Gabelstaplertaschen
Rahmen
Unter Fachaufsicht verschweißte Stahlkonstruktion aus Hohl- und Walzprofilen, grundiert, Lackierung mit Farbe auf Polyurethan Basis,in einem Standard- RAL Ton Ihrer Wahl lackiert (außer die beiden RAL Töne 9006/9007, diese gegen Aufpreis)
8 Stck. Containerecken. Ausführung laut prüffähiger Statik zweifach stapelbar
Bodenaufbau
Blindboden: 0,5 mm verzinktes Profilblech zu Bodenquerträgern aufgenietet
Isolierung: Mineralwolle, Brandschutzverhalten gem. DIN EN 13501-1, Brandschutzklasse A1
Dampfsperre: 0,2 mm Polyäthylenfolie
Bodenplatte: 22 mm zementgebundene Spanplatte, auf Profilstahlträgern verschraubt, Stöße gespachtelt und geschliffen, von unten mit U-Profil unterlegt
Bodenbelag: 2 mm Tarkett Standard, in Bahnen verlegt und vollflächig verklebt, Nähte verschweißt, Farbe grau marmoriert, Wandabschluss mit ca. 60 mm Hartkernsockelleisten, weiß
Verkehrslast des Bodens: 5.000 N/m²
... Erhöhung auf Wunsch möglich… Ausführung und Preise auf Anfrage
Wandaufbau
Profilblech: 0,55 mm verzinktes Profilblech im RAL Ton Ihrer Wahl lackiert, RAL nach Wunsch
10 mm Sickentiefe, auf verz. U-Profil-Stahl-Wandgerippe, das zur Stahlrahmenkonstruktion verschraubt ist, genietet, Stärke entsprechend der Isolierung
Isolierung: Mineralwolle, Brandschutzverhalten gem. DIN EN 13501-1, Brandschutzklasse A1
Dampfsperre: 0,2 mm Polyäthylenfolie
Zwangsbe- oder Entlüftungen in den Außenwänden mit außen liegendem Kiemenblech und innen liegendem Kunststoffgitter mit Insektenschutz. Zwischen Außenblech und Gitter PVC Rohr NW 100 mm zum Schutz der Isolierung.
Isolierung
Boden 80 mm Mineralwolle, k = 0,632 W/m²K
Außenwände 60 mm Mineralwolle, k = 0,667 W/m²K
Zwischenwände 60 mm Mineralwolle, k = 0,667 W/m²K
Dach 80 mm Mineralwolle, k = 0,522 W/m²K
Dachaufbau
Profilblech: 0,75 mm verzinktes Profilblech, Sickentiefe 40 mm, belüftet, Lagerung aufgelegt und befestigt auf speziell gekanteten Dachprofilen, die bündig mit der Rahmenkonstruktion verschraubt werden
Isolierung. Mineralwolle, Brandschutzverhalten gem. DIN EN 13501-1, Brandschutzklasse A1
Dampfsperre: 0,2 mm Polyäthylenfolie
Dachentwässerung erfolgt über 4 in den Eckstielen untergebrachte PVC- Fallrohre NW 60 mm, die auf einen in den oberen Containerkästen eingebrachten Rohrstutzen aufgebracht sind.
Dachbelastung: 1.250 N/m²
Innenverkleidung
Decke: 10 mm beidseitig melaminharzbeschichtete Spanplatte, formaldehydfrei, weiß, auf Profilstahlträgern genietet mit Blindnieten, Nietköpfe mit farblich passenden Kunststoffkappen abgedeckt, alle Stoß- und Eckverbindungen mit speziellen Kunststoffleisten versehen
Wände: 10 mm beidseitig melaminharzbeschichtete Spanplatte, weiß, formaldehydfrei, Schutzklasse E1, Nietköpfe mit farblich passenden Kunststoffkappen abgedeckt, alle Stoß- und Eckverbindungen mit speziellen Kunststoffleisten versehen
Innentrennwände mit Isolierung
AUSSTATTUNG
Außentür:
1 Stck. MZ-Mehrzwecktür 1000/2125 mm, aus feuerverzinktem Stahlblech, Isolierfüllung,
glatte Ausführung, spezielle Eckzarge mit 4-seitiger Dichtung, Türblattstärke 40 mm, standardmäßig im Containerfarbton lackiert, Panikschloss (Klinke von innen, Knopf von Außen), Sicherheitsbeschlag, PZ-Schloss und 3 Schlüssel, incl. Türanschlag aus Gummi
1 Stck. MZ-Mehrzwecktür 1000/2125 mm, aus feuerverzinktem Stahlblech, Isolierfüllung, glatte Ausführung, spezielle Eckzarge mit 4-seitiger Dichtung, Türblattstärke 40 mm, standardmäßig im Containerfarbton lackiert, Panikschloss (Stange), Sicherheitsbeschlag, PZ-Schloss und 3 Schlüssel, incl. Türanschlag aus Gummi
Innentür:
1 Stck. ZK Stahltür 875/2125 mm, mit 1/3 VSG-Glasausschnitt, verzinkt, isoliert, spezielle Eckzarge mit 3-seitiger Dichtung, Türblattstärke 40 mm, weiß lackiert, Beschlag, PZ-Schloss und 3 Schlüssel, incl. Türanschlag
Fenster:
1 Stck. Kunststoff-Fenster weiß, 1800/1200 mm, 2-flügelig, isolierverglast, mit Dreh/Kippbeschlag, incl. Kunststoffrollladen, Gurtroller auf Putz, k-Wert 1,1W/m²K, inclusive verzinktem Fenstergitter
1 Stck. Kunststoff-Fenster weiß, 1200/1200 mm, 1-flügelig, isolierverglast, feststehend, ohne Rollladen, k-Wert 1,1W/m²K
12 Stck. Kunststoff-Fenster weiß, 600/400 mm, isolierverglast, mit Kippbeschlag, ohne Rollladen, k-Wert 1,1W/m²K
3 Stck. Dachkuppel 1000 x 1000 mm, (Dachöffnung 1200 x 1200 mm) zweischalig
Kuppel aus Acryl- oder Polykarbonatglas, zum Öffnen durch einen Spindelöffner mit Handkurbelstange
Fensterbrüstungshöhe: 850 mm OKFF, Sanitärfenster 1.800 mm OKFF
Die Fenster erhalten außen eine Fensterbank
Elektro-Installation nach VDE 0100, 400/230 V,
incl. Unterverteilung mit Sicherungsautomaten, FI - Schutzschalter 0,03 A.
Kabeleinführung bauseits durch Boden, vertikaler Kabelkanal bis zum Verteilerkasten
Kabelführung von Container zu Container im Kabelkanal unter Decke.
27 Stck. Langfeldleuchte 1 x 36 W mit Wanne
1 Stck. Leuchte 2 x 58 W mit Parabolraster, hochglänzend, BAP
1 Stck. Lichtschalter-Steckdosekombination, weiß
4 Stck. Wechselschalter-Steckdosekombination, weiß
2 Stck. Doppel-Steckdose 2 x 230 V, weiß, im Kabelkanal eingebaut
13 Stck. Steckdose 230 V, weiß
1 Stck. Steckdose für el. Heizung, extra abgesichert, weiß
1 Stck. El. Heizkonvektor 1 kW, mit stufenlosem Temperaturwähler und Thermostat
7 Stck. El. Heizkonvektor 3 kW, mit stufenlosem Temperaturwähler und Thermostat, Festanschluss
6 lfm Fensterbrüstungskanal 170/65 mm, weiß, für Daten- und Stromleitungen, mit separaten Deckenabschnitten für Einbaudosen, mit Trennleiste
1 Stck. Elektroplan