
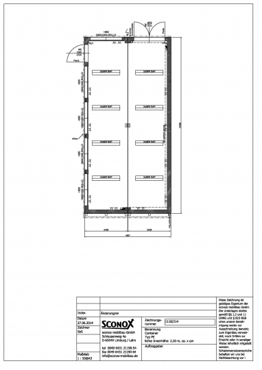
Art.Nr.: 2141118
TECHNISCHE BAUBESCHREIBUNG
|
1 Stck. Mobilraum-Kombination, Maße: |
10.000 x 4.891 x 3.180 mm I.H. 2.500 mm
|
bestehend aus:
|
2 Stck. Mobilraum-Elementen, Maße je CTR: |
10.000 x 2.438 x 3.180 mm I.H. 2.500 mm
|
gemäß Beschreibung und Zeichnung - ohne Gabelstaplertaschen
Rahmen - Profilblechfassade, Rahmen abgedeckt - inkl. Attika siehe „Sonstiges"
Unter Fachaufsicht verschweißte Stahlkonstruktion aus Hohl- und Walzprofilen, grundiert, Lackierung mit Farbe auf Polyurethan Basis, unsichtbar
8 Stck. Containerecken. Ausführung laut prüffähiger Statik zweifach stapelbar
Bodenaufbau
Blindboden: 0,5 mm verzinktes Profilblech zu Bodenquerträgern aufgenietet
Isolierung: Mineralwolle, Brandschutzverhalten gem. DIN EN 13501-1, Brandschutzklasse A1
Dampfsperre: 0,2 mm Polyäthylenfolie
Bodenplatte: 21 mm Siebdruckplatte, auf Profilstahlträgern verschraubt, Stöße gespachtelt und geschliffen, von unten mit U-Profil unterlegt
Bodenbelag: Ohne Bodenbelag
Verkehrslast des Bodens: 5.000 N/m2
... Erhöhung auf Wunsch möglich… Ausführung und Preise auf Anfrage
Wandaufbau
Profilblech: 0,55 mm verzinktes Profilblech im RAL Ton Ihrer Wahl lackiert, in einem RAL-classic Ton Ihrer Wahl lackiert (außer den RAL Tönen 9006/9007, diese gegen Aufpreis)
10 mm Sickentiefe, auf verz. U-Profil-Stahl-Wandgerippe, das zur Stahlrahmenkonstruktion verschraubt ist, genietet, Stärke entsprechend der Isolierung
Isolierung: Mineralwolle, Brandschutzverhalten gem. DIN EN 13501-1, Brandschutzklasse A1
Dampfsperre: 0,2 mm Polyäthylenfolie
Zwangsbe- oder Entlüftungen in den Außenwänden mit außen liegendem Kiemenblech und innen liegendem Kunststoffgitter mit Insektenschutz. Zwischen Außenblech und Gitter PVC Rohr NW 100 mm zum Schutz der Isolierung.
Isolierung
(Isolierung der Außenhülle EnEV2020, bei näherer Konkretisierung und auf Anfrage ist ein angepasster Energieausweis möglich)
Boden 200 mm Mineralwolle
Außenwände 200 mm Mineralwolle
Zwischenwände 60 mm Mineralwolle
Dach 220 mm Mineralwolle
Dachaufbau
Profilblech: 0,75 mm verzinktes Profilblech, Sickentiefe 40 mm, belüftet, Lagerung aufgelegt und befestigt auf speziell gekanteten Dachprofilen, die bündig mit der Rahmenkonstruktion verschraubt werden
Isolierung. Mineralwolle, Brandschutzverhalten gem. DIN EN 13501-1, Brandschutzklasse A1
Dampfsperre: 0,2 mm Polyäthylenfolie
Dachentwässerung erfolgt über integriertes Gefälledach mit leichter Neigung. Dabei wird das Wasser zu einer Stirnseite hin geleitet und dann abgeführt über in die CTR-Dachrinnen eingeschweißte Vierkantrohre und vorgehängte Regenrinne sowie Fallrohre zum weiteren bauseitigen Anschluss ca. OK Fundamente. Dachbelastung: 1 250 N/m²
Innenverkleidung
Decke: 10 mm beidseitig melaminharzbeschichtete Spanplatte, formaldehydfrei, weiß, auf Profilstahlträgern genietet mit Blindnieten, Nietköpfe mit farblich passenden Kunststoffkappen abgedeckt, alle Stoß- und Eckverbindungen mit speziellen Kunststoffleisten versehen
Wände: 10 mm beidseitig melaminharzbeschichtete Spanplatte, weiß, formaldehydfrei, Schutzklasse E1, Nietköpfe mit farblich passenden Kunststoffkappen abgedeckt, alle Stoß- und Eckverbindungen mit speziellen Kunststoffleisten versehen
AUSSTATTUNG
Außentür:
1 Stck. MZ Mehrzwecktür 1750/2125 mm, 2-flgl., aus feuerverzinktem Stahlblech, Isolierfüllung, aus feuerverzinktem Stahlblech, glatte Ausführung, Spezial-Eckzarge mit 4-seitiger Dichtung, Türblattstärke 40mm, standardmäßig im Containerfarbton lackiert, mit einem Gehflügel mit Panikschloss (Klinke - Knauf) und 3 Schlüssel, beidseitig Drücker und einem Standflügel mit Treibriegel, incl. Türanschlag aus Gummi
1 Stck. MZ-Mehrzwecktür 1000/2125 mm, aus feuerverzinktem Stahlblech, Isolierfüllung, glatte Ausführung, spezialen Eckzarge mit 4-seitiger Dichtung, Türblattstärke 40 mm, standardmäßig im Containerfarbton lackiert, Sicherheitsbeschlag, Panikschloss (Klinke - Klinke) und 3Schlüssel, incl. Türanschlag aus Gummi
Fenster:
5 Stck. Kunststoff-Fenster weiß, 1800/1200 mm, 2-flügelig, isolierverglast, mit Dreh/Kippbeschlag, incl. wärmegedämmte Kunststoffrolladen, Gurtrollern a. P., k-Wert 1,1W/m²K
Fensterbrüstungshöhe: a) Standard Fenster: 950 mm OKFF
Die Fenster erhalten außen eine Fensterbank
Elektro-Installation nach VDE 0100, 400/230 V,
Kabeleinführung bauseits durch Boden, vertikales Kabelkanal bis zum Verteilerkasten.
Kabelführung von Container zu Container im Kabelkanal unter Decke. (Keine Außenstecker!)
8 Stck. Leuchte 2x58W mit Parabolraster, hochglänzend, BAP
2 Stck. Wechselschalter-Steckdosekombination, weiß
22 Stck. Doppel-Steckdose 2x230 V, weiß
1 Stck. Elektroplan
Sonstiges:
30lfm Attika-Blende, gekantet aus verzinktem Stahlblech 1,5 mm stark, incl. Befestigungshalter, Halterung am Dachrahmen verschraubt, Oberfläche in Farbe licht- und wetterbeständiger Zwei-Komponentenlack lackiert RAL, Blendhöhe 400 mm