
Art.Nr.: 2122626
TECHNISCHE BAUBESCHREIBUNG
|
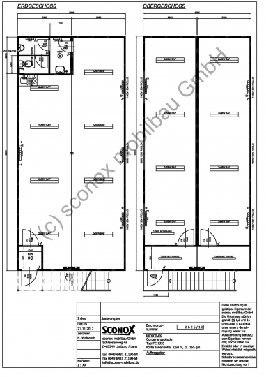
1 Stck. Mobilraum-Kombination, Maße: |
13.000 x 5.995 x 5.640 mm
|
bestehend aus:
|
4 Stck. Mobilraum-Elementen, Maße je CTR: |
13.000 x 2.990 x 2.820 mm I.H. 2.500 mm
|
gemäß Beschreibung und Zeichnung - ohne Gabelstaplertaschen
Rahmen
Unter Fachaufsicht verschweißte Stahlkonstruktion aus Hohl- und Walzprofilen, grundiert, Lackierung mit Farbe auf Polyurethan Basis, in einem Standard- RAL Ton Ihrer Wahl lackiert (außer die beiden RAL Töne 9006/9007, diese gegen Aufpreis)
8 Stck. Containerecken. Ausführung laut prüffähiger Statik zweifach stapelbar
Bodenaufbau
Blindboden: 0,5 mm verzinktes Profilblech zu Bodenquerträgern aufgenietet
Isolierung: Mineralwolle, Brandschutzverhalten gem. DIN EN 13501-1, Brandschutzklasse A1
Dampfsperre: 0,2 mm Polyäthylenfolie
Bodenplatte: 22 mm Spanplatte V 100, auf Profilstahlträgern verschraubt, Stöße gespachtelt und geschliffen, von unten mit U-Profil unterlegt
Sanitärbereich: 22 mm zementgebundene Spanplatte
Bodenbelag: 2 mm PVC Tarkett Standard, in Bahnen verlegt und vollflächig verklebt, Nähte verschweißt, Farbe grau marmoriert, Wandabschluss mit 60 mm Hartkernsockelleisten, weiß
Sanitärbereich: Bodenfliesen 200/200 mm , Rako - TAURUS GRANIT, rutschhemmend R 10, Farbe 76 Nordic, Fugenfarbe grau
Verkehrslast des Bodens: 2.500 N/m2
Verkehrslast des Bodens im Sanitärbereich: 5.000 N/m2
... Erhöhung auf Wunsch möglich… Ausführung und Preise auf Anfrage
Wandaufbau
Profilblech: 0,55 mm verzinktes Profilblech im RAL Ton Ihrer Wahl lackiert, RAL nach Wunsch
10 mm Sickentiefe, auf verz. U-Profil-Stahl-Wandgerippe, das zur Stahlrahmenkonstruktion verschraubt ist, genietet, Stärke entsprechend der Isolierung
Isolierung: Mineralwolle, Brandschutzverhalten gem. DIN EN 13501-1, Brandschutzklasse A1
Dampfsperre: 0,2 mm Polyäthylenfolie
Zwangsbe- oder Entlüftungen in den Außenwänden mit außen liegendem Kiemenblech und innen liegendem Kunststoffgitter mit Insektenschutz. Zwischen Außenblech und Gitter PVC Rohr NW 100 mm zum Schutz der Isolierung.
Isolierung
Boden 80 mm Mineralwolle, k = 0,632 W/m²K
Außenwände 60 mm Mineralwolle, k = 0,667 W/m²K
Zwischenwände 60 mm Mineralwolle, k = 0,667 W/m²K
Dach 80 mm Mineralwolle, k = 0,522 W/m²K
Dachaufbau
Profilblech: 0,75 mm verzinktes Profilblech, Sickentiefe 40 mm, belüftet, Lagerung aufgelegt und befestigt auf speziell gekanteten Dachprofilen, die bündig mit der Rahmenkonstruktion verschraubt werden
Isolierung. Mineralwolle, Brandschutzverhalten gem. DIN EN 13501-1, Brandschutzklasse A1
Dampfsperre: 0,2 mm Polyäthylenfolie
Dachentwässerung erfolgt über 4 in den Eckstielen untergebrachte PVC- Fallrohre NW 60 mm, die auf einen in den oberen Containerkästen eingebrachten Rohrstutzen aufgebracht sind.
Dachbelastung: 1 250 N/m²
Innenverkleidung
Decke: 10 mm beidseitig melaminharzbeschichtete Spanplatte, formaldehydfrei, weiß, auf Profilstahlträgern genietet mit Blindnieten, Nietköpfe mit farblich passenden Kunststoffkappen abgedeckt, alle Stoß- und Eckverbindungen mit speziellen Kunststoffleisten versehen
Wände: 10 mm beidseitig melaminharzbeschichtete Spanplatte, weiß, formaldehydfrei, Schutzklasse E1, Nietköpfe mit farblich passenden Kunststoffkappen abgedeckt, alle Stoß- und Eckverbindungen mit speziellen Kunststoffleisten versehen
Innentrennwände mit Isolierung
AUSSTATTUNG
Außentür:
2 Stck. ZK Stahltür 875/2000 mm, verzinkt, isoliert, glatte Ausführung, Spezial-Eckzarge mit 3-seitiger Dichtung, Türblattstärke 40 mm, standardmäßig im Containerfarbton lackiert, Beschlag, mit PZ-Schloss und 3 Schlüsseln, incl. Türanschlag
Innentür:
3 Stck. Holzinnentür 875/2000 mm, Stahlumfassungszarge, weiß, Türblatt mit Wabeneinlage, Oberfläche mit PVC Folie beschichtet oder lackiert, Kst.- Drückergarnitur und Beschlag, BB-Schloss und 1 Schlüssel
2 Stck. Holzinnentür 625/2000 mm, Stahlumfassungszarge, weiß, Türblatt mit Wabeneinlage, Oberfläche mit PVC Folie beschichtet oder lackiert, Kst.- Drückergarnitur und Beschlag, BB-Schloss und 1 Schlüssel
Fenster:
9 Stck. Kunststoff-Fenster weiß, 1800/1200 mm, 2-flügelig, isolierverglast, mit Dreh/Kippbeschlag, incl. Kunststoffrollladen, Gurtroller auf Putz, k-Wert 1,1W/m²K
Fensterbrüstungshöhe: 850 mm OKFF - Die Fenster erhalten außen eine Fensterbank
Miniküche bestehend aus:
1 Stck. Unterschrank mit integriertem Kühlschrank 127 Liter, Nirosta - Spüle mit Ablage und eingebautem elektrischen Doppelkochfeld, Maß: 1000 x 600 x 900 mm
1 Stck. Untertischgerät 5 l - 2 kW, stufenlos von ca. 35 - 85 °C einstellbare Temperatur
1 Stck. Steckdose für Boiler, extra abgesichert, feuchtraumgeschützt IP44
1 Stck. Doppelsteckdose 2 x 230 V, ca. 1.100 mm OKFF
1 Stck. Doppelsteckdose für Küche, extra abgesichert
Sanitärausstattung:
1 Stck. Porzellan-Tiefspül-Toilette, stehend, Farbe sanitärweiß, Kst .- WC-Brille mit Deckel, Spülkasten, Papierhalter und Mantelhaken
1 Stck. WC-Kabine mit Holzinnentür ca. 665/1800 mm, weiß, mit Wabeneinlage, Oberfläche mit PVC Folie beschichtet, Schloss mit Frei/Besetzt-Beschlag, mit Boden- und Deckenfreiheit, Trennwand aus kunststoffbeschichteten Spanplatten mit Stahlrahmen, weiß lackiert
1 Stck. Porzellanurinal mit Geruchverschluss und Spüler
1 Stck. Porzellan-Handwaschbecken, Farbe sanitärweiß, mit Zweihandmischbatterie für Kalt-/Warmwasser, Geruchverschluss, incl. Kristallglas-Spiegel, Kst. Ablage, Handtuchhaken
1 Stck. Abwasserentlüftung durch Außenwand
1 Stck. Zu- 3/4'' und Abwasser Ø 100 mm, durch Boden
Alle Rohrleitungen werden sichtbar auf Wand verlegt
Abflussleitungen: HT-Rohr grau, ohne Anstrich
Zuflussleitungen: Kupfer-Rohr, ohne Anstrich, ohne Isolierung
1 Stck. Revisionsöffnung im Containerboden, incl. herausnehmbarer Abdeckung
Elektro-Installation nach VDE 0100, 400/230 V,
incl. Unterverteilung mit Sicherungsautomaten, FI - Schutzschalter 0,03 A.
Kabeleinführung bauseits durch Boden, vertikaler Kabelkanal bis zum Verteilerkasten
Kabelführung von Container zu Container im Kabelkanal unter Decke.
3 Stck. Langfeldleuchte 1 x 36W mit Wanne
16 Stck. Leuchte 2 x 58 W mit Parabolraster, hochglänzend, BAP
2 Stck. Rundleuchte 60 W
6 Stck. Lichtschalter, weiß
1 Stck. Serienschalter, weiß
6 Stck. Steckdose 230 V, weiß
1 Stck. Steckdose 230 V, weiß, feuchtraumgeschützt IP44, ca. 1400 mm OKFF
2 Stck. Steckdose für Frostwächter, weiß
9 Stck. Steckdose für el. Heizung, extra abgesichert, weiß
1 Stck. Steckdose für Boiler, extra abgesichert, feuchtraumgeschützt IP44
1 Stck. Kleinheizung 0,5 kW, mit Stufenschalter als Frostwächter
1 Stck. El. Heizkonvektor 1 kW, mit stufenlosem Temperaturwähler und Thermostat
8 Stck. El. Heizkonvektor 2 kW, mit stufenlosem Temperaturwähler und Thermostat
1 Stck. Untertischgerät 5 l- 2 kW, stufenlos von ca. 35 - 85 °C einstellbare Temperatur, incl. Festanschluss
1 Stck. Wandventilator, Fabr. Maico, AWB 100, 90 m³/h, 13W, Wandöffnung ca. DN 100, gesteuert über Schalter
1 Stck. Elektroplan
Sonstiges:
1 Stck. Stahlaußentreppe, einarmig, mit Podest 1400/1130 mm aus Gitterost, eine Außenseite mit Vierkantrohr-Geländer und Vierkantrohrhandlauf, alle Stahlteile verzinkt. Treppenbreite 1 130 mm
2 Stck. Stütze im EG