
Art.Nr.: 2140538
TECHNISCHE BAUBESCHREIBUNG
|
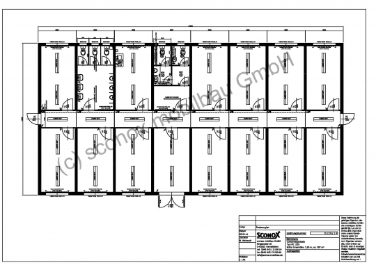
1 Stck. Mobilraum-Kombination, Maße ca.: |
24.025 x 12.000 x 3.040 mm I.H. 2.500 mm
|
bestehend aus:
|
8 Stck. Mobilraum-Elementen, Maße je CTR: |
12.000 x 2.990 x 3.040 mm I.H. 2.500 mm
|
gemäß Beschreibung und Zeichnung - ohne Gabelstaplertaschen
Rahmen
Unter Fachaufsicht verschweißte Stahlkonstruktion aus Hohl- und Walzprofilen, grundiert, Lackierung mit Farbe auf Polyurethan Basis,in einem Standard- RAL Ton Ihrer Wahl lackiert (außer den RAL Tönen 9006/9007, diese gegen Aufpreis)
8 Stck. Containerecken. Ausführung laut prüffähiger Statik zweifach stapelbar
Bodenaufbau
Blindboden: 0,5 mm verzinktes Profilblech zu Bodenquerträgern aufgenietet
Isolierung: Mineralwolle, Brandschutzverhalten gem. DIN EN 13501-1, Brandschutzklasse A1
Dampfsperre: 0,2 mm Polyäthylenfolie
Bodenplatte: 22 mm Spanplatte V 100, auf Profilstahlträgern verschraubt, Stöße gespachtelt und geschliffen, von unten mit U-Profil unterlegt
Sanitärbereich & Küche: 22 mm zementgebundene Spanplatte
Bodenbelag: 2 mm PVC Tarkett Standard, in Bahnen verlegt und vollflächig verklebt, Nähte verschweißt, Farbe grau marmoriert, Wandabschluss mit 60 mm Hartkernsockelleisten, weiß
Sanitärbereich & Küche: Bodenfliesen 200 x 200 mm , Rako TAURUS GRANIT, rutschhemmend R 10, Farbe 76 nordic (grau), Fugenfarbe grau
Verkehrslast des Bodens: 2.500 N/m2
... Erhöhung auf Wunsch möglich… Ausführung und Preise auf Anfrage
Wandaufbau
Profilblech: 0,55 mm verzinktes Profilblech im RAL Ton Ihrer Wahl lackiert, RAL nach Wunsch
10 mm Sickentiefe, auf verz. U-Profil-Stahl-Wandgerippe, das zur Stahlrahmenkonstruktion verschraubt ist, genietet, Stärke entsprechend der Isolierung
Isolierung: Mineralwolle, Brandschutzverhalten gem. DIN EN 13501-1, Brandschutzklasse A1
Dampfsperre: 0,2 mm Polyäthylenfolie
Zwangsbe- oder Entlüftungen in den Außenwänden mit außen liegendem Kiemenblech und innen liegendem Kunststoffgitter mit Insektenschutz. Zwischen Außenblech und Gitter PVC Rohr NW 100 mm zum Schutz der Isolierung.
Erhöhte Isolierung, kältebrückenoptimiert
(Isolierung der Außenhülle ähnlich EnEV2014, nachfolgend rechnerische Werte, bei näherer Konkretisierung und auf Anfrage ist eine angepasster Energieausweis möglich); Rollladenkästen zusätzliche wärmegedämmt
Boden 200 mm Mineralwolle, U=0,165 W/m²K
Außenwände 200 mm Mineralwolle, U=0,168 W/m²K
Zwischenwände 60 mm Mineralwolle, U=0,667 W/m²K
Dach 220 mm Mineralwolle, U=0,153 W/m²K
Isolierte Innentrennwände
Dachaufbau
Profilblech: 0,75 mm verzinktes Profilblech, Sickentiefe 40 mm, belüftet, Lagerung aufgelegt und befestigt auf speziell gekanteten Dachprofilen, die bündig mit der Rahmenkonstruktion verschraubt werden
Isolierung. Mineralwolle, Brandschutzverhalten gem. DIN EN 13501-1, Brandschutzklasse A1
Dampfsperre: 0,2 mm Polyäthylenfolie
Dachentwässerung erfolgt über vier in den Eckstielen untergebrachte PVC- Fallrohre NW 60 mm, die auf einen in den oberen Containerkästen eingebrachten Rohrstutzen aufgebracht sind.
Dachbelastung: 1 250 N/m²
Innenverkleidung
Decke: 10 mm beidseitig melaminharzbeschichtete Spanplatte, formaldehydfrei, weiß, auf Profilstahlträgern genietet mit Blindnieten, Nietköpfe mit farblich passenden Kunststoffkappen abgedeckt, alle Stoß- und Eckverbindungen mit speziellen Kunststoffleisten versehen
Wände: 10 mm beidseitig melaminharzbeschichtete Spanplatte, weiß, formaldehydfrei, Schutzklasse E1, Nietköpfe mit farblich passenden Kunststoffkappen abgedeckt, alle Stoß- und Eckverbindungen mit speziellen Kunststoffleisten versehen
AUSSTATTUNG
Außentür:
2 Stck. MZ-Mehrzwecktür 875/2000 mm, aus feuerverzinktem Stahlblech, Isolierfüllung, glatte Ausführung, Spezial-Eckzarge mit 4-seitiger Dichtung, Türblattstärke 40 mm, standardmäßig lackiert im RAL-Ton wie Wandflächen, Sicherheitsbeschlag, PZ-Schloss mit 3 Schlüsseln, incl. Türanschlag aus Gummi
1 Stck. ALU-Außentür 2000/2100 mm, 2-flügelig, weiß, nach außen gehend, mit einem Gehflügel mit PZ-Schloss und 3 Schlüsseln, beidseitig Drücker und einem Standflügel mit Treibriegel, wärmegedämmtes Leichtmetall-Profilsystem, VSG-Verglasung geteilt mit Kämpferprofil
Innentür:
16 Stck. Holzinnentür 875/2000 mm, Stahlumfassungszarge, weiß, Türblatt mit Wabeneinlage, Oberfläche mit PVC Folie beschichtet oder lackiert, Kst.- Drückergarnitur und Beschlag, BB-Schloss und 1 Schlüssel
2 Stck. Holzinnentür 625/2000 mm, Stahlumfassungszarge, weiß, Türblatt mit Wabeneinlage,Oberfläche mit PVC Folie beschichtet oder lackiert, Kst.- Drückergarnitur und Beschlag, BB-Schloss und 1 Schlüssel
2 Stck. Holzinnentür (zur WC-Zelle) 625/2000 mm, weiß, mit Wabenmittellage, Oberfläche mit PVC Folie beschichtet oder lackiert, Kst.- Drückergarnitur und Beschlag, Schloss mit Frei/Besetzt-Beschlag
Fenster:
13 Stck. Kunststoff-Fenster weiß, 1800/1200 mm, 2-flügelig, isolierverglast, mit Dreh/Kippbeschlag, incl. Kunststoffrollladen, Gurtroller auf Putz, k-Wert 1,1W/m²K
5 Stck. Kunststoff-Fenster 600/400 mm, 1-flügelig, weiß, isolierverglast, mit Kippbeschlag, äußere Scheibe mit Ornamentverglasung, k-Wert 1,1W/m²K, ohne Rollladen
Fensterbrüstungshöhe: 850 mm OKFF, Sanitärfenster 1.800 mm OKFF
Die Fenster erhalten außen eine Fensterbank
Miniküche bestehend aus:
1 Stck. Unterschrank mit integriertem Kühlschrank 127 Liter, Nirosta - Spüle mit Ablage und eingebautem elektrischen Doppelkochfeld, Maß: 1000 x 600 x 900 mm
2 Stck. Doppelsteckdose 2 x 230 V, ca. 1.100 mm OKFF
2 Stck. Doppelsteckdose für Küche, extra abgesichert
1 Stck. Untertischgerät 5 l - 2 kW, stufenlos von ca. 35 - 85 °C einstellbare Temperatur, incl. Festanschluss
1 Stk. Revisionsöffnung im Containerboden, incl. herausnehmbarer Abdeckung
1 Stk. Zu- 3/4'' und Abwasser Ø 50 mm, durch Boden
Alle Rohrleitungen werden sichtbar auf Wand verlegt
Abflussleitungen: HT-Rohr grau, ohne Anstrich
Zuflussleitungen: Kupfer-Rohr, ohne Anstrich, ohne Isolierung
Sanitärausstattung:
5 Stck. Porzellan-Tiefspül-Toilette, stehend, Farbe sanitärweiß, Kst .- WC-Brille mit Deckel, Spülkasten, Papierhalter und Mantelhaken
3 Stck. WC-Kabine mit Holzinnentür ca. 665/1800 mm, weiß, mit Wabeneinlage, Oberfläche mit PVC Folie beschichtet, Schloss mit Frei/Besetzt-Beschlag, mit Boden- und Deckenfreiheit, Trennwand aus kunststoffbeschichteten Spanplatten mit Stahlrahmen, weiß lackiert
4 Stck. Porzellanurinal mit Geruchsverschluss und Spüler
5 Stck. Schamwand
5 Stck. Porzellan-Handwaschbecken, Farbe sanitärweiß, mit Zweihandmischbatterie für Kalt-/Warmwasser, Geruchverschluss, incl. Kristallglas-Spiegel, Kst. Ablage, Handtuchhaken
2 Stck. Abwasserentlüftung durch Außenwand
2 Stck. Zu- 3/4'' und Abwasser Ø 100 mm, durch Boden
Alle Rohrleitungen werden sichtbar auf Wand verlegt
Abflussleitungen: HT-Rohr grau, ohne Anstrich
Zuflussleitungen: Kupfer-Rohr, ohne Anstrich, ohne Isolierung
2 Stck. Revisionsöffnung 200 x 300 mm im Containerboden, incl. herausnehmbarer Abdeckung
Elektro-Installation nach VDE 0100, 400/230 V, incl. Unterverteilung mit Sicherungsautomaten, FI - Schutzschalter 0,03 A.
Kabeleinführung bauseits durch Boden, vertikaler Kabelkanal bis zum Verteilerkasten
Kabelführung von Container zu Container im Kabelkanal unter Decke.
3 Stck. Langfeldleuchte 1 x 36 W mit Wanne
36 Stck. Leuchte 2 x 58 W mit Parabolraster, hochglänzend, BAP
4 Stck. Rundleuchte 60 W
18 Stck. Lichtschalter, weiß
1 Stck. Serienschalter, weiß
5 Stck. Wechselschalter, weiß
5 Stck. Steckdose 230 V, weiß, feuchtraumgeschützt IP 44, ca. 1400 mm OKFF
26 Stck. Steckdose 230 V, weiß
1 Stck. Wandventilator, Fabr. Maico, AWB 100, 90 m³/h, 13W, Wandöffnung ca. DN 100, gesteuert über Schalter
5 Stck. Untertischgerät 5 l - 2 kW, stufenlos von ca. 35 - 85 °C einstellbare Temperatur, incl. Festanschluss
1 Stck. Elektroplan
Sonstiges:
21 Stck. Wandverstärkung für bauseitige Warmwasserheizkörper