
Art.Nr.: 2130776
TECHNISCHE BAUBESCHREIBUNG
|
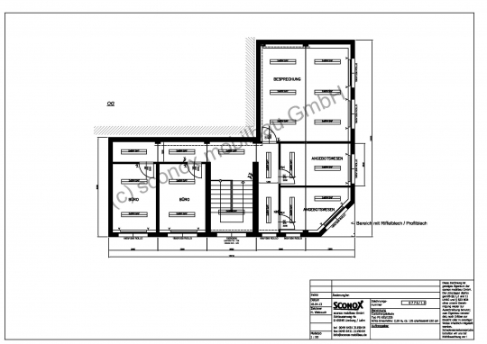
1 Stck. Mobilraum-Kombination, Maße: |
15.010 x 12.000 x 5.860 mm I.H. 2.500 mm
|
bestehend aus:
|
6 Stck. Mobilraum-Elementen, Maße je CTR: |
6.058 x 2.990 x 2.900 (EG)/2.960 (OG) mm I.H. 2.500 mm
|
|
4 Stck. Mobilraum-Elementen, Maße je CTR: |
12.000 x 2.990 x 2.900 (EG)/2.960 (OG) mm I.H. 2.500 mm
|
gemäß Beschreibung und Zeichnung - ohne Gabelstaplertaschen
Rahmen
Unter Fachaufsicht verschweißte Stahlkonstruktion aus Hohl- und Walzprofilen, grundiert, Lackierung mit Farbe auf Polyurethan Basis, in einem Standard- RAL Ton Ihrer Wahl lackiert (außer die beiden RAL Töne 9006/9007, diese gegen Aufpreis)
8 Stck. Containerecken. Ausführung laut prüffähiger Statik zweifach stapelbar
Bodenaufbau
Blindboden: 0,5 mm verzinktes Profilblech zu Bodenquerträgern aufgenietet
Isolierung: Mineralwolle, Brandschutzverhalten gem. DIN EN 13501-1, Brandschutzklasse A1
Dampfsperre: 0,2 mm Polyäthylenfolie
Bodenplatte: 22 mm Spanplatte V 100, auf Profilstahlträgern verschraubt, Stöße gespachtelt und geschliffen, von unten mit U-Profil unterlegt
Überdachter Eingangsbereich (siehe Zeichnung): 21 mm Siebdruckplatte, braun
Bodenbelag: 2 mm PVC Tarkett Standard, in Bahnen verlegt und vollflächig verklebt, Nähte verschweißt, Farbe grau marmoriert, Wandabschluss mit 60 mm Hartkernsockelleisten, weiß
Überdachter Eingangsbereich (siehe Zeichnung): 3 mm Alu-Riffelblech, in Platten verlegt und verschraubt, Fugen mit Silikon abgedichtet
Verkehrslast des Bodens: 2.500 N/m2
... Erhöhung auf Wunsch möglich… Ausführung und Preise auf Anfrage
Wandaufbau
Profilblech: 0,55 mm verzinktes Profilblech im RAL Ton Ihrer Wahl lackiert, RAL nach Wunsch
10 mm Sickentiefe, auf verz. U-Profil-Stahl-Wandgerippe, das zur Stahlrahmenkonstruktion verschraubt ist, genietet, Stärke entsprechend der Isolierung
Isolierung: Mineralwolle, Brandschutzverhalten gem. DIN EN 13501-1, Brandschutzklasse A1
Dampfsperre: 0,2 mm Polyäthylenfolie
Zwangsbe- oder Entlüftungen in den Außenwänden mit außen liegendem Kiemenblech und innen liegendem Kunststoffgitter mit Insektenschutz. Zwischen Außenblech und Gitter PVC Rohr NW 100 mm zum Schutz der Isolierung.
Erhöhte Isolierung, kältebrückenoptimiert
(Isolierung der Außenhülle ähnlich EnEV2014, nachfolgend rechnerische Werte, bei näherer Konkretisierung und auf Anfrage ist eine angepasster Energieausweis möglich)
EG
Boden 200 mm Mineralwolle, U=0,165 W/m²K
Außenwände 200 mm Mineralwolle, U=0,168 W/m²K
Zwischenwände 60 mm Mineralwolle, U=0,574 W/m²K
Dach 80 mm Mineralwolle, k = 0,522 W/m²K
OG
Boden 80 mm Mineralwolle, k=0,632 W/m²K
Zwischenwände 60 mm Mineralwolle, U=0,574 W/m²K
Außenwände 200 mm Mineralwolle, U=0,168 W/m²K
Dach 220 mm Mineralwolle, U=0,153 W/m²
Dachaufbau
Profilblech: 0,75 mm verzinktes Profilblech, Sickentiefe 40 mm, belüftet, Lagerung aufgelegt und befestigt auf speziell gekanteten Dachprofilen, die bündig mit der Rahmenkonstruktion verschraubt werden
Isolierung. Mineralwolle, Brandschutzverhalten gem. DIN EN 13501-1, Brandschutzklasse A1
Dampfsperre: 0,2 mm Polyäthylenfolie
Dachentwässerung erfolgt über 4 in den Eckstielen untergebrachte PVC- Fallrohre NW 60 mm, die auf einen in den oberen Containerkästen eingebrachten Rohrstutzen aufgebracht sind.
Dachbelastung: 1 250 N/m²
Innenverkleidung
Decke: 10 mm beidseitig melaminharzbeschichtete Spanplatte, formaldehydfrei, weiß, auf Profilstahlträgern genietet mit Blindnieten, Nietköpfe mit farblich passenden Kunststoffkappen abgedeckt, alle Stoß- und Eckverbindungen mit speziellen Kunststoffleisten versehen
Flure und Treppenhaus F 90:
1 x 15 + 2 x 12,5 mm Fermacell-Platten verspachtelt, verschliffen
und 2 x deckend mit Dispersionsfarbe gestrichen
Überdachter Eingangsbereich (siehe Zeichnung):
0,75 mm verzinktes Profilblech
Wände: 10 mm beidseitig melaminharzbeschichtete Spanplatte, weiß, formaldehydfrei, Schutzklasse E1, Nietköpfe mit farblich passenden Kunststoffkappen abgedeckt, alle Stoß- und Eckverbindungen mit speziellen Kunststoffleisten versehen
Flure und Treppenhaus F 90:
1 x 15 + 2 x 12,5 mm Fermacell-Platten verspachtelt, verschliffen mit Glasfasertapete tapeziert und 2 x deckend mit Dispersionsfarbe gestrichen
Überdachter Eingangsbereich (siehe Zeichnung):
0,75 mm verzinktes Profilblech
Isolierte Innentrennwände
Außentür:
1 Stck. ALU-Außentür 2000/2100 mm, 2-flügelig, weiß, nach außen gehend, mit einem Gehflügel mit Panikstange, mit PZ und 3 Schlüsseln, beidseitig Drücker und einem Standflügel mit Treibriegel, wärmegedämmtes Leichtmetall-Profilsystem, Verglasung - VSG geteilt mit Kämpferprofil, incl. Obentürschließer
Innentür:
3 Stck. Holzinnentür 875/2000 mm, Stahlumfassungszarge, weiß, Türblatt mit Wabeneinlage, Oberfläche mit PVC Folie beschichtet oder lackiert, Kst.- Drückergarnitur und Beschlag, PZ-Schloss und 3 Schlüssel
1 Stck. Holzinnentür 625/2000 mm, Stahlumfassungszarge, weiß, Türblatt mit Wabeneinlage, Oberfläche mit PVC Folie beschichtet oder lackiert, Kst.- Drückergarnitur und Beschlag, BB-Schloss und 1 Schlüssel
1 Stck. Holzinnentür (zur WC-Zelle) 625/2000 mm, weiß, mit Wabenmittellage, Oberfläche mit PVC Folie beschichtet oder lackiert, Kst.- Drückergarnitur und Beschlag, Profil-Knaufzylinder
Fenster:
4 Stck. Kunststoff-Fenster weiß, 1800/1200 mm, 2-flügelig, isolierverglast, mit Dreh/Kippbeschlag, incl. Kunststoffrollladen, Gurtroller auf Putz, k-Wert 1,1W/m²K
2 Stck. Kunststoff-Fenster weiß, 900/1200 mm, 1-flügelig, isolierverglast, mit Dreh/Kippbeschlag, incl. Kunststoffrollladen, Gurtroller auf Putz, k-Wert 1,1W/m²K
3 Stck. Kunststoff-Fenster 600/400 mm, 1-flügelig, weiß, isolierverglast, mit Kippbeschlag, äußere Scheibe mit Ornamentverglasung, ohne Rollladen, k-Wert 1,1W/m²K
Fensterbrüstungshöhe: 850 mm OKFF, Sanitärfenster 1800 mm OKFF
Die Fenster erhalten außen eine Fensterbank
Miniküche bestehend aus:
1 Stck. Unterschrank mit integriertem Kühlschrank 127 Liter, Nirosta - Spüle mit Ablage, Maß: 1000 x 600 x 900 mm
1 Stck. Untertischgerät 5 l - 2 kW, stufenlos von ca. 35 - 85 °C einstellbare Temperatur
1 Stck. Steckdose für Boiler, extra abgesichert, feuchtraumgeschützt IP44
1 Stck. Doppelsteckdose 2 x 230 V, ca. 1.100 mm OKFF
1 Stck. Doppelsteckdose für Küche, extra abgesichert
Sanitärausstattung:
3 Stck. Porzellan-Tiefspül-Toilette, stehend, Farbe sanitärweiß, Kst .- WC-Brille mit Deckel, Spülkasten, Papierhalter und Mantelhaken
2 Stck. WC-Kabine mit Holzinnentür ca. 665/1800 mm, weiß, mit Wabeneinlage, Oberfläche mit PVC Folie beschichtet, Schloss mit Frei/Besetzt-Beschlag, mit Boden- und Deckenfreiheit, Trennwand aus kunststoffbeschichteten Spanplatten mit Stahlrahmen, weiß lackiert
2 Stck. Porzellan-Handwaschbecken, Farbe sanitärweiß, mit Zweihandmischbatterie für Kalt-/Warmwasser, Geruchverschluss, incl. Kristallglas-Spiegel, Kst. Ablage, Handtuchhaken
2 Stck. Porzellanurinal mit Geruchverschluss und Spüler
2 Stck. Schamwand
2 Stck. Abwasserentlüftung durch Außenwand
3 Stck. Zu- 3/4'' und Abwasser Ø 50/100 mm, durch Boden
Alle Rohrleitungen werden verdeckt hinter Vorwandinstallation verlegt
Abflussleitungen: HT-Rohr grau, ohne Anstrich
Zuflussleitungen: Kupfer-Rohr, ohne Anstrich, ohne Isolierung
11 lfm Installationswand, als Verkleidung der Rohrleitungen innerhalb der Sanitärinstallation. Wand als Ablagemöglichkeit geeignet
3 Stck. Revisionsöffnung im Containerboden, incl. herausnehmbarer Abdeckung
Elektro-Installation nach VDE 0100, 400/230 V, incl. Unterverteilung mit Sicherungsautomaten, FI - Schutzschalter 0,03 A.
Medien- und Kabeleinführung bauseits durch Boden, vertikaler Kabelkanal bis zum Verteilerkasten. Kabelführung von Container zu Container im Kabelkanal unter Decke.
17 Stck. Leuchte 2 x 58 W mit Parabolraster, hochglänzend, BAP
1 Stck. Rundleuchte 60 W
4 Stck. Lichtschalter-Steckdosekombination, weiß
5 Stck. Wechselschalter-Steckdosekombination, weiß
6 Stck. Steckdose 230 V, weiß
2 Stck. Steckdose 230 V, weiß, feuchtraumgeschützt IP44, ca. 1400 mm OKFF
2 Stck. Steckdose für Boiler, extra abgesichert, feuchtraumgeschützt IP44
17,5 lfm Fensterbrüstungskanal 170/65 mm Rehau - BK, weiß, für Daten- und Stromleitungen, mit separaten Deckenabschnitten für Einbaudosen, mit Trennleiste
2 Stck. Untertischgerät 5 l - 2 kW, stufenlos von ca. 35 - 85 °C einstellbare Temperatur, incl. Festanschluss
1 Stck. Elektroplan