
Art.Nr.: 2130392
TECHNISCHE BAUBESCHREIBUNG
|
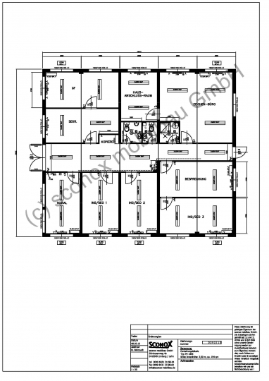
1 Stck. Mobilraum-Kombination, Maße: |
13.000 x 15.010 x 3.040 mm I.H. 2.500 mm
|
bestehend aus:
|
5 Stck. Mobilraum-Elementen, Maße je CTR: |
13.000 x 2.990 x 3.040 mm I.H. 2.500 mm
|
gemäß Beschreibung und Zeichnung - ohne Gabelstaplertaschen
Rahmen
Unter Fachaufsicht verschweißte Stahlkonstruktion aus Hohl- und Walzprofilen, grundiert, Lackierung mit Farbe auf Polyurethan Basis, in einem Standard- RAL Ton Ihrer Wahl lackiert (außer die beiden RAL Töne 9006/9007, diese gegen Aufpreis)
8 Stck. Containerecken. Ausführung laut prüffähiger Statik zweifach stapelbar
Bodenaufbau
Blindboden: 0,5 mm verzinktes Profilblech zu Bodenquerträgern aufgenietet
Isolierung: Mineralwolle, Brandschutzverhalten gem. DIN EN 13501-1, Brandschutzklasse A1
Dampfsperre: 0,2 mm Polyäthylenfolie
Bodenplatte: 22 mm Spanplatte V 100, auf Profilstahlträgern verschraubt, Stöße gespachtelt und geschliffen, von unten mit U-Profil unterlegt
Sanitärbereiche: 22 mm zementgebundene Spanplatte
Bodenbelag: 2 mm PVC Tarkett Standard, in Bahnen verlegt und vollflächig verklebt, Nähte verschweißt, Farbe grau marmoriert, Wandabschluss mit ca. 60 mm Hartkernsockelleisten, weiß
Sanitärbereiche: 2 mm PVC Grabo JSK, rutschhemmend R 10, in Bahnen verlegt und vollflächig verklebt, Nähte verschweißt, Farbe grau marmoriert, als Wanne verlegt
Verkehrslast des Bodens: 2.500 N/m²
... Erhöhung auf Wunsch möglich… Ausführung und Preise auf Anfrage
Wandaufbau
Profilblech: 0,55 mm verzinktes Profilblech im RAL Ton Ihrer Wahl lackiert, RAL nach Wunsch
10 mm Sickentiefe, auf verz. U-Profil-Stahl-Wandgerippe, das zur Stahlrahmenkonstruktion verschraubt ist, genietet, Stärke entsprechend der Isolierung
Isolierung: Mineralwolle, Brandschutzverhalten gem. DIN EN 13501-1, Brandschutzklasse A1
Dampfsperre: 0,2 mm Polyäthylenfolie
Zwangsbe- oder Entlüftungen in den Außenwänden mit außen liegendem Kiemenblech und innen liegendem Kunststoffgitter mit Insektenschutz. Zwischen Außenblech und Gitter PVC Rohr NW 100 mm zum Schutz der Isolierung.
Erhöhte Isolierung
(Isolierung der Außenhülle ähnlich EnEV2014, kältebrückenoptimiert, nachfolgend rechnerische Werte, bei näherer Konkretisierung und auf Anfrage ist eine angepasster Energieausweis möglich)
Boden 200 mm Mineralwolle, k=0,165 W/m²K
Außenwände 200 mm Mineralwolle, k=0,168 W/m²K
Zwischenwände 60 mm Mineralwolle, k=0,574 W/m²K
Dach 220 mm Mineralwolle, k=0,153 W/m²K
Dachaufbau
Profilblech: 0,75 mm verzinktes Profilblech, Sickentiefe 40 mm, belüftet, Lagerung aufgelegt und befestigt auf speziell gekanteten Dachprofilen, die bündig mit der Rahmenkonstruktion verschraubt werden
Isolierung. Mineralwolle, Brandschutzverhalten gem. DIN EN 13501-1, Brandschutzklasse A1
Dampfsperre: 0,2 mm Polyäthylenfolie
Dachentwässerung erfolgt über 4 in den Eckstielen untergebrachte PVC- Fallrohre NW 60 mm, die auf einen in den oberen Containerkästen eingebrachten Rohrstutzen aufgebracht sind.
Dachbelastung: 1 250 N/m²
Innenverkleidung
Decke: 10 mm beidseitig melaminharzbeschichtete Spanplatte, formaldehydfrei, weiß, auf Profilstahlträgern genietet mit Blindnieten, Nietköpfe mit farblich passenden Kunststoffkappen abgedeckt, alle Stoß- und Eckverbindungen mit speziellen Kunststoffleisten versehen
Wände: 10 mm beidseitig melaminharzbeschichtete Spanplatte, weiß, formaldehydfrei, Schutzklasse E1, Nietköpfe mit farblich passenden Kunststoffkappen abgedeckt, alle Stoß- und Eckverbindungen mit speziellen Kunststoffleisten versehen
Innentrennwände mit Isolierung
AUSSTATTUNG
Außentür:
1 Stck. MZ-Mehrzwecktür 875/2000 mm, aus feuerverzinktem Stahlblech, Isolierfüllung, glatte Ausführung, Spezial-Eckzarge mit 4-seitiger Dichtung, Türblattstärke 40 mm, standardmäßig lackiert im RAL-Ton wie Wandflächen, Sicherheitsbeschlag, PZ-Schloss und 3 Schlüssel, incl. Türanschlag aus Gummi
1 Stck. ALU-Außentür 2000/2100 mm, 2-flügelig, weiß, nach außen gehend, mit einem Gehflügel mit PZ-Schloss und 3 Schlüsseln, beidseitig Drücker und einem Standflügel mit Treibriegel, wärmegedämmtes Leichtmetall-Profilsystem, Verglasung - VSG geteilt mit Kämpferprofil
Innentür:
9 Stck. Holzinnentür 875/2000 mm, Stahlumfassungszarge, weiß, Türblatt mit Wabeneinlage, Oberfläche mit PVC Folie beschichtet oder lackiert, Kst.- Drückergarnitur und Beschlag, BB-Schloss und 1 Schlüssel
3 Stck. Holzinnentür zum Sanitärbereich 625/2000 mm, Stahlumfassungszarge, weiß, Türblatt mit Wabeneinlage, Oberfläche mit PVC Folie beschichtet oder lackiert, Kst.- Drückergarnitur und Beschlag, Schloss mit Frei/Besetzt-Beschlag
Fenster:
16 Stck. Kunststoff-Fenster weiß, 1800/1200 mm, 2-flügelig, isolierverglast, mit Dreh/Kippbeschlag, incl. Kunststoffrollladen, Gurtroller auf Putz, k-Wert 1,1W/m²K
Fensterbrüstungshöhe: 850 mm OKFF - Die Fenster erhalten außen eine Fensterbank
Sanitärausstattung:
2 Stck. Porzellan-Tiefspül-Toilette, stehend, Farbe sanitärweiß, Kst .- WC-Brille mit Deckel, Spülkasten, Papierhalter und Mantelhaken
1 Stck. Porzellanurinal mit Geruchverschluss und Spüler
2 Stck. Porzellan-Handwaschbecken, Farbe sanitärweiß, mit Zweihandmischbatterie für Kalt-/Warmwasser, Geruchverschluss, incl. Kristallglas-Spiegel, Kst. Ablage, Handtuchhaken
1 Stck. Kunststoff - Duschkabine 800/800 mm, mit Stand- und Schlauchbrause, Zweihandmischbatterie und Duschvorhang
1 Stck. Gully (Bodenablauf) mit Geruchsverschluss (ohne Gefälle), nicht an die Abfluss-Leitung angeschlossen
2 Stck. Abwasserentlüftung durch Außenwand
2 Stck. Zu- 3/4'' und Abwasser Ø 100 mm, durch Boden
Alle Rohrleitungen werden sichtbar auf Wand verlegt
Abflussleitungen: HT-Rohr grau, ohne Anstrich
Zuflussleitungen: Kupfer-Rohr, ohne Anstrich, ohne Isolierung
3 Stck. Revisionsöffnung im Containerboden, incl. herausnehmbarer Abdeckung
1 Stck. Zu- 3/4'' und Abwasseranschluss Ø 50 mm für bauseitige Küche
Alle Rohrleitungen werden sichtbar auf Wand verlegt
Abflussleitungen: HT-Rohr grau, ohne Anstrich
Zuflussleitungen: Kupfer-Rohr, ohne Anstrich, ohne Isolierung
Elektro-Installation nach VDE 0100, 400/230 V,
incl. Unterverteilung mit Sicherungsautomaten, FI - Schutzschalter 0,03 A.
Kabeleinführung bauseits durch Boden, vertikaler Kabelkanal bis zum Verteilerkasten
Kabelführung von Container zu Container im Kabelkanal unter Decke.
3 Stck. Rundleuchte 60 W
24 Stck. Leuchte 2 x 58 W mit Parabolraster, hochglänzend, BAP
9 Stck. Lichtschalter-Steckdosekombination, weiß
2 Stck. Wechselschalter-Steckdosekombination, weiß
2 Stck. Serienschalter, weiß
1 Stck. Serienschalter, weiß, feuchtraumgeschützt
21 Stck. Steckdose 230 V, weiß
2 Stck. Steckdose 230 V, weiß, feuchtraumgeschützt IP44, ca. 1400 mm OKFF
1 Stck. Doppelsteckdose 2 x 230 V, ca. 1.100 mm OKFF
1 Stck. Doppelsteckdose für Küche, extra abgesichert
10 Stck. Steckdose für el. Heizung, extra abgesichert, weiß
1 Stck. Steckdose für el. Heizung, extra abgesichert, feuchtraumgeschützt IP44
3 Stck. Steckdose für Boiler, extra abgesichert, feuchtraumgeschützt IP44
10 Stck. El. Heizkonvektor 2 kW, mit stufenlosem Temperaturwähler und Thermostat
1 Stck. El. Heizkonvektor 2 kW, mit stufenlosem Temperaturwähler und Thermostat, feuchtraumgeschützt
2 Stck. Untertischgerät 5 l - 2 kW, stufenlos von ca. 35 - 85 °C einstellbare Temperatur, incl. Festanschluss
1 Stck. El. Boiler AEG, 1-4 kW/230 V, 100L, Masse 1250/510/510 mm, 35-85 °C, Frostsicherung
3 Stck. Dachventilator, Farb. Maico, ECA 120, 180 m³/h, 19W, incl. Dachdurchbruch
6 Stck. Splitklimagerät - besteht aus 1 Außengerät und 1 Innengerät, als Wandgerät mit IR - Fernbedienung, Typ: Fujitsu ASYG07LE, Kühlleistung 2,1 kW, Heizen 3,0 kW, bis 50m³, Energieeffizienzklasse „A", ohne Kondensatpumpe, Kondenswasser wird durch Wand abgeführt
1 Stck. Splitklimagerät - besteht aus 1 Außengerät und 1 Innengerät, als Wandgerät mit IR - Fernbedienung, Typ: Fujitsu ASYG12LE, Kühlleistung 3,4 kW, Heizen 4,0 kW, bis 90m³, Energieeffizienzklasse „A", ohne Kondensatpumpe, Kondenswasser wird durch Wand abgeführt
1 Stck. Elektroplan