2131509 - Ansprechendes Bürogebäude aus Containern, ca. 71 m²

2131509 - Ansprechendes Bürogebäude aus Containern, ca. 71 m²

sconox mobilbau GmbH
Muster-Nr.: 2131509
Preis auf Anfrage
bitte Angebot anfragen


Produktbeschreibung

TECHNISCHE BAUBESCHREIBUNG

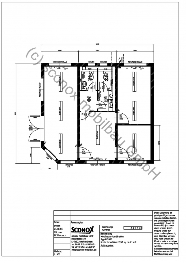
1 Stck. Mobilraum-Kombination, Maße:

8.000 x 9.000 x 2.820 mm I.H. 2.500 mm

 

 

bestehend aus:

3 Stck. Mobilraum-Elementen, Maße je CTR:

8.000 x 2.990 x 2.820 mm I.H. 2.500 mm

 

 

gemäß Beschreibung und Zeichnung - ohne Gabelstaplertaschen

 

Rahmen

Unter Fachaufsicht verschweißte Stahlkonstruktion aus Hohl- und Walzprofilen, grundiert, Lackierung mit Farbe auf Polyurethan Basis,in einem Standard- RAL Ton Ihrer Wahl lackiert (außer die beiden RAL Töne 9006/9007, diese gegen Aufpreis)

8 Stck. Containerecken. Ausführung laut prüffähiger Statik zweifach stapelbar

 

Bodenaufbau

Blindboden: 0,5 mm verzinktes Profilblech zu Bodenquerträgern aufgenietet

Isolierung: Mineralwolle, Brandschutzverhalten gem. DIN EN 13501-1, Brandschutzklasse A1

Dampfsperre: 0,2 mm Polyäthylenfolie

Bodenplatte: 22 mm Spanplatte V 100, auf Profilstahlträgern verschraubt, Stöße gespachtelt und geschliffen, von unten mit U-Profil unterlegt

Bodenbelag: 2 mm PVC Tarkett Standard, in Bahnen verlegt und vollflächig verklebt, Nähte verschweißt, Farbe grau marmoriert, Wandabschluss mit ca. 60 mm Hartkernsockelleisten, weiß

 

Verkehrslast des Bodens: 2.500 N/m²

... Erhöhung auf Wunsch möglich… Ausführung und Preise auf Anfrage

 

Wandaufbau

Profilblech: 0,55 mm verzinktes Profilblech im RAL Ton Ihrer Wahl lackiert, RAL nach Wunsch

10 mm Sickentiefe, auf verz. U-Profil-Stahl-Wandgerippe, das zur Stahlrahmenkonstruktion verschraubt ist, genietet, Stärke entsprechend der Isolierung

Isolierung: Mineralwolle, Brandschutzverhalten gem. DIN EN 13501-1, Brandschutzklasse A1

Dampfsperre: 0,2 mm Polyäthylenfolie

Zwangsbe- oder Entlüftungen in den Außenwänden mit außen liegendem Kiemenblech und innen liegendem Kunststoffgitter mit Insektenschutz. Zwischen Außenblech und Gitter PVC Rohr NW 100 mm zum Schutz der Isolierung.

 

Erhöhte Isolierung

(Isolierung der Außenhülle ähnlich EnEV2009, nachfolgend rechnerische Werte, bei näherer Konkretisierung und auf Anfrage ist eine angepasster Energieausweis möglich)

Boden 200 mm Mineralwolle, U=0,165 W/m²K

Außenwände 200 mm Mineralwolle, U=0,168 W/m²K

Zwischenwände 60 mm Mineralwolle, U=0,574 W/m²K

Dach 220 mm Mineralwolle, U=0,153 W/m²K

Innentrennwände isoliert

 

Dachaufbau

Profilblech: 0,75 mm verzinktes Profilblech, Sickentiefe 40 mm, belüftet, Lagerung aufgelegt und befestigt auf speziell gekanteten Dachprofilen, die bündig mit der Rahmenkonstruktion verschraubt werden

Isolierung. Mineralwolle, Brandschutzverhalten gem. DIN EN 13501-1, Brandschutzklasse A1

Dampfsperre: 0,2 mm Polyäthylenfolie

 

Dachentwässerung erfolgt über vier in den Eckstielen untergebrachte PVC- Fallrohre NW 60 mm, die auf einen in den oberen Containerkästen eingebrachten Rohrstutzen aufgebracht sind.

Dachbelastung: 1 250 N/m²

 

Innenverkleidung

Decke: 10 mm beidseitig melaminharzbeschichtete Spanplatte, formaldehydfrei, weiß, auf Profilstahlträgern genietet mit Blindnieten, Nietköpfe mit farblich passenden Kunststoffkappen abgedeckt, alle Stoß- und Eckverbindungen mit speziellen Kunststoffleisten versehen

Wände: 10 mm beidseitig melaminharzbeschichtete Spanplatte, weiß, formaldehydfrei, Schutzklasse E1, Nietköpfe mit farblich passenden Kunststoffkappen abgedeckt, alle Stoß- und Eckverbindungen mit speziellen Kunststoffleisten versehen


AUSSTATTUNG

 

Außentür:

1 Stck. ALU-Außentür 2000/2100 mm, 2-flügelig, weiß, nach außen gehend, mit einem Gehflügel mit PZ-Schloss und 3 Schlüsseln, beidseitig Drücker und einem Standflügel mit Treibriegel, wärmegedämmtes Leichtmetall-Profilsystem, VSG-Verglasung geteilt mit Kämpferprofil

Innentür:

3 Stck. Holzinnentür 875/2000 mm, Stahlumfassungszarge, weiß, Türblatt mit Wabeneinlage, Oberfläche mit PVC Folie beschichtet oder lackiert, Kst.- Drückergarnitur und Beschlag, BB-Schloss und 1 Schlüssel

2 Stck. Holzinnentür 625/2000 mm, Stahlumfassungszarge, weiß, Türblatt mit Wabeneinlage, Oberfläche mit PVC Folie beschichtet oder lackiert, Kst.- Drückergarnitur und Beschlag, BB-Schloss und 1 Schlüssel

2 Stck. Holzinnentür (zur WC-Zelle) 625/2000 mm, weiß, mit Wabenmittellage, Oberfläche mit PVC Folie beschichtet oder lackiert, Kst.- Drückergarnitur und Beschlag, Schloss mit Frei/Besetzt-Beschlag

Fenster:

2 Stck. Kunststoff-Schaufenster 1200/2400 mm, 2-teillig, feststehend, weiß, isolierverglast, Unterteil mit VSG von beiden Seiten, k-Wert 1,1W/m²K, ohne Rollladen

5 Stck. Kunststoff-Fenster weiß, 1800/1200 mm, 2-flügelig, isolierverglast, mit Dreh/Kippbeschlag, incl. Kunststoffrollladen, Gurtroller auf Putz, k-Wert 1,1W/m²K

2 Stck. Kunststoff-Fenster 600/400 mm, 1-flügelig, weiß, isolierverglast, mit Kippbeschlag, äußere Scheibe mit Ornamentverglasung, k-Wert 1,1W/m²K, ohne Rollladen

Fensterbrüstungshöhe:

Schaufenster 0 mm OKFF, Standard-Fenster 850 mm OKFF,

Sanitärfenster 1.800 mm OKFF

Die Fenster erhalten außen eine Fensterbank, Rollladenkästen zusätzlich wärmegedämmt

 

Sanitärausstattung:

2 Stck. Porzellan-Tiefspül-Toilette, stehend, Farbe sanitärweiß, Kst .- WC-Brille mit Deckel, Spülkasten, Papierhalter und Mantelhaken

1 Stck. Porzellanurinal mit Geruchsverschluss und Spüler

1 Stck. Schamwand

2 Stck. Porzellan-Handwaschbecken, Farbe sanitärweiß, mit Zweihandmischbatterie

für Kalt-/Warmwasser, Geruchverschluss, incl. Kristallglas-Spiegel, Kst. Ablage, Handtuchhaken

1 Stck. Abwasserentlüftung durch Außenwand

1 Stck. Zu- 3/4'' und Abwasser Ø 100 mm, durch Boden
Alle Rohrleitungen werden verdeckt hinter Installationswand verlegt

Abflussleitungen: HT-Rohr grau, ohne Anstrich
Zuflussleitungen: Kupfer-Rohr, ohne Anstrich, ohne Isolierung

1 Stck. Revisionsöffnung im Containerboden, incl. herausnehmbarer Abdeckung

3 lfm Installationswand, als Verkleidung der Rohrleitungen innerhalb der Sanitärinstallation.

Wand als Ablagemöglichkeit geeignet

 

Elektro-Installation nach VDE 0100, 400/230 V,

incl. Unterverteilung mit Sicherungsautomaten, FI - Schutzschalter 0,03 A.

Medien- und Kabeleinführung bauseits durch Boden, vertikaler Kabelkanal bis zum Verteilerkasten. Kabelführung von Container zu Container im Kabelkanal unter Decke.

7 Stck. Leuchte 2 x 58 W mit Parabolraster, hochglänzend, BAP

4 Stck. Rundleuchte 60 W

5 Stck. Lichtschalter, weiß

4 Stck. Wechselschalter, weiß

1 Stck. Serienschalter, weiß

8 Stck. Steckdose 230 V, weiß

2 Stck. Steckdose 230 V, weiß, feuchtraumgeschützt IP44, ca. 1400 mm OKFF

3 Stck. Steckdose für Frostwächter, weiß

4 Stck. Steckdose für el. Heizung, extra abgesichert, weiß

2 Stck. Steckdose für Boiler, extra abgesichert, feuchtraumgeschützt IP44

3 Stck. Kleinheizung 0,5 kW, mit Stufenschalter als Frostwächter

4 Stck. El. Heizkonvektor 2 kW, mit stufenlosem Temperaturwähler und Thermostat

2 Stck. Untertischgerät 5 l - 2 kW, stufenlos von ca. 35 - 85 °C einstellbare Temperatur, incl. Festanschluss

1 Stck. Wandventilator, Fabr. Maico, AWB 100, 90 m³/h, 13W, Wandöffnung ca. DN 100, gesteuert über Schalter

1 Stck. Elektroplan