2140011A - Großraum-Bürocontainer Gebäude, EnEV 2014, Klima, ca. 98 m²

2140011A - Großraum-Bürocontainer Gebäude, EnEV 2014, Klima, ca. 98 m²

sconox mobilbau GmbH
Muster-Nr.: 2140011A
Preis auf Anfrage
bitte Angebot anfragen


Produktbeschreibung

TECHNISCHE BAUBESCHREIBUNG

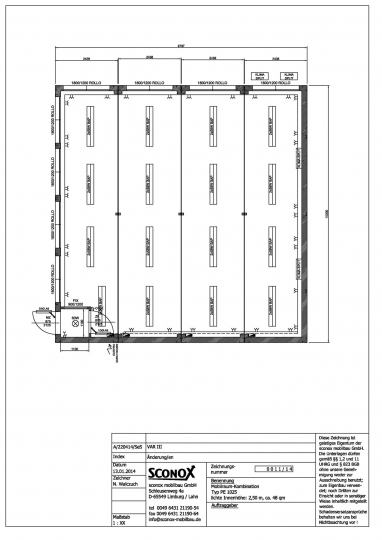
1 Stck. Mobilraum-Kombination, Maße:

10.000 x 9.797 x 3.040 mm IH 2.500 mm

 

 

bestehend aus:

4 Stck. Mobilraum-Elementen, Maße je CTR:

10.000 x 2.438 x 3.040 mm IH 2.500 mm

 

gemäß Beschreibung und Zeichnung -ohne Gabelstaplertaschen

 

Rahmen abgedeckt mit Profilblech (Profilblechfassade)

Unter Fachaufsicht verschweißte Stahlkonstruktion aus Hohl- und Walzprofilen, grundiert, Lackierung mit Farbe auf Polyurethan Basis,in einem Standard- RAL Ton Ihrer Wahl lackiert (außer den RAL Tönen 9006/9007, diese gegen Aufpreis)

8 Stck. Containerecken. Ausführung laut prüffähiger Statik zweifach stapelbar

 

Bodenaufbau

Blindboden: 0,5 mm verzinktes Profilblech zu Bodenquerträgern aufgenietet

Isolierung: Mineralwolle, Brandschutzverhalten gem. DIN EN 13501-1, Brandschutzklasse A1

Dampfsperre: 0,2 mm Polyäthylenfolie

Bodenplatte: 22 mm zementgebundene Spanplatte, auf Profilstahlträgern verschraubt, Stöße gespachtelt und geschliffen, von unten mit U-Profil unterlegt

Bodenbelag: 2 mm PVC Tarkett Standard , in Bahnen verlegt und vollflächig verklebt, Nähte verschweißt, Farbe grau marmoriert, Wandabschluss mit ca. 60 mm Hartkernsockelleisten, weiß

 

Verkehrslast des Bodens: 3.500 N/m2

... Erhöhung auf Wunsch möglich… Ausführung und Preise auf Anfrage

 

Wandaufbau

Profilblech: 0,55 mm verzinktes Profilblech im RAL Ton Ihrer Wahl lackiert, RAL nach Wunsch

10 mm Sickentiefe, auf verz. U-Profil-Stahl-Wandgerippe, das zur Stahlrahmenkonstruktion verschraubt ist, genietet, Stärke entsprechend der Isolierung

Isolierung: Mineralwolle, Brandschutzverhalten gem. DIN EN 13501-1, Brandschutzklasse A1

Dampfsperre: 0,2 mm Polyäthylenfolie

Zwangsbe- oder Entlüftungen in den Außenwänden mit außen liegendem Kiemenblech und innen liegendem Kunststoffgitter mit Insektenschutz. Zwischen Außenblech und Gitter PVC Rohr NW 100 mm zum Schutz der Isolierung.

 

Erhöhte Isolierung

(Isolierung der Außenhülle ähnlich EnEV2014, nachfolgend rechnerische Werte, bei näherer Konkretisierung und auf Anfrage ist eine angepasster Energieausweis möglich)

Boden 200 mm Mineralwolle, U=0,165 W/m²K

Außenwände 200 mm Mineralwolle, U=0,168 W/m²K

Zwischenwände 60 mm Mineralwolle, U=0,574 W/m²K

Dach 220 mm Mineralwolle, U=0,153 W/m²K

Innentrennwände isoliert

Dachaufbau

Profilblech: 0,75 mm verzinktes Profilblech, Sickentiefe 40 mm, belüftet, Lagerung aufgelegt und befestigt auf speziell gekanteten Dachprofilen, die bündig mit der Rahmenkonstruktion verschraubt werden

Isolierung. Mineralwolle, Brandschutzverhalten gem. DIN EN 13501-1, Brandschutzklasse A1

Dampfsperre: 0,2 mm Polyäthylenfolie

 

Dachentwässerung erfolgt über vier in den Eckstielen untergebrachte PVC- Fallrohre NW 60 mm, die auf einen in den oberen Containerkästen eingebrachten Rohrstutzen aufgebracht sind.

Dachbelastung: 1 250 N/m²

 

Innenverkleidung

Decke: 10 mm beidseitig melaminharzbeschichtete Spanplatte, formaldehydfrei, weiß, auf Profilstahlträgern genietet mit Blindnieten, Nietköpfe mit farblich passenden Kunststoffkappen abgedeckt, alle Stoß- und Eckverbindungen mit speziellen Kunststoffleisten versehen

Wände: 10 mm beidseitig melaminharzbeschichtete Spanplatte, weiß, formaldehydfrei, Schutzklasse E1, Nietköpfe mit farblich passenden Kunststoffkappen abgedeckt, alle Stoß- und Eckverbindungen mit speziellen Kunststoffleisten versehen


 

AUSSTATTUNG

 

Außentür:

1 Stck. MZ-Mehrzwecktür 875/2000 mm mit 2/3 VSG-Lichtausschnitt, aus feuerverzinktem Stahlblech, Isolierfüllung, Spezial-Eckzarge mit 4-seitiger Dichtung, Türblattstärke 40 mm, standardmäßig lackiert im RAL-Ton wie Wandflächen, Sicherheitsbeschlag, PZ-Schloss mit 3 Schlüsseln, incl. Türanschlag aus Gummi & Obentürschließer

Innentür:

1 Stck. ZK Stahltür 875/2000 mm, verzinkt, isoliert, mit 1/3 VSG-Lichtausschnitt, Spezial-Eckzarge mit 3-seitiger Dichtung, Türblattstärke 40 mm, weiß lackiert, Beschlag, PZ-Schloss und 3 Schlüssel, incl. Türanschlag  & Obentürschließer

 

Fenster:

8 Stck. Kunststoff-Fenster 1800/1200 mm, 2-flügelig, weiß, isolierverglast, mit Dreh/Kippbeschlag, k-Wert 1,1W/m²K, ohne Rollladen

1 Stck. Kunststoff-Innenfenster 900/1200 mm, 1-flügelig, weiß, isolierverglast, feststehend

Fensterbrüstungshöhe: 850 mm OKFF - Die Fenster erhalten außen eine Fensterbank

Rollladenkästen zusätzlich wärmegedämmt

Elektro-Installation nach VDE 0100, 400/230 V,

incl. Unterverteilung mit Sicherungsautomaten, FI - Schutzschalter 0,03 A.

Medien- und Kabeleinführung bauseits durch Boden, vertikaler Kabelkanal bis zum Verteilerkasten. Kabelführung von Container zu Container im Kabelkanal unter der Decke.

16 Stck. Leuchte 2 x 58 W mit Parabolraster, hochglänzend, BAP

1 Stck. Rundleuchte 60 W

3 Stck. Lichtschalter-Steckdosekombination, weiß

31 Stck. Doppelsteckdose 2 x 230 V, weiß, in den Kabelkanal eingebaut

2 Stck. Splitklimagerät - besteht aus 1 Außengerät und 1 Innengerät, als Wandgerät mit

IR - Fernbedienung, Typ: Fujitsu ASYG18LE, Kühlleistung 5,2 kW, Heizen 6,3 kW, bis, Energieeffizienzklasse A

36 lfm ca., Fensterbrüstungskanal 170/65 mm Rehau - BK, weiß, für Daten- und Stromleitungen, mit separaten Deckenabschnitten für Einbaudosen, mit Trennleiste

1 Stck. Elektroplan

Sonstiges:

6 Stck. Stütze