2182403 - 2-geschossiges Schulungs-/Bürogebäude, ca. 145m³, Ausführung nach EneV

2182403 - 2-geschossiges Schulungs-/Bürogebäude, ca. 145m³, Ausführung nach EneV

sconox mobilbau GmbH
Muster-Nr.: 2182403
Lieferzeit: auf Anfrage
Preis auf Anfrage
bitte Angebot anfragen


Produktbeschreibung

TECHNISCHE BAUBESCHREIBUNG

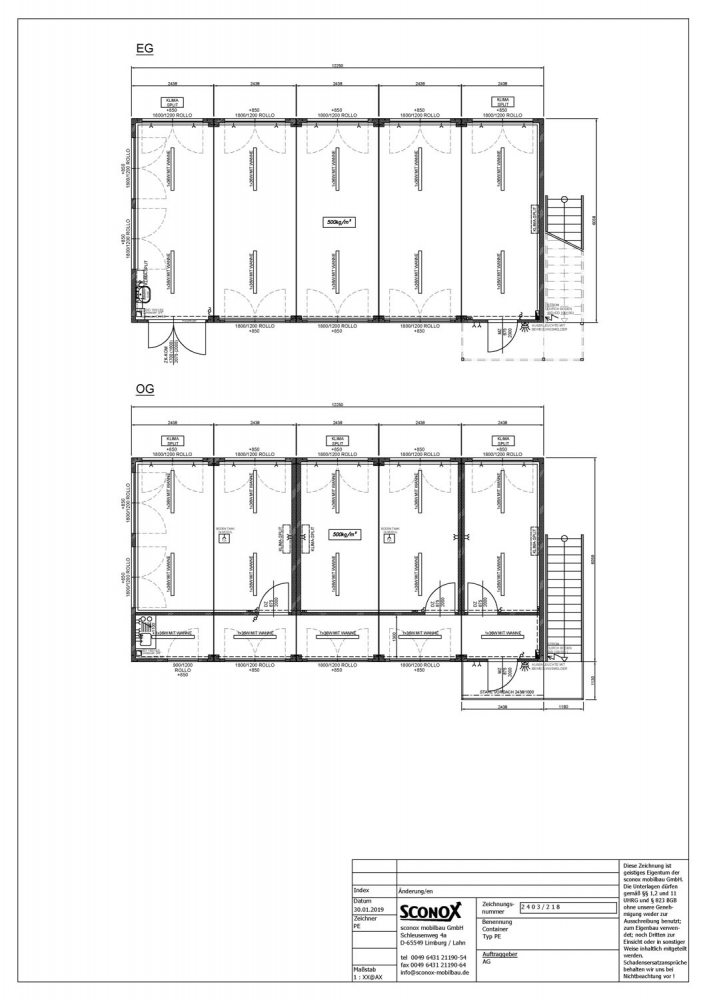
1 Stck. Mobilraum-Kombination, Maße:

 

6.058 x 12.250 x 5.680 mm IH 2.500 mm

bestehend aus:

10 Stck. Mobilraum-Elementen, Maße je CTR:

 

6.058 x 2.438 x 2.840 mm IH 2.500 mm

 

gemäß Beschreibung und Zeichnung - ohne Gabelstaplertaschen

 

Rahmen

Unter Fachaufsicht verschweißte Stahlkonstruktion aus Hohl- und Walzprofilen, grundiert, Lackierung mit Farbe auf Polyurethan Basis, in einem Farbton der Palette RAL classic Ihrer Wahl lackiert* , 8 Stck. Containerecken. Ausführung laut prüffähiger Statik und bei entsprechend vorbereiteter Gründung zweifach stapelbar.

 

*(außer die beiden RAL Töne 9006/9007, diese gegen Aufpreis und unter Einschränkungen -Leucht- oder Signalfarben sind nicht möglich.)

 

Bodenaufbau

Blindboden: 0,5 mm verzinktes Profilblech zu Bodenquerträgern aufgenietet

Dämmung: Mineralwolle, Brandverhalten gem. DIN EN 13501-1, Baustoffklasse A1 - nichtbrennbar

Dampfsperre: 0,2 mm Polyäthylenfolie

Bodenplatte: 22 mm zementgebundene Spanplatte, wasserresistent, Brandverhalten gem. DIN EN 13501-1, Klasse A2-S1, auf Profilstahlträgern verschraubt, Stöße gespachtelt und geschliffen, von unten mit U-Profil unterlegt

Bodenbelag: 2,0mm PVC Tarkett „Standard plus", Brandklasse Bfl-s1 nach DIN EN 13501-1, in Bahnen verlegt und vollflächig verklebt, Nähte verschweißt, Farbe grau marmoriert, Wandabschluss mit 60 mm Hartkernsockelleisten, weiß

Verkehrslast des Bodens: 5.000 N/m²

... Erhöhung auf Wunsch möglich…

 

Wandaufbau

Profilblech: 0,55 mm verzinktes Profilblech, lackiert in Farbton wie Rahmen oder gegen Mehrpreis abweichend in einem Farbton der Palette RAL classic Ihrer Wahl lackiert*, 10 mm Sickentiefe, genietet auf verzinkten U-Profil-Ständerwerk aus verz. Stahl in Stärke gem. Wärmedämmung, Ständerwerk verschraubt zur Stahlrahmenkonstruktion

Dämmung: Mineralwolle, Brandverhalten gem. DIN EN 13501-1, Baustoffklasse A1 - nichtbrennbar

Dampfsperre: 0,2 mm Polyäthylenfolie

*(außer die beiden RAL Töne 9006/9007, diese gegen Aufpreis und unter Einschränkungen -Leucht- oder Signalfarben sind nicht möglich.)


Zwangsbe- oder Entlüftungen in den Außenwänden mit außen liegendem Kiemenblech und innen liegendem Kunststoffgitter mit Insektenschutz. Zwischen Außenblech und Gitter PVC Rohr NW 100 mm als Leibung zur der Isolierung.


Ausführung der Wärmedämmung für EnEV2014

Boden 200 mm Mineralwolle, U=0,165 W/m²K

Außenwände 200 mm Mineralwolle, U=0,168 W/m²K

Zwischenwände 60 mm Mineralwolle, U=0,574 W/m²K

Dach 220 mm Mineralwolle, U=0,153 W/m²K

 

Dachaufbau

Profilblech: 0,75 mm Profilblech verzinkt, nicht lackiert, Sickentiefe 40 mm, belüftet, aufgelegt und befestigt auf speziell gekanteten Dachquerträgern, die mit der Rahmenkonstruktion verschraubt sind.

Dämmung: Mineralwolle, Brandverhalten gem. DIN EN 13501-1, Baustoffklasse A1 - nichtbrennbar

Dampfsperre: 0,2 mm Polyäthylenfolie

 

Dachentwässerung erfolgt je Containermodul über vier PVC-Fallrohre (NW 60 mm Außendurchmesser 63mm), die in den Ecksäulen nicht sichtbar verlegt sind. Diese sind an einer Kastenrinne angeschlossen welche in den beiden stirnseitigen Dachrahmen der Container integriert ist. Anschluss an Kanalnetz kundenseitig.

Schneelast*: 1,25 kN/m², Dach zu Revisionszwecken begehbar
(*Standard-Schneelast. Je nach Aufstellort ist bauseitig zu prüfen, ob ggfls. höhere Schneelasten zu gewährleisten sind. Das Dach für höhere Schneelasten auszulegen ist gegen Mehrpreis möglich.
 

Innenverkleidung
(ohne Feuerschutzausführung)

 

Decke: 10 mm beidseitig melaminharzbeschichtete Spanplatte V20, weiß, Schutzklasse E1, Brandverhalten gem. DIN EN 13501-1: D-S2, an Profilstahlträgern genietet, Nietköpfe mit farblich passenden Kunststoffkappen abgedeckt, alle Stoß- und Eckverbindungen mit speziellen Kunststoffleisten versehen

Wände: 10 mm beidseitig melaminharzbeschichtete Spanplatte V20, weiß, Schutzklasse E1, Brandverhalten gem. DIN EN 13501-1: D-S2, an Stahlständerwerk genietet, Nietköpfe mit farblich passenden Kunststoffkappen abgedeckt, alle Stoß- und Eckverbindungen mit speziellen Kunststoffleisten versehen

Innentrennwände mit Wärmedämmung


AUSSTATTUNG:

 

Außentür:

2Stck. MZ-Mehrzwecktür 875/2000 mm, aus verzinktem Stahlblech, Isolierfüllung, glatte Ausführung, Spezial-Eckzarge mit 4-seitiger Dichtung, Türblattstärke 40 mm, standardmäßig innen wie außen im Farbton der Außenwände lackiert, Beschlag, mit PZ-Schloss und 3 Schlüsseln,

incl. Türanschlag aus Gummi

1Stck. ZK/KOM Stahltür 1700/2075 mm, 2-flügelig, mit einem Gehflügel mit PZ-Schloss und 3 Schlüsseln, beidseitig Drücker und einem Standflügel mit Treibriegel, verzinkt, isoliert, glatte Ausführung,

Spezial-Eckzarge mit 3-seitiger Dichtung, Türblattstärke 40 mm, standardmäßig innen

wie außen im Farbton der Außenwände lackiert, incl. Türanschlag

 

Innentür:

3Stck. Holzinnentür 875/2000 mm, Stahlumfassungszarge, weiß, Türblatt mit Wabeneinlage, Oberfläche mit PVC Folie beschichtet oder lackiert, Kst.- Drückergarnitur und Beschlag, BB-Schloss und 1 Schlüssel


Fenster:

20Stck. Kunststoff-Fenster weiß, 1800/1200 mm, 2-flügelig, isolierverglast, beide Flügel mit Dreh/Kippbeschlag, incl. Kunststoffrollladen, Gurtrollern a. P., k-Wert 1,1W/m²K

1Stck. Kunststoff-Fenster weiß, 900/1200 mm, 1-flügelig, isolierverglast,

Dreh/Kippbeschlag, incl. Kunststoffrollladen, Gurtrollern a. P., k-Wert 1,1W/m²K

Fensterbrüstungshöhe: Standard-Fenster 850 mm OKFF

Die Fenster erhalten außen eine Fensterbank.


Elektro-Installation nach VDE 0100, 400/230 V,

incl. Geschossverteilungen mit Sicherungsautomaten, Deckel, FI - Schutzschalter, Elektroplan

Kabeleinführung bauseits durch Boden , (bauseitiger Festanschluss, keine hässlichen Außenstecker, Verschließen und Abdichten der Bodenöffnung bauseits), vertikaler Kabelkanal bis zum Verteilerkasten Kabelführung von Container zu Container im Kabelkanal unter Decke.

15Stck. Langfeldleuchte 1x36W mit Wanne

2Stck. Außenleuchte mit Bewegungsmelder

3Stck. Lichtschalter, weiß

4Stck. Wechselschalter, weiß

20Stck. Steckdose 230 V, weiß

5Stck. Steckdose 2x230 V, weiß

24Stck. Steckdose 230V, im Bodentank eingebaut

4Stck. Außensteckdose 230V, feuchtraumgeschützt

1Stck. Steckdose 230 V, weiß, feuchtraumgeschützt, ca. 1400 mm OKFF

1Stck. Steckdose für Boiler, extra abgesichert, feuchtraumgeschützt

1Stck. Untertischgerät 5l - 2 kW, stufenlos von ca. 35 - 85 °C einstellbare Temperatur

60lfm Fensterbrüstungskanal 170/65mm, weiß, für Daten- und Stromleitungen, mit separaten Deckenabschnitten für Einbaudosen, mit Trennleiste

2Stck. Bodentank LeGrand

1Stck. Inverter-Splitklimagerät mit Wärmepumpenfunktion zum effizienten Heizen mit erneuerbarer Energie (Umgebungswärme) - besteht aus 1 Außengerät und 1 Innengerät, als Wandgerät mit IR - Fernbedienung, Typ: Fujitsu ASYG07LLCC-/ AOYG07LLCC, ohne Kondensatpumpe -> Kondenswasser wird mit Gefälle durch Regenablauf abgeführt

ASYG07LLCC/

AOYG07LLCC

 

Nennwerte lt. Datenblatt Fujitsu Änderungen / Irrtum vorbehalten

Davon aus Stromnetz

(Rest aus Außenluft)

Nennleistung Kühlen

kW

2,0 (0,9 - 2,8 geregelt)

ø ~ 0,426 kW

Nennleistung Heizen

kW

2,7 (0,9 - 3,6 geregelt)

ø ~ 0,620 kW

EER Kühlen

W/W

4,26

EEK ø: A++

COP Heizen

W/W

4,35

EEK ø: A+

2Stck. Inverter-Splitklimagerät mit Wärmepumpenfunktion zum effizienten Heizen mit erneuerbarer Energie (Umgebungswärme) - besteht aus 1 Außengerät und 1 Innengerät, als Wandgerät mit IR - Fernbedienung, Typ: Fujitsu ASYG09LLCC-/ AOYG09LLCC, ohne Kondensatpumpe -> Kondenswasser wird mit Gefälle durch Regenablauf abgeführt

ASYG09LLCC /

AOYG09LLCC

 

Nennwerte lt. Datenblatt Fujitsu Änderungen / Irrtum vorbehalten

Davon aus Stromnetz

(Rest aus Außenluft)

Nennleistung Kühlen

kW

2,5 (0,9 - 3,0 geregelt)

ø ~ 0,730 kW

Nennleistung Heizen

kW

3,0 (0,9 - 3,8 geregelt)

ø ~ 0,740 kW

EER Kühlen

W/W

3,42

EEK ø: A++

COP Heizen

W/W

4,05

EEK ø: A+

2Stck. Inverter-Splitklimagerät mit Wärmepumpenfunktion zum effizienten Heizen mit erneuerbarer Energie (Umgebungswärme) - besteht aus 1 Außengerät und 1 Innengerät, als Wandgerät mit IR - Fernbedienung, Typ: Fujitsu ASYG14LMCA-/ AOYG14LMCA, ohne Kondensatpumpe -> Kondenswasser wird mit Gefälle durch Regenablauf abgeführt

ASYG14LMCA/

AOYG14LMCA

 

Nennwerte lt. Datenblatt Fujitsu Änderungen / Irrtum vorbehalten

Davon aus Stromnetz

(Rest aus Außenluft)

Nennleistung Kühlen

kW

4,0 (0,9 - 4,4 geregelt)

ø ~ 1,135 kW

Nennleistung Heizen

kW

5,0 (0,9 - 6,0 geregelt)

ø ~ 1,365 kW

EER Kühlen

W/W

3,52

EEK ø: A++

COP Heizen

W/W

3,66

EEK ø: A+


Miniküche bestehend aus:

1Stck. Unterschrank mit integriertem Kühlschrank 127 Liter, Nirosta - Spüle mit Ablage und eingebautem elektrischen Doppelkochfeld, Maß: 1000x600x900 mm

1Stck. Doppelsteckdose 2x 230 V, ca. 1.100 mm OKFF

1Stck. Doppelsteckdose 230V für Küche, extra abgesichert

1Stck. Steckdose für Boiler, extra abgesichert, feuchtraumgeschützt

1Stck. Untertischgerät 5 l - 2 kW, stufenlos von ca. 35 - 85 °C einstellbare Temperatur


Sanitärausstattung:

1Stck. Porzellan-Handwaschbecken, Farbe sanitärweiß, mit Zweihandmischbatterie für Kalt-/Warmwasser, Geruchverschluss, incl. Kristallglas-Spiegel, Kst. Ablage, Kst.-Handtuchhaken

1Stck. Zu- 3/4'' und Abwasser Ø 50 mm, durch Boden

Alle Rohrleitungen werden auf Wand verlegt

Abflussleitungen: HT-Rohr grau, ohne Anstrich
Zuflussleitungen: Kupfer-Rohr, ohne Anstrich, ohne Isolierung

 

Sonstiges:

1Stck. Vordach als Dachrahmenverlängerung ca. 2.438 Breit, Auskragung 1.000mm,

Untersicht Trapezblech, lackiert in Farbton der Fassade, Entwässerung in die Rinne CT

1Stck. Stahlaußentreppe, einarmig, mit Podest aus Gitterost, beide Außenseiten mit Vierkantrohr-Geländer und Vierkantrohrhandlauf, alle Stahlteile verzinkt. Treppenbreite 1.130 mm (laut Zeichnung)