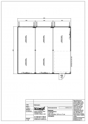
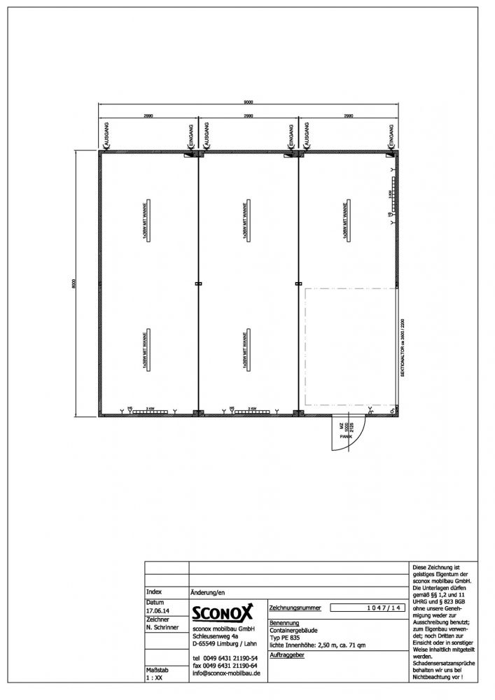
2141047 - isolierter Lagerraum ca. 71 m² mit Sektionaltor

2141047 - isolierter Lagerraum ca. 71 m² mit Sektionaltor

sconox mobilbau GmbH
Muster-Nr.: 2141047
Preis auf Anfrage
bitte Angebot anfragen


Produktbeschreibung

TECHNISCHE BAUBESCHREIBUNG

 

1 Stck. Mobilraum-Kombination, Maße:

8.000 x 9.000 x 2.820 mm I.H. 2.500 mm

 

 

bestehend aus:

3 Stck. Mobilraum-Elementen, Maße je CTR:

8.000 x 2.990 x 2.820 mm I.H. 2.500 mm

 

 

gemäß Beschreibung und Zeichnung - ohne Gabelstaplertaschen

 

Rahmen

Unter Fachaufsicht verschweißte Stahlkonstruktion aus Hohl- und Walzprofilen, grundiert, Lackierung mit Farbe auf Polyurethan Basis,in einem Standard- RAL Ton Ihrer Wahl lackiert (außer den RAL Tönen 9006/9007, diese gegen Aufpreis)

8 Stck. Containerecken. Ausführung laut prüffähiger Statik zweifach stapelbar

 

Bodenaufbau

Blindboden: 0,5 mm verzinktes Profilblech zu Bodenquerträgern aufgenietet

Isolierung: Mineralwolle, Brandschutzverhalten gem. DIN EN 13501-1, Brandschutzklasse A1

Dampfsperre: 0,2 mm Polyäthylenfolie

Bodenplatte: 22 mm Spanplatte V100, auf Profilstahlträgern verschraubt, Stöße gespachtelt und geschliffen, von unten mit U-Profil unterlegt

Bodenbelag: 1,5 mm PVC, in Bahnen verlegt und vollflächig verklebt, Nähte verschweißt, Farbe grau marmoriert, Wandabschluss mit 60 mm Hartkernsockelleisten, weiß

Verkehrslast des Bodens: 2.500 N/m2

... Erhöhung auf Wunsch möglich… Ausführung und Preise auf Anfrage

 

Wandaufbau

Profilblech: 0,55 mm verzinktes Profilblech im RAL Ton Ihrer Wahl lackiert, RAL nach Wunsch

10 mm Sickentiefe, auf verz. U-Profil-Stahl-Wandgerippe, das zur Stahlrahmenkonstruktion verschraubt ist, genietet, Stärke entsprechend der Isolierung

Isolierung: Mineralwolle, Brandschutzverhalten gem. DIN EN 13501-1, Brandschutzklasse A1

Dampfsperre: 0,2 mm Polyäthylenfolie

Zwangsbe- oder Entlüftungen in den Außenwänden mit außen liegendem Kiemenblech und innen liegendem Kunststoffgitter mit Insektenschutz. Zwischen Außenblech und Gitter PVC Rohr NW 100 mm zum Schutz der Isolierung.

 

 

Isolierung

Boden 80 mm Mineralwolle, k = 0,632 W/m²K

Außenwände 60 mm Mineralwolle, k = 0,667 W/m²K

Dach 80 mm Mineralwolle, k = 0,522 W/m²K

 

Dachaufbau

Profilblech: 0,75 mm verzinktes Profilblech, Sickentiefe 40 mm, belüftet, Lagerung aufgelegt und befestigt auf speziell gekanteten Dachprofilen, die bündig mit der Rahmenkonstruktion verschraubt werden

Isolierung. Mineralwolle, Brandschutzverhalten gem. DIN EN 13501-1, Brandschutzklasse A1

Dampfsperre: 0,2 mm Polyäthylenfolie

 

Dachentwässerung erfolgt über vier in den Eckstielen untergebrachte PVC- Fallrohre NW 60 mm, die auf einen in den oberen Containerkästen eingebrachten Rohrstutzen aufgebracht sind.

Dachbelastung: 1 250 N/m²

 

Innenverkleidung

Decke: 10 mm beidseitig melaminharzbeschichtete Spanplatte, formaldehydfrei, weiß, auf Profilstahlträgern genietet mit Blindnieten, Nietköpfe mit farblich passenden Kunststoffkappen abgedeckt, alle Stoß- und Eckverbindungen mit speziellen Kunststoffleisten versehen

Wände: 10 mm beidseitig melaminharzbeschichtete Spanplatte, weiß, formaldehydfrei, Schutzklasse E1, Nietköpfe mit farblich passenden Kunststoffkappen abgedeckt, alle Stoß- und Eckverbindungen mit speziellen Kunststoffleisten versehen


 

AUSSTATTUNG

 

Außentür:

1 Stck. MZ-Mehrzwecktür 1000/2125 mm, aus feuerverzinktem Stahlblech, Isolierfüllung, glatte Ausführung, Spezial-Eckzarge mit 4-seitiger Dichtung, Türblattstärke 40 mm, standardmäßig im Containerfarbton lackiert, Panikschloss (Klinke - Knauf), PZ-Schloss mit 3 Schlüsseln, incl. Türanschlag aus Gummi

Elektro-Installation nach VDE 0100, 400/230 V, incl. Unterverteilung mit Sicherungsautomaten, FI - Schutzschalter 0,03 A.

CEE-Außensteckdose, 400 V, Ausgang-Eingang 5-pol., 32 A

5 Stck. Langfeldleuchte 1 x 36 W mit Wanne

1 Stck. Lichtschalter-Steckdosekombination, weiß

6 Stck. Steckdose 230 V, weiß

3 Stck. El. Heizkonvektor 3 kW, mit stufenlosem Temperaturwähler und Thermostat,

mit Festanschluss

1 Stck. Elektroplan

Sonstiges:

4 Stck. Stütze

1 Stck. Sektionaltor RollMatic 3500/2200 mm, weiß, incl. elektrischem Antrieb und Fernbedienung