Hochwertiger Wohncontainer mit ca. 164 m² Grundfläche - 2130852

Hochwertiger Wohncontainer mit ca. 164 m² Grundfläche - 2130852

sconox mobilbau GmbH
Muster-Nr.: 2130852
Preis auf Anfrage
bitte Angebot anfragen


Produktbeschreibung

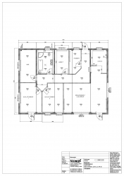
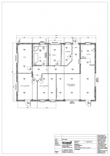
TECHNISCHE BAUBESCHREIBUNG

1 Stck. Mobilraum-Kombination, Maße:

11.000 x 15.010 x 3.040 mm I.H. 2.500 mm

 

 

bestehend aus:

 

5 Stck. Mobilraum-Elementen, Maße je CTR:

11.000 x 2.990 x 3.040 mm I.H. 2.500 mm

 

 

gemäß Beschreibung und Zeichnung - ohne Gabelstaplertaschen

 

Rahmen

Unter Fachaufsicht verschweißte Stahlkonstruktion aus Hohl- und Walzprofilen, grundiert, Lackierung mit Farbe auf Polyurethan Basis, in einem Standard- RAL Ton Ihrer Wahl lackiert (außer die beiden RAL Töne 9006/9007, diese gegen Aufpreis)

8 Stck. Containerecken. Ausführung laut prüffähiger Statik zweifach stapelbar

 

Bodenaufbau

Blindboden: 0,5 mm verzinktes Profilblech zu Bodenquerträgern aufgenietet

Isolierung: Mineralwolle, Brandschutzverhalten gem. DIN EN 13501-1, Brandschutzklasse A1

Dampfsperre: 0,2 mm Polyäthylenfolie

Bodenplatte: 22 mm Spanplatte V 100, auf Profilstahlträgern verschraubt, Stöße gespachtelt und geschliffen, von unten mit U-Profil unterlegt

In den gefliesten Bereichen: 22 mm zementgebundene Spanplatte

Bodenbelag: Schlafzimmer 1+2 und Arbeit: Nadelflies Teppich , Wandabschluss mit Teppichsockelleisten

Restliche Bereiche: Bodenfliesen 200/200 mm, Rako - TAURUS GRANIT, Rutschhemmende Eigenschaften R 10 nach DIN 51130, Farbe 76 Nordic, Fugenfarbe grau

Verkehrslast des Bodens: 2.500 N/m², in den gefliesten Bereichen verstärkt

... Erhöhung auf Wunsch möglich… Ausführung und Preise auf Anfrage

 

Wandaufbau

Profilblech: 0,55 mm verzinktes Profilblech im RAL Ton Ihrer Wahl lackiert, RAL nach Wunsch

10 mm Sickentiefe, auf verz. U-Profil-Stahl-Wandgerippe, das zur Stahlrahmenkonstruktion verschraubt ist, genietet, Stärke entsprechend der Isolierung

Isolierung: Mineralwolle, Brandschutzverhalten gem. DIN EN 13501-1, Brandschutzklasse A1

Dampfsperre: 0,2 mm Polyäthylenfolie

Zwangsbe- oder Entlüftungen in den Außenwänden mit außen liegendem Kiemenblech und innen liegendem Kunststoffgitter mit Insektenschutz. Zwischen Außenblech und Gitter PVC Rohr NW 100 mm zum Schutz der Isolierung.

Erhöhte Isolierung, kältebrückenoptimiert

(Isolierung der Außenhülle ähnlich EnEV2014, nachfolgend rechnerische Werte, bei näherer Konkretisierung und auf Anfrage ist eine angepasster Energieausweis möglich)

Boden 200 mm Mineralwolle, U=0,165 W/m²K

Außenwände 200 mm Mineralwolle, U=0,168 W/m²K

Zwischenwände 60 mm Mineralwolle, U=0,574 W/m²K

Dach 220 mm Mineralwolle, U=0,153 W/m²

 

Dachaufbau

Profilblech: 0,75 mm verzinktes Profilblech, Sickentiefe 40 mm, belüftet, Lagerung aufgelegt und befestigt auf speziell gekanteten Dachprofilen, die bündig mit der Rahmenkonstruktion verschraubt werden

Isolierung. Mineralwolle, Brandschutzverhalten gem. DIN EN 13501-1, Brandschutzklasse A1

Dampfsperre: 0,2 mm Polyäthylenfolie

 

Dachentwässerung erfolgt über 4 in den Eckstielen untergebrachte PVC- Fallrohre NW 60 mm, die auf einen in den oberen Containerkästen eingebrachten Rohrstutzen aufgebracht sind.

Dachbelastung: 1 250 N/m²

 

Innenverkleidung

Decke: 10 mm beidseitig melaminharzbeschichtete Spanplatte, formaldehydfrei, weiß, auf Profilstahlträgern genietet mit Blindnieten, Nietköpfe mit farblich passenden Kunststoffkappen abgedeckt, alle Stoß- und Eckverbindungen mit speziellen Kunststoffleisten versehen

Sanitärbereich:

12,5 mm GKB-i Platten, verspachtelt, verschliffen und 2 x deckend mit Dispersionsfarbe gestrichen

Wände: 10 mm beidseitig melaminharzbeschichtete Spanplatte, weiß, formaldehydfrei, Schutzklasse E1, Nietköpfe mit farblich passenden Kunststoffkappen abgedeckt, alle Stoß- und Eckverbindungen mit speziellen Kunststoffleisten versehen

Sanitärbereich:

Wandfliesen 200/200 mm raumhoch, Rako COLOR ONE, Farbe weiss

(matt oder glänzend), Fugenfarbe weiß

 

Isolierte Innentrennwände


AUSSTATTUNG 

 

Außentür:

3 Stck. ALU-Außentür 1000/2100 mm, 1-flügelig, weiß, wärmegedämmtes Leichtmetall-Profilsystem, nach außen gehend, Profilzylinder mit 3 Schlüsseln, beidseitig Drücker, Verglasung - VSG geteilt mit Kämpferprofil

 

Innentür:

6 Stck. Holzinnentür 875/2000 mm, Stahlumfassungszarge, weiß, Türblatt mit Wabeneinlage, Oberfläche mit PVC Folie beschichtet oder lackiert, Kst.- Drückergarnitur und Beschlag, BB-Schloss und 1 Schlüssel

 

Fenster:

2 Stck. Kunststoff-Schaufenster 2500/2100 mm, 4-flügelig, weiß, isolierverglast, zwei feststehende Unterteile - VSG und zwei Dreh/Kipp- Oberteile, k-Wert 1,1W/m²K, ohne Rollladen

3 Stck. Kunststoff-Fenster weiß, 1800/1200 mm, 2-flügelig, isolierverglast, mit Dreh/Kippbeschlag, incl. Kunststoffrollladen, Gurtroller auf Putz, k-Wert 1,1W/m²K

4 Stck. Kunststoff-Fenster weiß, 900/1200 mm, 1-flügelig, isolierverglast, mit Dreh/Kippbeschlag, incl. Kunststoffrollladen, Gurtroller auf Putz, k-Wert 1,1W/m²K

1 Stck. Kunststoff-Fenster weiß, 900/1200 mm, 1-flügelig, isolierverglast, mit Dreh/Kippbeschlag, äußere Scheibe mit Ornamentverglasung, incl. Kunststoffrollladen, Gurtroller auf Putz, k-Wert 1,1W/m²K

Fensterbrüstungshöhe: 850 mm OKFF, Schaufenster 0 mm OKFF

Die Fenster erhalten außen eine Fensterbank

 

Vorbereitung für bauseitige Küche:

1 Stck. Steckdose für Boiler, extra abgesichert, feuchtraumgeschützt IP 44

1 Stck. Doppelsteckdose 2 x 230 V, ca. 1.100 mm OKFF

1 Stck. Doppelsteckdose für Küche, extra abgesichert

1 Stck. Zu- 3/4'' und Abwasseranschluss Ø 50 mm für bauseitige Küche

Alle Rohrleitungen werden sichtbar auf Wand verlegt

Abflussleitungen: HT-Rohr grau, ohne Anstrich

Zuflussleitungen: Kupfer-Rohr, ohne Anstrich, ohne Isolierung

Sanitärausstattung:

4 Stck. Porzellan-Tiefspül-Toilette, wandhängend, Farbe sanitärweiß, Kst .- WC-Brille mit Deckel, Spülkasten unter Putz, Papierhalter und Mantelhaken

1 Stck. Doppel-Porzellan-Handwaschbecken 130 x 48 cm, Farbe sanitärweiß, mit Einhebelarmatur für Kalt-/Warmwasser und Siphon, incl. Kristallglas-Spiegel, Kst. Ablage, Handtuchhaken, Fabr. KERAMAG RENOVA PLAN

1 Stck. Abwasserentlüftung durch Außenwand

1 Stck. Zu- 3/4'' und Abwasser Ø 100 mm, durch Boden
Alle Rohrleitungen werden verdeckt hinter Installationswand verlegt

Abflussleitungen: HT-Rohr grau, ohne Anstrich
Zuflussleitungen: Kupfer-Rohr, ohne Anstrich, ohne Isolierung

2 Stck. Revisionsöffnung im Containerboden, incl. herausnehmbarer Abdeckung

1 Stck. Duschkabine 800 x 800 m - 1/4 Kreis, mit Stand- und Schlauchbrause,

Einhebelarmatur für Kalt-/Warmwasser und Siphon, Fabr. Bankonfort

1 Stck. Badewanne 1600 x 700 mm mit Einhebelarmatur für Kalt-/Warmwasser und Siphon - Viega Standard, Fabr. Kaldewei Eurowa

2 Stck. Gully (Bodenablauf) mit Geruchsverschluss (ohne Gefälle), nicht an die Abfluss-Leitung angeschlossen

 

 

 

 

 

 

 

 

 

 

 

 

Elektro-Installation nach VDE 0100, 400/230 V,

incl. Unterverteilung mit Sicherungsautomaten, FI - Schutzschalter 0,03 A.

Medien- und Kabeleinführung bauseits durch Boden, vertikaler Kabelkanal bis zum Verteilerkasten. Kabelführung von Container zu Container im Kabelkanal unter Decke.

 

26 Stck. Kabelauslass für bauseitige Leuchten

4 Stck. Lichtschalter, weiß

6 Stck. Wechselschalter, weiß

1 Stck. Kreuzschalter, weiß

1 Stck. Serienschalter, weiß

16 Stck. Steckdose 230 V, weiß

2 Stck. Steckdose 230 V, weiß, feuchtraumgeschützt IP 44, ca. 1400 mm OKFF

1 Stck. Wandventilator, Fabr. Maico, AWB 100, 90 m³/h, 13W, Wandöffnung ca. DN 100, gesteuert über Schalter

1 Stck. El. Boiler AEG, EWH Basis 200, AC, 2-4 kW / 230 V, Maße 1570/550/690 mm, 200 l,

70 kg, 35 - 85 °C, Sicherungsthermostat, Frostsicherung

1 Stck. Elektroplan

Sonstiges:

2 Stck. Wandöffnung ca. 875/2000 mm mit 1,5 mm Glattblech verkleidet

…als Durchgang zwischen zwei CTR

10 Stck. Warmwasserheizkörper mit Cu-Rohrnetz, Rohrleitungen werden auf Wand montiert, mit Kunststoff-Kanal abgedeckt

- inkl. 1 x Wanddurchbruch (Wassereingang für bauseitige Warmwasser-Heizung)

- inkl. Wandverstärkung für bauseitige Warmwasser-Heizung

- inkl. Rahmendurchbruch (für bauseitige Warmwasser-Heizung)

… Anschluss an bestehende Heizungsanlage bauseits