Hochwertiger Wohncontainer mit Terrasse und ca. 83 m² Grundfläche - 2131921

Hochwertiger Wohncontainer mit Terrasse und ca. 83 m² Grundfläche - 2131921

sconox mobilbau GmbH
Muster-Nr.: 2131921
Preis auf Anfrage
bitte Angebot anfragen


Produktbeschreibung

TECHNISCHE BAUBESCHREIBUNG

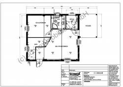
1 Stck. Mobilraum-Kombination, Maße:

8.000 x 12.005 x 3.290 mm I.H. 2.750 mm

 

 

bestehend aus:

3 Stck. Mobilraum-Elementen, Maße je CTR:

8.000 x 2.990 x 3.290 mm I.H. 2.750 mm

 

1 Stck. Mobilraum-Element, Maße:

4.000 x 2.990 x 3.290 mm I.H. 2.750 mm

 

 

gemäß Beschreibung und Zeichnung - ohne Gabelstaplertaschen

 

Rahmen

Unter Fachaufsicht verschweißte Stahlkonstruktion aus Hohl- und Walzprofilen, grundiert, Lackierung mit Farbe auf Polyurethan Basis,in einem Standard- RAL Ton Ihrer Wahl lackiert (außer den RAL Tönen 9006/9007, diese gegen Aufpreis)

8 Stck. Containerecken. Ausführung laut prüffähiger Statik zweifach stapelbar

 

Bodenaufbau

Blindboden: 0,5 mm verzinktes Profilblech zu Bodenquerträgern aufgenietet

Isolierung: Mineralwolle, Brandschutzverhalten gem. DIN EN 13501-1, Brandschutzklasse A1

Dampfsperre: 0,2 mm Polyäthylenfolie

Bodenplatte: 22 mm Spanplatte V 100, auf Profilstahlträgern verschraubt, Stöße gespachtelt und geschliffen, von unten mit U-Profil unterlegt

Sanitärbereich + Küche: 22 mm zementgebundene Spanplatte

Terrasse: 21 mm Siebdruckplatte

Bodenbelag: ohne Bodenbelag und Sockelleisten

Sanitärbereich + Küche: 200 x 200 mm Bodenfliesen, Rako TAURUS GRANIT, rutschhemmend R 10, Farbe 76 Nordic (grau), Fugenfarbe grau

Terrasse: 3 mm Alu-Riffelblech , in Platten verlegt und verschraubt,

Fugen mit Silikon abgedichtet (nicht verschweißt)

 

Verkehrslast des Bodens: 2.500 N/m²

... Erhöhung auf Wunsch möglich… Ausführung und Preise auf Anfrage

 

Wandaufbau

Profilblech: 0,55 mm verzinktes Profilblech im RAL Ton Ihrer Wahl lackiert, RAL nach Wunsch

10 mm Sickentiefe, auf verz. U-Profil-Stahl-Wandgerippe, das zur Stahlrahmenkonstruktion verschraubt ist, genietet, Stärke entsprechend der Isolierung

Isolierung: Mineralwolle, Brandschutzverhalten gem. DIN EN 13501-1, Brandschutzklasse A1

Dampfsperre: 0,2 mm Polyäthylenfolie

Zwangsbe- oder Entlüftungen in den Außenwänden mit außen liegendem Kiemenblech und innen liegendem Kunststoffgitter mit Insektenschutz. Zwischen Außenblech und Gitter PVC Rohr NW 100 mm zum Schutz der Isolierung.

 

Erhöhte Isolierung, kältebrückenoptimiert

(Isolierung der Außenhülle ähnlich EnEV2014, nachfolgend rechnerische Werte, bei näherer Konkretisierung und auf Anfrage ist eine angepasster Energieausweis möglich)

Boden 200 mm Mineralwolle, U=0,165 W/m²K

Außenwände 200 mm Mineralwolle, U=0,168 W/m²K

Zwischenwände 60 mm Mineralwolle, k=0,574 W/m²K

Dach 220 mm Mineralwolle, U=0,153 W/m²K

Innentrennwände isoliert

 

Dachaufbau

Profilblech: 0,75 mm verzinktes Profilblech, Sickentiefe 40 mm, belüftet, Lagerung aufgelegt und befestigt auf speziell gekanteten Dachprofilen, die bündig mit der Rahmenkonstruktion verschraubt werden

Isolierung. Mineralwolle, Brandschutzverhalten gem. DIN EN 13501-1, Brandschutzklasse A1

Dampfsperre: 0,2 mm Polyäthylenfolie

 

Dachentwässerung erfolgt über vier in den Eckstielen untergebrachte PVC- Fallrohre NW 60 mm, die auf einen in den oberen Containerkästen eingebrachten Rohrstutzen aufgebracht sind.

Dachbelastung: 1 250 N/m²

 

Innenverkleidung

Decke: 12,5 mm GKB Platten verspachtelt, verschliffen und 2 x deckend mit Dispersionsfarbe gestrichen

Terrasse: Wandprofilblech, standardmäßig lackiert im RAL-Ton wie Wandflächen

Wände: 12,5 mm GKB Platten verspachtelt, verschliffen, mit Glasfasertapete tapeziert und

2 x deckend mit Dispersionsfarbe gestrichen

Sanitärbereich: Wandfliesen 200/200 mm , Rako COLOR ONE, Farbe weiß (matt oder glänzend), Fugenfarbe weiß


AUSSTATTUNG

 

Außentür:

2 Stck. ALU-Außentür 1000/2100 mm, 1-flügelig, weiß, wärmegedämmtes Leichtmetall-Profilsystem, nach außen gehend, Profilzylinder mit 3 Schlüssel, beidseitig Drücker, VSG-Verglasung geteilt mit Kämpferprofil

Innentür:

3 Stck. Holzinnentür 875/2000 mm, Stahlumfassungszarge, weiß, Türblatt mit Wabeneinlage, Oberfläche mit PVC Folie beschichtet oder lackiert, Kst.- Drückergarnitur und Beschlag, BB-Schloss und 1 Schlüssel

1 Stck. Holzinnentür (Bad) 750/2000 mm, weiß, mit Wabenmittellage, Oberfläche mit PVC Folie beschichtet oder lackiert, Kst.- Drückergarnitur und Beschlag, Schloss mit Frei/Besetzt-Beschlag

Fenster:

5 Stck. Kunststoff-Fenster weiß, 1200/1200 mm, 1-flügelig, isolierverglast, mit Dreh/Kippbeschlag, incl. Alu-Rollladen, elektrisch steuerbar*, k-Wert 1,1W/m²K

1 Stck. Kunststoff-Fenster 600/400 mm, 1-flügelig, weiß, isolierverglast, mit Kippbeschlag, äußere Scheibe mit Ornamentverglasung, k-Wert 1,1W/m²K, incl. Alu-Rollladen, elektrisch steuerbar*

* über Schalter am Fenster

 

Fensterbrüstungshöhe: 850 mm OKFF, Sanitärfenster 1.800 mm OKFF

Die Fenster erhalten außen eine Fensterbank, Rollladenkästen zusätzlich wärmegedämmt

 

Vorbereitung für bauseitige Küche:

1 Stck. Steckdose für Boiler, extra abgesichert, feuchtraumgeschützt IP44

1 Stck. Doppelsteckdose 2 x 230 V, ca. 1.100 mm OKFF

1 Stck. Doppelsteckdose für Küche, extra abgesichert

1 Stck. Zu- 3/4'' und Abwasseranschluss Ø 50 mm
Alle Rohrleitungen werden sichtbar auf Wand verlegt

Abflussleitungen: HT-Rohr grau, ohne Anstrich
Zuflussleitungen: Kupfer-Rohr, ohne Anstrich, ohne Isolierung

1 Stck. Revisionsöffnung im Containerboden, incl. herausnehmbarer Abdeckung

 

Sanitärausstattung:

1 Stck. Porzellan-Tiefspül-Toilette, wandhängend, Farbe sanitärweiß, Kst .- WC-Brille mit Deckel, Spülkasten, Papierhalter und Mantelhaken

1 Stck. Porzellan-Handwaschbecken, Farbe sanitärweiß, mit Zweihandmischbatterie

für Kalt-/Warmwasser, Geruchverschluss, incl. Kristallglas-Spiegel, Kst. Ablage, Handtuchhaken

1 Stck. Kunststoff - Duschkabine 800/800 mm, mit Stand- und Schlauchbrause, Zweihandmischbatterie und Schiebe-Tür

1 Stck. Gully (Bodenablauf) mit Geruchsverschluss (ohne Gefälle), nicht an die Abfluss-Leitung angeschlossen

1 Stck. Porzellanurinal mit Geruchverschluss und Spüler

1 Stck. Abwasserentlüftung durch Außenwand

3 Stck. Zu- 3/4'' und Abwasser Ø 100 mm, durch Boden
Alle Rohrleitungen werden verdeckt hinter Installationswand verlegt

Abflussleitungen: HT-Rohr grau, ohne Anstrich
Zuflussleitungen: Kupfer-Rohr, ohne Anstrich, ohne Isolierung

1 Stck. Revisionsöffnung im Containerboden, incl. herausnehmbarer Abdeckung

1 lfm Installationswand, als Verkleidung der Rohrleitungen innerhalb der Sanitärinstallation.

Wand als Ablagemöglichkeit geeignet

 

Elektro-Installation nach VDE 0100, 400/230 V,

incl. Unterverteilung mit Sicherungsautomaten, FI - Schutzschalter 0,03 A.

Medien- und Kabeleinführung bauseits durch Boden, vertikaler Kabelkanal bis zum Verteilerkasten. Kabelführung von Container zu Container im Kabelkanal unter Decke.

11 Stck. Kabelauslass (für bauseitige Beleuchtung)

3 Stck. Lichtschalter, weiß

3 Stck. Wechselschalter, weiß

1 Stck. Serienschalter, weiß, feuchtraumgeschützt

6 Stck. Steckdose 230 V, weiß

1 Stck. Steckdose 230 V, weiß, feuchtraumgeschützt IP44, ca. 1400 mm OKFF

1 Stck. Wandventilator, Fabr. Maico, AWB 100, 90 m³/h, 13W, Wandöffnung ca. DN 100,

gesteuert über Schalter

1 Stck. El. Boiler AEG, 1-4 kW/230 V, 100 l, Maße 1250/510/510 mm, 35-85 °C, Frostsicherung

1 Stck. Elektroplan

Sonstiges:

6 Stck. Wandverstärkung für bauseitige Warmwasser-Heizkörper

4 Stck. Blechumfassung der Säulen (Terrassen-Container)